北摂・豊中市周辺の事業用(店舗・事務所・倉庫)テナント募集情報

北摂・豊中市周辺の事業用(店舗・事務所・倉庫)テナント募集情報

PR

Calendar

Profile

shin022002

shin022002

Comments

くーる31 @ 相互リンク 突然のコメント、失礼いたします。 私は…
くーる31 @ 相互リンク 突然のコメント、失礼いたします。 私は…
くーる31 @ 相互リンク 突然のコメント、失礼いたします。 私は…
くーる31 @ 相互リンク 突然のコメント、失礼いたします。 私は…
くーる31 @ 相互リンク 突然のコメント、失礼いたします。 私は…
2011.07.03
XML
カテゴリ: 店舗
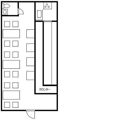
飲食業即営業できます!

話し合いにより備品も利用可能!

阪急曽根駅徒歩5分

大阪府豊中市曽根西町3丁目

敷金20万円 礼金50万円

賃料105,000円

広さ27.21平米(約8坪)

トランペットビル(2)-s.jpg

トランペットビル(1)-s.jpg



お問い合わせは

不動産のかすみ (有)星新ホーム 



http://www.kasumi-gp.com

kasumifc@proof.ocn.ne.jp



店舗物件検索


事務所物件検索


倉庫物件検索








人気blogランキングへ 参加中 ←1クリックお願いします。







お気に入りの記事を「いいね!」で応援しよう

Last updated  2011.07.03 10:14:05
コメントを書く


【毎日開催】
15記事にいいね!で1ポイント
10秒滞在
いいね! -- / --
おめでとうございます!
ミッションを達成しました。
※「ポイントを獲得する」ボタンを押すと広告が表示されます。
x
X

© Rakuten Group, Inc.
X

Design a Mobile Site
スマートフォン版を閲覧 | PC版を閲覧
Share by: