北摂・豊中市周辺の事業用(店舗・事務所・倉庫)テナント募集情報

北摂・豊中市周辺の事業用(店舗・事務所・倉庫)テナント募集情報

PR

Calendar

Profile

shin022002

shin022002

Comments

くーる31 @ 相互リンク 突然のコメント、失礼いたします。 私は…
くーる31 @ 相互リンク 突然のコメント、失礼いたします。 私は…
くーる31 @ 相互リンク 突然のコメント、失礼いたします。 私は…
くーる31 @ 相互リンク 突然のコメント、失礼いたします。 私は…
くーる31 @ 相互リンク 突然のコメント、失礼いたします。 私は…
2011.08.12
XML
カテゴリ: 事務所・店舗
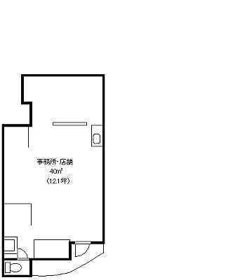
人気の豊中駅から2分の好立地物件!

店舗・事務所・倉庫等幅広い用途に対応できます!

大阪府豊中市本町3丁目

礼金50万円 敷金50万円

賃料157,500円(税込)

RC3階建て1階部分 広さ40平米(約12坪)

本町3丁目店舗(2)-s.jpg

本町3丁目店舗(3)-s.jpg

本町3丁目店舗(4)-s.jpg

本町3丁目店舗(1)-s.jpg




お問い合わせは

不動産のかすみ (有)星新ホーム 

06-6333-9997(AM9:00~PM7:00)

http://www.kasumi-gp.com

kasumifc@proof.ocn.ne.jp



店舗物件検索


事務所物件検索


倉庫物件検索








人気blogランキングへ







お気に入りの記事を「いいね!」で応援しよう

Last updated  2011.08.12 09:32:53
コメントを書く


【毎日開催】
15記事にいいね!で1ポイント
10秒滞在
いいね! -- / --
おめでとうございます!
ミッションを達成しました。
※「ポイントを獲得する」ボタンを押すと広告が表示されます。
x
X

© Rakuten Group, Inc.
X

Design a Mobile Site
スマートフォン版を閲覧 | PC版を閲覧
Share by: