平屋のお家と猫

平屋のお家と猫

2023.04.10
XML
カテゴリ: 家の事
こんにちは。
羅妃​ママです😸
絶賛平屋建築中です。

新築を建て始めたのは義母の将来を考えた末の決断でした。
80歳を迎え、いよいよ足捌きが悪くなり、日常的に転倒が増えた義母。
今住んでるお家は、とても古く、昔ながらの段差だらけで、すきま風(よく言えば風通しが良いとも言うw)だらけ。
真冬の朝の室温なんと2℃。
そんな極寒の家でよちよち歩きで恐怖を感じながら暮らしている義母。
余命が決まっているわけでもないが、死ぬ間際には幸せだったな。と思ってもらえるような家づくりをしたいと思いました。








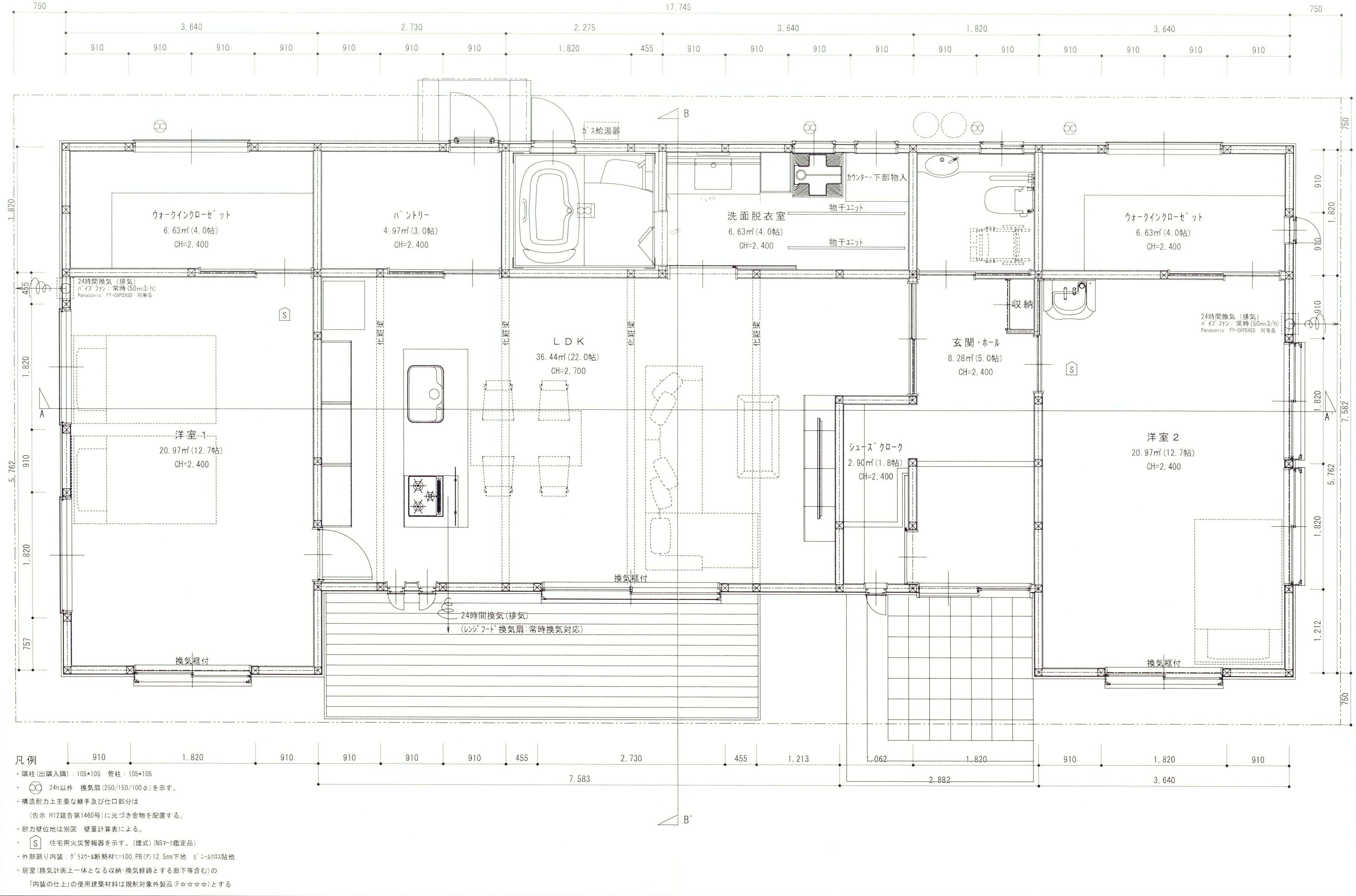
ほぼ南向きの平屋2LDK35坪です。
これは建築確認申請時のもので、実際はウッドデッキと玄関前のポーチ、繋がりました。
スロープも付けてます。

キッチン、カップボード、洗面台、トイレ、シューズクロークは全てパナソニックさんで揃えました。
ウォークインクローゼットとパントリーの棚は南海プライウッドさん。
これから少しずつ更新していきますので乞うご期待😸

私のROOMはこちら→
羅妃ママ🐈💎🏃自宅建築中🙌


コメント待ってます🎵​



すごい平屋 ​​

【中古】 モダンリビング(232) 平屋は贅沢! /ハースト婦人画報社(その他) 【中古】afb ​​
SETOUCHI MINKA featuring HIRAYA 美しき瀬戸内の平屋 2023【電子書籍】[ 益田武美 ]





お気に入りの記事を「いいね!」で応援しよう

Last updated  2023.04.13 17:17:24
コメント(2) | コメントを書く


■コメント

お名前
タイトル
メッセージ
画像認証
上の画像で表示されている数字を入力して下さい。


利用規約 に同意してコメントを
※コメントに関するよくある質問は、 こちら をご確認ください。


Re:我が家の間取り(04/10)  
lune さん
うひょ〜!
ゆったりした造りで住みやすそうだわ〜
ウォークインクローゼットとシューズクロークも広くてワクワクするね♬ (2023.04.11 20:28:24)

Re[1]:我が家の間取り(04/10)  
luneさんへ
来てくれてありがとう~🎵
実はもう柱の状態からシューズクロークは失敗だと確信しておりますww
ちょっと狭すぎたなって。。
この狭さだったら普通に下駄箱置くくらいで良かったかなって(;'∀')
きっとまだまだ色んな後悔ポイントが出てくることでしょう( ´∀` ) (2023.04.12 10:27:52)

【毎日開催】
15記事にいいね!で1ポイント
10秒滞在
いいね! -- / --
おめでとうございます!
ミッションを達成しました。
※「ポイントを獲得する」ボタンを押すと広告が表示されます。
x
X

PR

Keyword Search

▼キーワード検索

Profile

羅妃(ラピ)

羅妃(ラピ)

Category

カテゴリ未分類

(0)

家の事

(16)

モダンライクなもの

(2)

ズボラライク

(3)

楽天市場

(1)

新居に採用したもの

(0)

Archives

2025.11
2025.10
2025.09
2025.08
2025.07

Free Space

羅妃ママROOM
******************************************
インスタ
******************************************

Comments

羅妃(ラピ) @ Re:素敵!(04/15) やまとの母=hiro0147さんへ こんにちは~…
やまとの母=hiro0147@ 素敵! こんにちは、拝見いたしました。 憧れの…
羅妃(ラピ) @ Re[1]:我が家の間取り(04/10) luneさんへ 来てくれてありがとう~🎵 実…
lune@ Re:我が家の間取り(04/10) うひょ〜! ゆったりした造りで住みやすそ…

© Rakuten Group, Inc.

Design a Mobile Site
スマートフォン版を閲覧 | PC版を閲覧
Share by: