武田つとむファイナンシャルプランナー事務所 岩手 盛岡駅前

武田つとむファイナンシャルプランナー事務所 岩手 盛岡駅前

2013/08/31
XML
カテゴリ: マイホーム

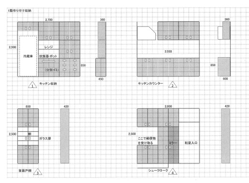
親世帯の1階部分の打合せは
一応・・終了しました。

自分の頭で考える・・生活設計。

















〇顧問会員のAさん(20代)
(相談:生活設計・マイホーム建築)


親世代との2世帯住宅の取得、
作業進行中・・です。



今日は・・親世代、
ご両親が2人で来所。
プラン打ち合わせを行ないました。


親世代・子世代の全員がそろって
打ち合わせをするのは、
それぞれの時間調整が
難しいので、

それぞれの世代だけで・・でも
打ち合わせをしていかないと、
前に進むことができません。


今日の打ち合わせで、
1階部分については、
かなり内容が煮詰まりました。

それでも・・後から
あーすればよかった、
こーすればよかった、
・・ということが必ず発生します。

何度も何度も展示場を見に
行くことをお奨めしました。

まったく素人の時に見る展示場と、
こうやって・・ある程度打ち合わせが
進んで知識が増した状況で見る
展示場・・とでは、
かなり景色が違って見えるものです。

新たな発見や気づきがあるかも
しれません。



これから・・
住宅会社がどこに決まろうが、
後から金額が増えることがないよう、
考えられることはすべて、
見積もりに含むように、

今・・がんばっています。

















Aさんのマイホーム:進行状況


  1 家計の現状診断・問題点把握 3/12
  2 ライフプランニング(生活設計) 5/15
  3 資金・ローンの目安を立てる  7/4
4 土地探し・土地売買契約8/14 
  5 展示場ほか見学  

6 事前手続き・住宅プラン検討 ・作製  
  7 住宅会社・数社が提案競争  9/23
  8 業者決定・請負契約 
  9 事前手続き・地鎮祭
  10 着工  ・ 上棟 
  11 完成・入居   
  12 住宅ローン返済開始







家計改善したい? 
きちんと生活設計したい?

なら・・(できるだけ)
1 生命保険に加入しない!
2 借金をしない!
3 経費を払わない!

これだけでいい。すごく かんたん。
見違える人生になる。




《 質問希望? 》 ブログ右「キーワード検索」をどうぞ。
「キーワード検索」に言葉 ⇒ 「このブログ内」 ⇒ 「検索」。


《 顧問会員希望? 》 「顧問会員って何?」で支援内容や
当事務所との関係を確認の上、右記へ
fpst@axel.ocn.ne.jp

行列が長くなり過ぎているので、当分の間
メール顧問会員の受付けは停止します。
(一般の顧問会員は、常時受付けています)











お気に入りの記事を「いいね!」で応援しよう

最終更新日  2013/08/31 06:55:53 PM


【毎日開催】
15記事にいいね!で1ポイント
10秒滞在
いいね! -- / --
おめでとうございます!
ミッションを達成しました。
※「ポイントを獲得する」ボタンを押すと広告が表示されます。
x
X

キーワードサーチ

▼キーワード検索

フリーページ

事務所の紹介


FP業 私の思い


相談・支援・講演料金


FP業務経歴


顧問会員って何?


顧問会員 業務と手順


お断りする場合も・・


顧問会員の約束事


メール顧問会員


不動産購入 会員


生活設計 基本の基本


1 生命保険に入らない


2 借金をしない


3 資産運用を しない


4 住宅会社は 最後に


ギャラリー 現状診断と生活設計①


ギャラリー 現状診断と生活設計②


ギャラリー 現状診断とマイホーム取得①


ギャラリー 現状診断とマイホーム取得②


ギャラリー 現状診断とマイホーム取得③


ギャラリー 現状診断とマイホーム取得④


ギャラリー 現状診断とマイホーム取得⑤


マイホーム取得


マイホーム建築支援


実行支援例(写真)


ギャラリー マイホーム建築 提案コンペ事例集


ギャラリー 住宅建築見積書 実例①


ギャラリー 住宅建築見積書 実例②


頭金と諸費用:1 田舎で全額現金


頭金と諸費用:2 田舎で土地代現金


頭金と諸費用:3 田舎でフルローン


頭金と諸費用:4 より田舎で全額現金


頭金と諸費用:5 より田舎で土地代現金


頭金と諸費用:6 より田舎でフルローン


頭金と諸費用:7 より都会で全額現金


頭金と諸費用:8 より都会で土地代現金


頭金と諸費用:9 より都会でフルローン


頭金と諸費用:10 都会で全額現金


頭金と諸費用:11 都会で土地代現金


頭金と諸費用:12 都会でフルローン


頭金とコスト:住宅ローン利息


頭金とコスト:諸費用とローン利息合計と さらに


ギャラリー 自分で年金計算して生活設計


夫会社員 妻自営業


妻はほとんど専業主婦


夫も妻も会社員


夫会社員 妻専業主婦


夫会社員 妻パート


夫会社員 妻パート


夫婦会社員(年収300・200万円) 夫5歳上


夫婦会社員(年収300・200万円) 同年齢


夫婦会社員(年収300・200万円) 妻5歳上


夫婦会社員(年収300・200万円) 夫10歳上


夫婦会社員(年収300・200万円) 妻10歳上


夫婦会社員(年収300・200万円) 夫15歳上


夫婦会社員(年収500・500万円) 夫5歳上


夫婦会社員(年収500・500万円) 同年齢


夫婦会社員(年収500・500万円) 妻5歳上


夫婦会社員(年収500・500万円) 夫10歳上


夫婦会社員(年収500・500万円) 妻10歳上


夫婦会社員(年収500・500万円) 夫15歳上


夫会社員(500万円)妻パート 夫5歳上


夫会社員(500万円)妻パート 同年齢


夫会社員(500万円)妻パート 妻5歳上


夫会社員(500万円)妻パート 夫10歳上


夫会社員(500万円)妻パート 妻10歳上


夫会社員(500万円)妻パート 夫15歳上


夫婦会社員(年収700・600万円) 夫5歳上


夫婦会社員(年収700・600万円) 同年齢


夫婦会社員(年収700・600万円) 妻5歳上


夫婦会社員(年収700・600万円) 夫10歳上


夫婦会社員(年収700・600万円) 妻10歳上


夫婦会社員(年収700・600万円) 夫15歳上


夫婦会社員(年収700・300万円) 夫5歳上


夫婦会社員(年収700・300万円) 同年齢


夫婦会社員(年収700・300万円) 妻5歳上


夫婦会社員(年収700・300万円) 夫10歳上


夫婦会社員(年収700・300万円) 妻10歳上


夫婦会社員(年収700・300万円) 夫15歳上


夫会社員(700万円)妻パート 夫5歳上


夫会社員(700万円)妻パート 同年齢


夫会社員(700万円)妻パート 夫5歳上


夫会社員(700万円)妻パート 夫10歳上


夫会社員(700万円)妻パート 妻10歳上


夫会社員(700万円)妻パート 夫15歳上


夫会社員(1200万)妻専業主婦 夫5歳上


夫会社員(1200万)妻専業主婦 同年齢


夫会社員(1200万)妻専業主婦 妻5歳上


夫会社員(1200万)妻専業主婦 夫10歳上


夫会社員(1200万)妻専業主婦 妻10歳上


夫婦会社員(年収1200・500万) 夫5歳上


夫婦会社員(年収1200・500万) 同年齢


夫婦会社員(年収1200・500万) 妻5歳上


夫婦会社員(年収1200・500万) 夫10歳上


夫婦会社員(年収1200・500万) 妻10歳上


夫婦会社員(年収1200・500万) 夫15歳上


夫婦自営業 夫年上


夫婦自営業 妻年上


夫自営業(元会社員10年)妻会社員 夫5歳上


夫自営業(元会社員10年)妻会社員 同年齢


夫自営業(元会社員10年)妻会社員 妻5歳上


夫自営業(元会社員10年)妻会社員 夫10歳上


夫自営業(元会社員10年)妻会社員 妻10歳上


夫自営業(元会社員10年)妻会社員 夫15歳上


夫自営業(元会社員10年)妻パート 夫5歳上


夫自営業(元会社員10年)妻パート 同年齢


夫自営業(元会社員10年)妻パート 妻5歳上


夫自営業(元会社員10年)妻パート 夫10歳上


夫自営業(元会社員10年)妻パート 妻10歳上


夫自営業(元会社員10年)妻パート 夫15歳上


夫自営業(元会社員20年)妻会社員 夫5歳上


夫自営業(元会社員20年)妻会社員 同年齢


夫自営業(元会社員20年)妻会社員 妻5歳上


夫自営業(元会社員20年)妻会社員 夫10歳上


夫自営業(元会社員20年)妻会社員 妻10歳上


夫自営業(元会社員20年)妻会社員 夫15歳上


夫自営業(元会社員20年)妻パート 夫5歳上


夫自営業(元会社員20年)妻パート 同年齢


夫自営業(元会社員20年)妻パート 妻5歳上


夫自営業(元会社員20年)妻パート 夫10歳上


夫自営業(元会社員20年)妻パート 妻10歳上


夫自営業(元会社員20年)妻パート 夫15歳上


ギャラリー  賃貸の人生 持ち家の人生


30代 4人 2019年9月


30代 4人 2021年3月


30代 3人 2020年12


30代 4人 2020月11


40代 3人 2020年5月


50代 独身 2020月3


30代 5人 2020年4月


30代 4人 2020年1月


30代 4人 2019年10


40代 3人 2019年9月


30代 4人 2019年1月


30代 4人 2019年10


30代 5人 2020年2月


30代 5人 2019年6月


40代 3人 2019年10


50代 6人 2020年4月


30代 5人 2019年1月


30代 4人 2018年8月


30代 5人 2019年3月


30代 4人 2018年7月


40代 4人 2018年3月


30代 5人 2019年6月


30代 5人 2018年10


30代 4人 2018年2月


30代 4人 2018年3月


40代 5人 2017年4月


30代 3人 2016年4月


40代 3人 2016年5月


30代 4人 2016年12


30代 4人 2017年1月


30代 4人 2017年4月


30代 4人 2017年5月


30代 4人 2018年3月


30代 4人 2016年12


40代 3人 2017年6月


30代 4人 2016年5月


30代 4人 2017年3月


40代 5人 2017年11


30代 4人 2017年11


30代 4人 2016年3月


30代 4人 2017年1月


30代 4人 2017年8月


30代 4人 2016年6月


30代 4人2017年4月


40代 4人 2016年11


40代 4人 2017年1月


30代 4人 2021年5月


30代 5人 2021年8月


30代 4人 2021年6月


30代 4人 2021年12


30代 4人 2022年5月


40代 4人 2022年5月


40代 4人 2022年6月


40代 4人 2022年6月


40代 4人 2023年4月


50代 3人 2023年8月


ギャラリー 教育費 死亡保障必要額


子供3人30代 2021年


子供2人30代 2021年


子供2人30代 2021年


子供2人30代 2021年


子供2人30代 2021年


子供2人30代 2021年


子供2人30代 2020年


子供3人30代 2020年


子供2人40代 2020年


子供1人30代 2020年


子供1人30代 2020年


子供1人40代 2020年


子供1人50代 2020年


子供2人30代 2020年


子供1人40代 2020年


子供3人30代 2020年


子供1人30代 2020年


子供2人40代 2020年


子供2人30代 2019年


子供2人30代 2019年


子供1人30代 2019年


子供2人30代 2019年


子供2人30代 2019年


子供2人30代 2019年


子供2人30代 2019年


子供1人40代 2019年


子供1人30代 2019年


子供1人40代 2019年


子供3人30代 2019年


子供3人30代 2019年


子供2人30代 2019年


子供2人30代 2018年


子供2人40代 2018年


子供1人30代 2018年


子供1人30代 2018年


子供3人40代 2018年


子供2人30代 2018年


子供1人30代 2018年


子供2人30代 2018年


子供2人40代 2018年


子供1人40代 2018年


子供2人40代 2018年


子供2人40代 2018年


子供3人30代 2018年


子供2人40代 2018年


子供2人40代 2018年


子供2人30代 2018年


子供1人30代 2017年


子供1人30代 2017年


子供2人30代 2017年


子供1人30代 2017年


子供1人30代 2017年


子供2人30代 2017年


子供2人40代 2017年


子供3人20代 2017年


子供1人30代 2017年


子供2人30代 2017年


子供1人40代 2017年


子供1人40代 2017年


子供2人30代 2017年


子供1人40代 2017年


子供1人30代 2017年


子供2人30代 2017年


子供2人30代 2017年


子供1人30代 2017年


子供1人40代 2017年


子供2人40代 2017年


子供1人30代 2017年


子供1人40代 2017年


子供1人30代 2017年


子供1人50代 2017年


子供1人40代 2016年


子供2人30代 2016年


子供2人30代 2016年


子供2人30代 2016年


子供2人30代 2016年


子供1人20代 2016年


子供1人20代 2016年


子供1人30代 2016年


子供2人40代 2016年


子供2人30代 2016年


子供3人40代 2016年


子供1人30代 2016年


子供1人30代 2016年


子供2人30代 2016年


子供1人40代 2016年


子供1人30代 2016年


子供2人30代 2016年


子供2人30代 2016年


子供1人30代 2016年


子供1人30代 2016年


子供1人40代 2016年


子供3人40代 2016年


子供1人20代 2016年


子供1人40代 2016年


子供2人30代 2016年


子供2人30代 2016年


子供1人30代 2016年


子供1人30代 2016年


子供2人30代 2016年


子供1人40代 2016年


子供3人30代 2016年


子供2人30代 2016年


子供1人30代 2016年


子供4人30代 2016年


子供2人40代 2022年


子供1人30代 2022年


子供2人30代 2022年


子供2人40代 2022年


子供2人40代 2022年


子供3人30代 2022年


子供2人30代 2022年


子供2人40代 2023年


子供1人40代 2023年


子供2人40代 2023年


子供1人50代 2023年


ギャラリー 生命保険は必要? 住宅取得の前後


M家 40代:4人家族


K家 30代:4人家族


A家 30代:4人家族


T家 30代:5人家族


S家 30代:4人家族


A家 30代:4人家族


K家 30代:3人家族


H家 30代:4人家族


U家 40代:3人家族


K家 30代:5人家族


K家 30代:4人家族


K家 40代:3人家族


A家 30代:5人家族


M家 50代:6人家族


M家 40代:5人家族


S家 30代:5人家族


Y家 30代:4人家族


S家 30代:4人家族


K家 30代:5人家族


R家 40代:4人家族


U家 40代:5人家族


Y家 30代:4人家族


S家 30代:4人家族


K家 30代:4人家族


I家 40代:4人家族


O家 30代:4人家族


O家 30代:4人家族


K家 30代:4人家族


N家 30代:4人家族


Y家 40代:4人家族


M家 40代:4人家族


I家 40代:3人家族


S家 30代:4人家族


K家 40代:3人家族


M家 40代:4人家族


K家 50代:3人家族


ギャラリー 生命保険加入表で確認 失うお金


H家:183万円の得


K家:481万円の損


T家:458万円の損


I家:1023万円の損


T家:457万円の得


H家:1871万円の損


H家:225万円の損


K家:203万円の損


H家:1429万円の損


I家:689万円の損


K家:819万円の得


M家:490万円の損


M家:10万円の損


K家:432万円の損


K家:214万円の損


S家:219万円の得


N家:529万円の損


A家:690万円の損


M家:201万円の損


K家:390万円の損


R家:64万円の損


H家:191万円の損


H家:501万円の損


S家:344万円の損


I家:500万円の損


U家:839万円の得


M家:389万円の得


Y家:1913万円の損


K家:1125万円の損


O家:430万円の得


Y家:49万円の得


S家:95万円の得


S家:58万円の損


I家:110万円の損


M家:371万円の得


T家:732万円の損


A家:85万円の得


S家:1557万円の損


M家:366万円の損


M家:192万円の損


U家:648万円の損


H家:324万円の損


K家:406万円の損


ギャラリー 自分で年金計算して生活設計


夫も妻も会社員


夫公務員 妻主婦


夫会社員 妻主婦


会社員


夫会社員 妻パート


夫も妻も会社員


夫会社員 妻パート


夫会社員 妻主婦


夫会社員 妻主婦


夫も妻も会社員


夫会社員 妻自営業


夫公務員 妻パート


夫も妻も会社員


夫も妻も公務員


夫会社員 妻主婦


夫も妻も会社員


夫公務員 妻団体職員


夫も妻も会社員


夫も妻も公務員


夫も妻も会社員


夫公務員 妻団体職員


夫も妻も会社員


夫会社員 妻パート


夫会社員 妻パート


夫会社員 妻パート


夫も妻も会社員


夫会社員 妻主婦


夫も妻も会社員


夫も妻も会社員


夫も妻も会社員


夫も妻も会社員


夫会社員 妻主婦


夫も妻も会社員


夫も妻も公務員


夫会社員 妻主婦


夫も妻も会社員


夫会社員 妻公務員


夫公務員 妻主婦


夫自営業 妻会社員


夫会社員 妻主婦


夫も妻も会社員


夫も妻も会社員


夫会社員 妻主婦


夫も妻も会社員


夫会社員 妻主婦


夫も妻も会社員


夫自営業 妻会社員


夫会社員 妻主婦


夫も妻も会社員


夫も妻も会社員


夫会社員 妻パート


夫も妻も会社員


夫も妻も会社員


夫も妻も会社員


夫も妻も会社員


夫会社員 妻パート


夫も妻も会社員


夫会社員 妻主婦


夫も妻も会社員


夫も妻も会社員


夫会社員 妻パート


夫会社員 妻パート


夫も妻も会社員


夫会社員 妻パート


夫も妻も会社員


夫会社員 妻パート


夫も妻も会社員


夫会社員 妻パート


夫も妻も会社員


夫会社員 妻パート


夫会社員 妻パート


夫も妻も会社員


夫も妻も会社員


夫会社員 妻パート


夫も妻も会社員


夫会社員 妻パート


夫会社員 妻主婦


夫会社員 妻パート


夫会社員 妻自営業


夫会社員 妻主婦


夫も妻も会社員


夫も妻も会社員


夫会社員 妻主婦


夫会社員 妻パート


夫も妻も会社員


夫も妻も会社員


夫会社員 妻主婦


夫会社員 妻パート


夫会社員 妻パート


夫も妻も会社員


夫も妻も会社員


夫も妻も会社員


夫会社員 妻自営業


夫会社員 妻パート


夫会社員 妻主婦


夫も妻も会社員


夫も妻も会社員


夫会社員 妻主婦


夫も妻も会社員


夫会社員 妻主婦


夫会社員 妻パート


夫公務員 妻主婦


夫会社員 妻自営業


夫会社員 妻公務員


夫も妻も会社員


夫も妻も会社員


夫も妻も会社員


夫自営業 妻パート


夫も妻も会社員


夫会社員 妻主婦


夫も妻も会社員


夫会社員 妻主婦


夫も妻も公務員


夫会社員 妻主婦


夫会社員 妻パート


夫も妻も会社員


夫会社員 妻主婦


夫会社員 妻主婦


夫公務員 妻会社員


夫も妻も会社員


夫も妻も会社員


夫会社員 妻主婦


夫会社員 妻パート


夫会社員 妻自営業


夫も妻も会社員


夫会社員 妻パート


夫会社員 妻パート


夫も妻も会社員


夫も妻も公務員


夫自営業 妻主婦


夫も妻も公務員


夫も妻も会社員


夫会社員 妻主婦


夫会社員 妻自営業


夫自営業 妻主婦


夫も妻も会社員


夫会社員 妻主婦


夫会社員 妻パート


夫会社員 妻主婦


夫も妻も会社員


夫会社員 妻主婦


夫会社員 妻主婦


夫も妻も会社員


夫も妻も会社員


夫会社員 妻主婦


夫会社員 妻主婦


夫も妻も会社員


夫も妻も会社員


夫会社員 妻主婦


夫会社員 妻主婦


夫会社員 妻主婦


夫会社員 妻公務員


夫会社員 妻主婦


夫も妻も会社員



© Rakuten Group, Inc.
X

Design a Mobile Site
スマートフォン版を閲覧 | PC版を閲覧
Share by: