PR
カレンダー
昨日・今日と作成作業をして、
メール添付で送りました。
自分の頭で考える生活設計。

〇顧問会員のSさん(20代)
(相談:生活設計・マイホーム建築)
実家の隣地(父所有)に、
マイホーム建築を計画中です。
今週末の7/19(土)で、
だいたいプランが固まる・・か?
というところまで進んでいます。
S家の概要
家族 : 3人家族。
20代会社員の夫、
20代の妻(数年後からパート)、
赤ちゃん。
住居 : 賃貸(5.2万円/月)
貯蓄 : 95万円
借金 : 130万円(マイカー)
死亡保障必要額 検証結果 :
現時点 10年後
夫 -98万円 -1,189万円
妻 -9,736万円 -9,307万円
-(マイナス)は不要ということで、
夫婦ともに現在も将来もまったく不要!
赤ちゃんがいても不要!
・・ということは、普通によくある。
(保険屋さんにだまされないように・・)

こんな外観の家に・・。
これまでの打合せの結果・・
以下のような絵になっています。
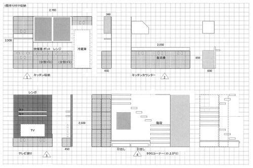
昨日は、作り付け収納の絵を作り、
メール添付で送りました。
今日は・・さらに、配置計画の絵を作成し、
メール添付で送りました。
Sさんのマイホーム:進行状況 2013年~
0 ヒアリング 7/31
1 家計の現状診断8/9 ・問題点把握
2 ライフプランニング(生活設計)
3 資金・ローンの目安を立てる
4 土地チェック 2014.5.17
5 展示場ほか見学
6 事前手続き・住宅プラン検討
・作製 7/?
7 住宅会社・数社が提案競争 8/?
8 業者決定・請負契約 8/?
9 事前手続き・地鎮祭
10 着工 ・ 上棟
11 完成・入居
12 住宅ローン返済開始
家計改善したい?
きちんと生活設計したい?
なら・・(できるだけ)
1 生命保険に加入しない!
2 借金をしない!
3 経費を払わない!
これだけでいい。すごく かんたん。
見違える人生になる。
『うまい話は無い』
『「常識」は業界が作っている』
『専門家の足し算で、
人生設計はできない。』
《 質問希望? 》 ブログ右「キーワード検索」をどうぞ。
「キーワード検索」に言葉 ⇒
「このブログ内」 ⇒ 「検索」。
《 顧問会員希望? 》 「顧問会員って何?」で支援内容や
当事務所との関係を確認の上、右記へ
fpst@axel.ocn.ne.jp
一般の顧問会員は常時受付けていますが、
メール顧問会員は普段、受付けを停止しています。
解体工事 終了予定の 12月3日です。 2025/12/03
こんなモノが マイホーム建築の見積書? 2025/12/02
基礎コンクリート そのままだと搬出できず 2025/12/02
キーワードサーチ
フリーページ