PR
カレンダー

《T家の概要》
家族 : 4人家族。
30代公務員の夫。
30代パートの妻。
子。 子。
希望 : マイホーム取得
住まい : 賃貸(家賃5.4万円)
生命保険加入状況
夫:定期保険2本、終身医療保険
死亡保障2,000万円
入院保障5,000円/日
(3本ともジブラルタ)
妻:終身医療保険
入院保障5,000円/日
(これもジブラルタ)
子:学資保険
271万円払って300万円
受け取る。(・・予定)
(これはなぜかアフラック)
死亡保障必要額 検証結果
(単位:万円)
現時点 10年後
夫: -1,264 -2,740
妻: -5,663 -5,675
「必要額」から「手当可能額」を
引いた結果なので、
マイナスは不要・・ということ。
・・ということで、
夫婦とも現在も将来も
生命保険は必要ありません。
![]()
マイホーム取得後の人生シミュレーション。
打合せ中の間取り・・です。
![]()
1階はこんな感じで・・
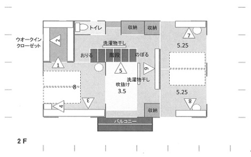
2階はこんな感じで・・。
今日の打合せの核心部分は、
積雪対策と屋根形状と敷地への配置です。
他の部分の打合せももちろん、
細かく、細かく、行ないましたが・・
なんと言っても、積雪の多い場所柄です。
積雪対策をどうするか?
・・が、大きなテーマになります。
希望の一つに小屋裏収納があるので、
屋根が平らな「無落雪屋根」にはしたくありません。
実際の生活上・・不都合が発生したりする
という情報も聞こえてきます。
雪が降る都度・・屋根から落とす
という考え方で行こう・・ということに。
ただ・・その際は、
お隣さんとトラブルにならないように、
確実に自宅敷地に雪が落ちるよう・・
境界から十分な距離を取ろうということに
なりました。
建物配置は一般的に、できるだけ北側に寄せて
南側を広く開けて日当たりを良くしようとします。
今回のTさんのケースでは・・
北側境界から3メートル離して、
南側境界からも3メートル離して、
屋根の雪を南北に落とすように、
配置・建築することになりそうです。
これなら、屋根の雪はすべて自宅敷地内
に落として処理することができそうです。
※積雪対策とはいえ・・
南側がたった3メートルしか
離れていないのなら、
日当たりが良くないのでは?
という指摘がありそうですが、
この土地の南隣りは、
お隣さんのカーポートです。
(南北幅が6メートルの)
元々・・西側道路の敷地ですが、
日当たりという意味では、
南側にも6メートルの道路がある
のと同じ状況で、「南西の角地」
と言っていい環境です。
日当たりは、十分にいいんです。
打合せを終えて、Tさん夫妻が帰ってから、
大変なことに気付いてしまいました。
Tさんの資料を作成している
エクセルファイルがありません。
今日・・打ち合わせた内容をすぐ
平面プラン等に反映させようと、
ドキュメントを開きましたが、ありません。
Tさんのファイルがどこにも無い。
ここ何日かで、無意識に削除してしまった
・・のかもしれません。
※スキャンして資料作成した後、
不要な資料はすぐ削除、
ということをいつも行なっていますが、
その際に・・ ひょっとしたら
間違っていっしょに削除したかも?
佐々木FPはいつも、
現状診断等の資料をバックアップしていますが、
私はバックアップの習慣がありません。
あ”~~~!
ゼロから資料作成! ・・です。
あ”~~ ・・。
自分で仕事を増やしてしまった・・。

積雪対策 ・・っと。
《 質問希望? 》 ブログ右「キーワード検索」をどうぞ。
「キーワード検索」に言葉 ⇒ 「このブログ内」 ⇒ 「検索」。
《 セミナー講師? 》 2時間3万円(+税・交通費)。
銀行・保険・住宅会社等に振り回されない生活設計。
消費者側に立った内容の講演。 講師をお受けします。
《 顧問会員希望? 》 「顧問会員って何?」で支援内容や
当事務所との関係を確認の上、右記へ
fpst@axel.ocn.ne.jp
会員受付けは「一般」は常時、「メール」は月日指定にて。
解体工事 終了予定の 12月3日です。 2025/12/03
こんなモノが マイホーム建築の見積書? 2025/12/02
基礎コンクリート そのままだと搬出できず 2025/12/02
キーワードサーチ
フリーページ