PR
カレンダー
自分の頭で考える生活設計。
〇顧問会員のKさん
(相談:マイホーム建築)
マイホーム建築の実行支援をしています。
1級建築士 月内の図面作製は無理だそうで
まるでソバ屋の出前 図面作製の1級建築士
やっと 正式な図面ができてきましたが
『プレゼンコンペへ向けて』
・平面プラン
・立面プラン
・配置・外構プラン
・什器プラン(造り付け収納等)
・仕上げ表
が、できあがれば、
コンペ用の正式図面を作製します。
で、プレゼンコンペ!を行ない、
業者決定!! 請負契約!!
という流れです。
1級建築士から、
修整された図面が届きました。
※1階平面、2階平面、立面の
3図面が修整されています。




いただいていたメール・・。
お世話になってます。
図面ありがとうございました。
見て気になった所は以下の通りです。
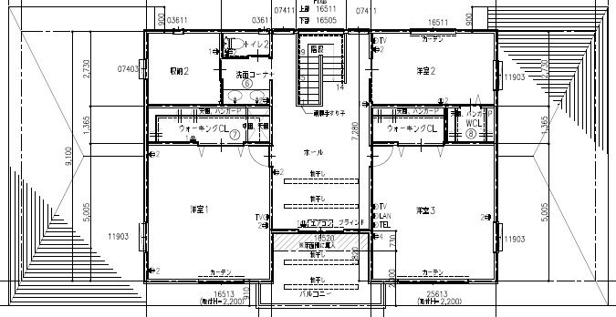
1階
・ワークスペース北側のポーチ。
※書き込まれています。
西側の窓は天井近くにハイサイド。
※修整されています。
が、もっと横長のものが想定
されていると思われるので、
そのようにお願いしておきました。
・書庫の窓は上がFIX、下が上下開閉タイプ。
(窓のマークが潰れて見えにくく
どのタイプか分からなかったので一応)
・浴室のバスタブは大きなものでなく
通常サイズで、ドアも中ほどにずらす。
※修整されています。
・洗面ボール側のコンセント2抜けてます。
洗濯機横の耐力壁。
(中ほどにある⬜に×印になってる所は
洗濯機マークですか?)
※床下点検口
(ゆかしたてんけんこう)です。
洗面脱衣室あたりに設けるのが
一般的ですが、希望次第で
別の場所でもOKです。
・リビング側が耐力壁で、
キッチン・和室側が引戸に変更。
※修整されています。
壁の中に建具を納めるように
するのが希望でしたが、
そのようにすると薄い壁に
なってしまい、
そのライン上には耐力壁が無い
状態で、好ましくありません。
・キッチン東側のコンセント1が抜けてます。
・和室の押入れ左側にスイッチ+コンセント2が
付けられるくらいの少しの壁。
※修整されています。
ただ・・建具2枚分の幅を取って、
さらにコンセント用の幅を
取った場合に、
押入出入口の幅は十分に確保
できるか・・?
押入入り口付近ののスイッチや
コンセントの位置は、
神棚の下の壁でいいのでは?
・キッチン北側の窓は
シンク~ガスコンロ手前までFIX 、
シンク左の作業スペース側が開閉タイプで
2階の窓位置と合わせる。
(おそらく窓をガスコンロから少し離したので
2階の窓とずれたと思うのですが)
※修整されています。
25609タイプの片引き窓が無いため、
2つの窓の組み合わせのようです。
・16509 FIX
・07409 ツーアクション窓
・土間北側の窓は上がFIX、下が上下開閉タイプ。
※修整されています。
2階
・ホールの西側コンセント2、
東側コンセント1が抜けてます。
・洋室2の北側窓の位置はキッチンに合わせる。
東側の窓のサイズは11903。
※修整されています。
全体図
・軒下の長さは307を450、780を900に変更。
隣が畑で遮るものがなく西日が厳しいのと、
ベランダが隠れる長さでないと屋根からの雨雪が
直接ベランダに入ってくるのではと思ったので。
※修整されています。
以上です。
まだ見落としがあるかもしれませんが
よろしくお願いします。
※他の図面に関して、武田FPが
引き続きチェック作業をします。
これまでの打ち合わせ結果の
外構プラン・立面プラン・
平面プラン・仕上げ表・配置プラン。


約90坪の家です。



内部造作プラン。
契約後に金額が増えることが無いよう、
きちんと見込んでおきましょう。
以下の資料は、私が描いたものではなく、
Kさん自身が描いたものです。
他のすべての資料も整ったら、
「造作」に関しては、以下の資料を
そのまま1級建築士に渡そうと思います。








※下段奥行き 40⇒50(cm)



2018.1.25 和室肘掛け窓のカウンターに。

2018.1.25
2018.1.25

2018.1.18
2018.1.18

2018.1.18

図面を整えてコンペへ・・。
・・っと。
〇 商品販売をしない。
〇 しがらみを持たない。
誇りをもって、愚直に、
消費者側に立ち続けて17年目の
ファイナンシャル・プランナー事務所。
《 質問希望? 》 ブログ右「キーワード検索」をどうぞ。
「キーワード検索」に言葉 ⇒ 「このブログ内」 ⇒ 「検索」。
《 顧問会員希望? 》 「顧問会員って何?」で支援内容や
当事務所との関係を確認の上、右記へ
fpst@axel.ocn.ne.jp
メール顧問会員は、指定した月日のみに受付けます。
解体工事 終了予定の 12月3日です。 2025/12/03
こんなモノが マイホーム建築の見積書? 2025/12/02
基礎コンクリート そのままだと搬出できず 2025/12/02
キーワードサーチ
フリーページ