PR
カレンダー

2016.3.9、現状診断 終了。
マイホーム取得へ向けて、作業中です。
午後1時半、ご夫婦で来所。
1級建築士作製の図面を
初めて見ながら、ほぼ最終的な
打ち合わせを行ないました。
細かな部分も、
しっかり詰めることができたと思います。
若い核家族なので不要かと思ったが、
念のため・・確認しました。
「仏壇とか神棚はどうしますか?」
「あ・・もちろん、いりません。」
と言われるかと思ったら・・
「後々は必要になるかもしれない・・。」
ということなので、
あ・・それなら、きちんと
間取りを考えておかなきゃならない
ということになりました。
・仏壇や神棚の真上(2階)を人が歩く
間取りであってはいけません。
・仏壇や神棚が北へ向くような配置を
してはいけません。
ということで、2階の主寝室の
カウンター&造りつけ収納の位置が
変更になりました。
住宅会社数社によるプレゼンコンペは
5月中旬に行なうつもりでした。
(年内入居のための逆算)
次に夫婦で休みをそろえられるのは、
5/11(水)、5/18(水)・・です。
各業者さんの見積り・・
連休が挟まるので11日は無理だろう・・と、
18日に設定しました。
今日の打合せ結果の通りに手直しが済んだら、
いよいよ・・各業者に見積もり依頼します。
で・・住宅ローンの事前審査。
ALUHIの担当のTさんに
当事務所に来てもらおうとしましたが、
会社の車が出払っていて、
身動きが取れない・・とのこと。
もう・・面倒だから、Iさん夫妻の方から
ALUHIに行くことになりました。
で・・事前審査の申請を行ないました。
さらに、売主側の不動産屋さんに
「契約は5/11(水)ではどうか?」
(「連休明けに契約しよう」ということだった)
・・の、電話をしました。
が・・ そんなにスムーズにはいかない模様。
売主さんは高齢女性のようで、
老人福祉施設に入っているようで・・
土地の売買手続きは弟さんがするらしい。
その弟さんももちろん高齢で、
住まいは岩手ではなく仙台・・らしい。
(耳も遠い・・らしい)
連休が明けたらスパッと契約!
という状況ではない・・らしい。
こちらの日程がどうのこうのではなく、
先方の状態が整うのを待つことになりそう・・。
不動産屋さんからの連絡を待ちます。
以下が、今日・・使用した図面です。
これらに・・色々な書き込みを行ない、
かなり汚くなったものを、
1級建築士に送りました。 (修整依頼)
![]()
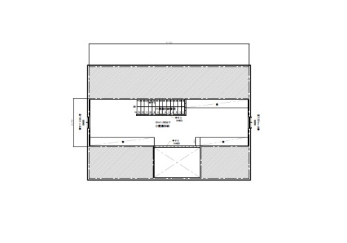
《 1階平面図 》
![]()
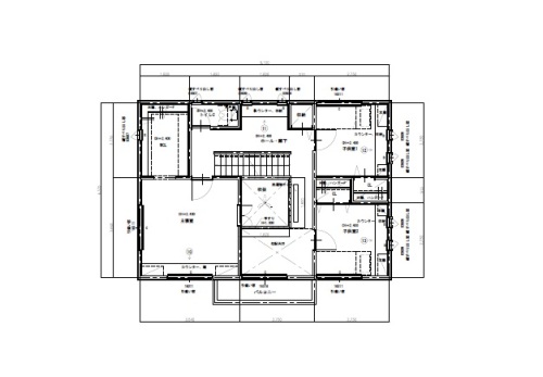
《 2階平面図 》
![]()
《 小屋裏収納 》
![]()
《 立面図 》
![]()
《 配置・外構図 》
![]()
《 仕上表 》
![]()
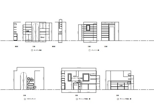
《 什器図1 》
![]()
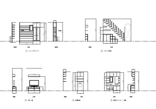
《 什器図2 》
![]()
![]()
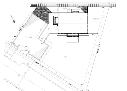
一日中・・日当たりの良さそうな土地です。
道路より一段高い150坪です。
大きい・・。
《 配置・外構プラン 》
![]()
※子どもたちが楽しく走り回れる
ような、広い庭です。
バーベキューをするウッドデッキは
けっこう大きいんですが、
庭が広すぎるため、
すごく小さく見えてしまいます。
《 平面・立面プラン 》
![]()
※オレンジの屋根に白壁、
スペイン風の家にあこがれています。
内部の塗り壁も、
全部では予算オーバーになりそう
なので、1階のみにしました。
《 什器プラン 》
![]()
※契約後に・・
「それも、これも、オプションです。」
なんて言われないように、
ハンコを押す前に、考えられる
作り付け収納や作りつけ家具を、
見積りに入れておいてもらいましょう。
《 仕上表 》
![]()
※複数の業者に見積もり依頼して、
同じ条件で比べっこするには、
この仕上表が必須。 (当たり前)
《 I家のマイホーム取得 》
※年内入居希望。
0 ヒアリング 3/3
1 家計の現状診断 問題点把握 3/9
2 ライフプランニング(生活設計) 3/15
3 資金・ローンの目安を立てる 4/4
※事前審査の申請へ・・。
4 土地探し
売買
契約・決済 5/?
※ただ今・・日程調整で、
売主側の意向を確認中。
5 展示場ほか見学 3/27
6 住宅プラン作成 4/20 図面
作製 4/?
7 複数の住宅会社でプレゼンコンペ 5/18
※当事務所にて、行ないます。
8 業者決定・請負契約 5/?
9 事前手続き
10 着工・地鎮祭 6/?
11 完成引き渡し 入居 11/?
※年内入居を目指しています。
12 住宅ローン返済開始 12/?
《 I家の概要 : 現状診断時点 》
![]()
家族 : 30代団体職員の夫、
30代団体職員の妻、
幼児2人・・の、4人家族。
相談 : マイホーム取得。
住居 : 夫の実家。(3.5万円/月 納入)
収入 :
夫 年収:302万円 (手取り:248万円)
妻 年収:297万円 (手取り:239万円)
貯蓄 : 830万円
収入はそれほど多くはないが、
堅実で健全な家計であることが
分かります。
借金 : なし。 (素晴らしい!)
生命保険料 : 0万円/年 (素晴らしい!)
死亡保障必要額 検証結果 :
現時点 10年後
夫 -1,938万円 -2,571万円
妻 -3,684万円 -4,174万円
「必要資金」から「手当可能資金」
を引いた結果なので、マイナスは
保障が不要ということです。
幼児と赤ちゃんがいますが、
夫婦ともに現在も将来も
生命保険は不要です。
これは特殊なケースではなく、
健全な家計であれば、当たり前。
「生命保険に入るのが当たり前」
・・と常々思っている人は、
どっぷりと洗脳されています。
延々とお金をたれ流し続けます。
![]()

・・っと。
〇 商品販売をしない。
〇 しがらみを持たない。
誇りをもって、愚直に、
消費者側に立ち続けて15年目の
ファイナンシャル・プランナー事務所。
《 質問希望? 》 ブログ右「キーワード検索」をどうぞ。
「キーワード検索」に言葉 ⇒ 「このブログ内」 ⇒ 「検索」。
《 顧問会員希望? 》 「顧問会員って何?」で支援内容や
当事務所との関係を確認の上、右記へ
fpst@axel.ocn.ne.jp
メール顧問会員は、指定した月日のみに受付けます。
解体工事 終了予定の 12月3日です。 2025/12/03
こんなモノが マイホーム建築の見積書? 2025/12/02
基礎コンクリート そのままだと搬出できず 2025/12/02
キーワードサーチ
フリーページ