PR
カレンダー

2016.3.9、現状診断 終了。
2016.6.17、土地決済引き渡し、
建物請負契約、ともに終了。



《 購入土地 》
一日中・・日当たりの良さそうな土地です。
道路より一段高い150坪です。
大きい・・。
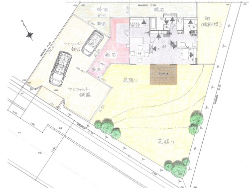
《 配置・外構プラン 》
![]()
※子どもたちが楽しく走り回れる
ような、広い庭です。
バーベキューをするウッドデッキは
けっこう大きいんですが、
庭が広すぎるため、
すごく小さく見えてしまいます。
《 平面・立面プラン 》
![]()
※オレンジの屋根に白壁、
スペイン風の家にあこがれています。
内部の塗り壁も、
全部では予算オーバーになりそう
なので、1階のみにしました。
《 什器プラン 》
![]()
※契約後に・・
「それも、これも、オプションです。」
なんて言われないように、
ハンコを押す前に、考えられる
作り付け収納や作りつけ家具を、
見積りに入れておいてもらいましょう。
(契約後の追加支出をゼロにしよう)
《 仕上表 》
![]()
※複数の業者に見積もり依頼して、
同じ条件で比べっこするには、
この仕上表が必須。 (当たり前)![]()
《 I家の概要 : 現状診断時点 》
![]()
家族 : 30代団体職員の夫、
30代団体職員の妻、
幼児2人・・の、4人家族。
相談 : マイホーム取得。
住居 : 夫の実家。(3.5万円/月 納入)
収入 :
夫 年収:302万円 (手取り:248万円)
妻 年収:297万円 (手取り:239万円)
貯蓄 : 830万円
収入はそれほど多くはないが、
堅実で健全な家計であることが
分かります。
借金 : なし。 (素晴らしい!)
生命保険料 : 0万円/年 (素晴らしい!)
死亡保障必要額 検証結果 :
現時点 10年後
夫 -1,938万円 -2,571万円
妻 -3,684万円 -4,174万円
「必要資金」から「手当可能資金」
を引いた結果なので、マイナスは
保障が不要ということです。
幼児と赤ちゃんがいますが、
夫婦ともに現在も将来も
生命保険は不要です。
これは特殊なケースではなく、
健全な家計であれば、当たり前。
「生命保険に入るのが当たり前」
・・と常々思っている人は、
どっぷりと洗脳されています。
延々とお金をたれ流し続けます。
![]()
ホントに2月に完成する?
・・っと。
〇 商品販売をしない。
〇 しがらみを持たない。
誇りをもって、愚直に、
消費者側に立ち続けて16年目の
ファイナンシャル・プランナー事務所。
《 質問希望? 》 ブログ右「キーワード検索」をどうぞ。
「キーワード検索」に言葉 ⇒ 「このブログ内」 ⇒ 「検索」。
《 顧問会員希望? 》 「顧問会員って何?」で支援内容や
当事務所との関係を確認の上、右記へ
fpst@axel.ocn.ne.jp
メール顧問会員は、指定した月日のみに受付けます。
解体工事 終了予定の 12月3日です。 2025/12/03
こんなモノが マイホーム建築の見積書? 2025/12/02
基礎コンクリート そのままだと搬出できず 2025/12/02
キーワードサーチ
フリーページ