PR
カレンダー

2016.12.24 土地契約
2017.6.19 土地決済・引渡し
ご夫婦で来所。
初めて見る「我が家の図面」で
打ち合わせしました。
7枚の図面です。
細かな部分までしっかり打ち合わせました。
これだけ見込んでおけば、
工務店が決定して契約した後でも
金額が増えることな無い
・・というレベルまで打ち合わせました。
※契約後に追加工事、増し工事とかで
どんどん金額が増えていくのが、
一般的なマイホーム建築です。
特に大手メーカーで契約した人は、
残念ながら・・その道をたどります。
(あるいは予算オーバーであきらめる)
そのようなことにならないためには、
安易にハンコを押してはいけない。
十分に希望の内容が入っている
ことを確認した上で、
複数の住宅会社を契約直前まで
しっかり比較検討しましょう。
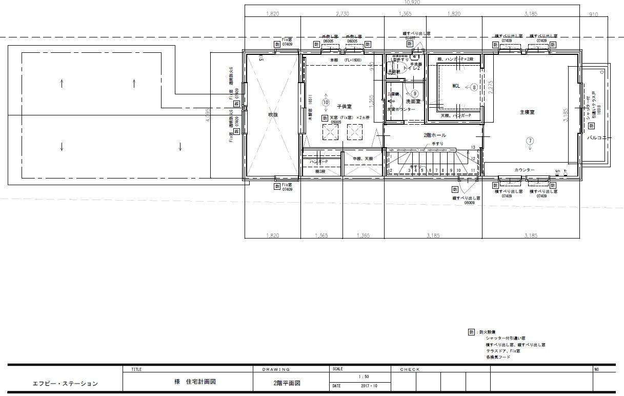
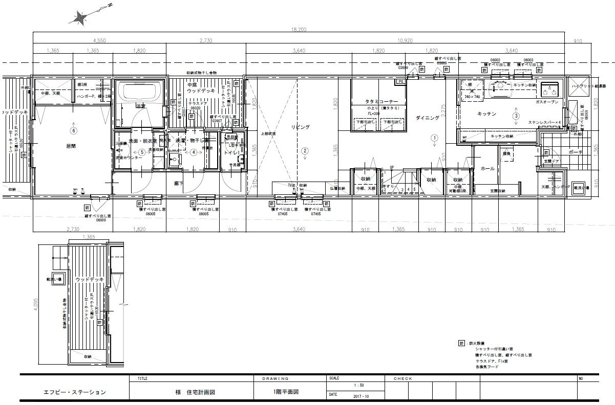
以下が7枚の図面の内の2枚です。
平面図の1階と2階です。
今日は7枚の図面の修整したい部分の
確認を行ないました。
来週には1級建築士に修整してもらい、
各工務店へ見積もり依頼できる状態に
します。
Mさんにはプレゼンコンペの日程も
調整してもらうことにしました。
当事務所にて行なうことになりますが、
なんとか平日を・・とお願いしました。
(佐々木FPがいるのでお茶出しができる)
この10月中にできれば・・と思います。


《 M家マイホーム取得への道 》
0 ヒアリング
1 家計の現状診断 問題点把握
2 ライフプランニング(生活設計)
3 資金・ローンの目安を立てる
4 土地探し 売買契約 12/24 決済 6/19
5 展示場ほか見学
6 住宅プラン作成9/11
図面作製10/
7 複数の住宅会社でプレゼンコンペ10/
8 業者決定・請負契約
9 事前手続き
10 着工・地鎮祭
11 完成引き渡し 入居
12 住宅ローン返済開始
平面プラン。

立面プラン。


仕上げ表。

什器プラン。



※タナや造り付け家具や収納は、
契約後にお願いすると・・
どんどん加算されて、
数百万円になることも・・。
生活に必要なものは・・すべて、
あらかじめ見込んでおいて、
複数の住宅会社を十分に比較
検討した上で、契約しましょう。
大手住宅メーカーがよくやる、
プラン未定・金額未定の状態で、
「とりあえず仮契約しておきましょう」
と言われて、
安易にハンコを押してはいけない。
(当たり前)
その瞬間に数百万円を失います。
仮契約なんて、存在しない。
それは、本物の契約だ。
(当たり前)

5メートルちょっと・・と、間口の狭い土地・・です。
北側道路から、南に向かって見ています。
一番奥が1メートル数十センチ 低くなっています。
航空写真で見ても・・ 本当に南北に細長い土地です。
(たて長の白いワクの土地)

両隣りには、びっしりと建物が建っています。
1と3が2階建てアパート、
4が3階建てアパート、
2だけが平屋で倉庫のようなものです。
《 M家の概要 : 現状診断時点 》
![]()
家族 : 3人家族。
50代会社員の夫。
40代専業主婦の妻。
小学生。
希望 : 一戸建てマイホーム取得
収入 : 1,299万円 (手取り:970万円)
住まい : マンション (自己所有)
貯蓄 : 4,003万円 (素晴らしい)
生命保険加入状況
夫:終身保険 第一生命
死亡保障500万円
終身年金 全労済
死亡保障720万円
子:学資保険 ソニー
死亡保障必要額 検証結果
(単位:万円)
現時点 10年後
夫: 236 -3,098
妻: -2,518 -2,140
「必要額」から「手当可能額」を
引いた結果なので、
マイナスは不要・・ということ。
236万円は長い期間で見れば、
無いに等しい。
・・ということで、
夫婦とも現在も将来も
生命保険は必要ありません。
死亡保障必要額 検証結果グラフ


M家もいよいよコンペ!・・だべ。
・・っと。
〇 商品販売をしない。
〇 しがらみを持たない。
誇りをもって、愚直に、
消費者側に立ち続けて16年目の
ファイナンシャル・プランナー事務所。
《 質問希望? 》 ブログ右「キーワード検索」をどうぞ。
「キーワード検索」に言葉 ⇒ 「このブログ内」 ⇒ 「検索」。
《 顧問会員希望? 》 「顧問会員って何?」で支援内容や
当事務所との関係を確認の上、右記へ
fpst@axel.ocn.ne.jp
メール顧問会員は、指定した月日のみに受付けます。
解体工事 終了予定の 12月3日です。 2025/12/03
こんなモノが マイホーム建築の見積書? 2025/12/02
基礎コンクリート そのままだと搬出できず 2025/12/02
キーワードサーチ
フリーページ