全58件 (58件中 1-50件目)
![]()
親世帯の1階部分の打合せは一応・・終了しました。自分の頭で考える・・生活設計。〇顧問会員のAさん(20代) (相談:生活設計・マイホーム建築)親世代との2世帯住宅の取得、作業進行中・・です。今日は・・親世代、ご両親が2人で来所。プラン打ち合わせを行ないました。親世代・子世代の全員がそろって打ち合わせをするのは、それぞれの時間調整が難しいので、それぞれの世代だけで・・でも打ち合わせをしていかないと、前に進むことができません。今日の打ち合わせで、1階部分については、かなり内容が煮詰まりました。それでも・・後からあーすればよかった、こーすればよかった、・・ということが必ず発生します。何度も何度も展示場を見に行くことをお奨めしました。まったく素人の時に見る展示場と、こうやって・・ある程度打ち合わせが進んで知識が増した状況で見る展示場・・とでは、かなり景色が違って見えるものです。新たな発見や気づきがあるかもしれません。これから・・住宅会社がどこに決まろうが、後から金額が増えることがないよう、考えられることはすべて、見積もりに含むように、今・・がんばっています。Aさんのマイホーム:進行状況 0 ヒアリング 2/19 1 家計の現状診断・問題点把握 3/12 2 ライフプランニング(生活設計) 5/15 3 資金・ローンの目安を立てる 7/4 4 土地探し・土地売買契約8/14 5 展示場ほか見学 6 事前手続き・住宅プラン検討・作製 7 住宅会社・数社が提案競争 9/23 8 業者決定・請負契約 9 事前手続き・地鎮祭 10 着工 ・ 上棟 11 完成・入居 12 住宅ローン返済開始家計改善したい? きちんと生活設計したい?なら・・(できるだけ)1 生命保険に加入しない!2 借金をしない!3 経費を払わない!これだけでいい。すごく かんたん。 見違える人生になる。 《 質問希望? 》 ブログ右「キーワード検索」をどうぞ。「キーワード検索」に言葉 ⇒ 「このブログ内」 ⇒ 「検索」。《 顧問会員希望? 》 「顧問会員って何?」で支援内容や当事務所との関係を確認の上、右記へfpst@axel.ocn.ne.jp行列が長くなり過ぎているので、当分の間メール顧問会員の受付けは停止します。 (一般の顧問会員は、常時受付けています)
2013/08/31

収入保障保険以外は加入しない!ようにすれば、生活設計が非常に楽になります。収入保障保険を扱っていない保険会社は相手にしないことです。扱っている8社程度から同条件で見積もりを取って、徹底的に比較検討しましょう。保険販売代理店には相談するな!「中立の立場で最適な保険を」世話してくれるわけがない。(当たり前)やつらが儲かる保険を押し付けてくるだけだ。近寄ってはいけない。自分の頭で考える・・生活設計。 〇メール顧問会員のNさん(20代) (相談:ライフプランニング)現状診断は7月に終わっていて、死亡保障は夫のみが必要で、現時点の必要額は約2,400万円です。家族 : 夫、妻、幼児が2人・・の4人家族。一般的に、生命保険の必要額は、将来に向けて減っていきます。(三角形を連想しましょう)Nさん(夫)の生命保険必要額は、40歳過ぎでゼロになります。以後の人生では、生命保険料という支出は、まったく不要になります。2人の子どもたちの教育費が最もかかる時期になるので、生命保険料という支出がゼロになるのは、非常に助かります。前回いただいたメール・・。 ※は、私の声。武田様、佐々木様ご無沙汰しております。現状診断をして頂いてから、随分と時間が経ってしまいましたが、資料を元に、保険をお願いしようと動いております。本日、保険屋さんが私がお願いした通り?の支払総額、支払い期間の保険を持ってきてくれました。三角形のプランで、東京海上日動さんのもので ※はあ・・? 何それ?29~44歳まで一時金受け取りなら2400万、分割受け取りなら2700万 月の掛け金は4095円! ※はあ? 何それ?私は『高いような...?』と思い、 ※めちゃ高!!「他には...? 2、3千円位でなかったですかね?」と聞いたら、「今日はこれ1つしか... 帰ってメールで送ります。」 ※ただの保険の売り子です。 手数料を多くもらえる商品を 奨めただけ・・です。とのことで、先ほどメールで「他」が届きました。添付されていた4つをそのまま添付します!こちらのFPの方いわく、 ※FPではない! 保険の売り子に過ぎない。 FPはライフプランニングを きちんと行なう人のこと。「普通の一般の皆様は このような(三角形の) 保険には入らない」とのことで ※はあ? 何言ってんの? さすが、保険の売り子。「一般の皆様」という資料も付けて下さいましたが、これは無視していいのですよね(^_^;)? ※そもそも・・この売り子と お付き合いしていいの? ここまで読んだだけで、 「こいつは・・よせ!」 ・・と言いたくなります。そして、お聞きしたいのが、現状診断で必要保障額は2400万と出して頂いたわけですが、「一時金で受け取る場合」と「年金(分割)で受け取る場合」と、どちらに2400万を合わせたらいいのでしょうか? ※もちろん毎月の分割受取り。 その方が同じ保障総額でも、 保険料(捨てるお金)が、 安く済む。 捨てるお金(保険料)は、 少ない方がいい。(当たり前)そして単純に考えて、今日持って来て頂いた月4095円のものは44歳まで払いこんだら総額737100円 受け取りは月15万アフラックは50歳まで払いこんだら総額562716円 受け取りは月11万あいおい生命は50歳まで払いこんだら総額492960円 受け取りは月13万...であれば、 ※・・って、これでは 比べようがない。 払うお金は「総額」で、 もらうお金は「月額」 ・・では。 比較検討する場合は、 払うお金の「月額」と「総額」 もらうお金の「月額」と総額」 を並べて眺めてみよう。 あいおい生命で決まり!?と思うのですが、何か落とし穴のようなものがあるのでしょうか? ※落とし穴だらけだ。 もぐらが次々と顔を出す もぐらたたき状態・・だ。 そもそも・・ バカ高い保険を売りに来て、 何か言われて・・後から 別の保険を送ってくる、 ・・そんな保険の売り子を 信用してはいけない。 信用できない売り子が提案 したものから、 その限られた範囲から 買い物をしてはいけない。 (当たり前)今回のメールの内容、ブログに載せて頂いても構わないのですが、数字や保険会社名を伏せるなどして、イニシャルも変えるか伏せて頂きたいです。 ※そんなことはしない!というのは、このFPさんに、武田さん、佐々木さんに作って頂いた資料を片手に相談していたら、 ※はあ?! 何それ! 何をやっているんだ! 「現状診断」を他人に見せるな! 特に保険屋や銀行員には・・。 (略) 保険の売り子なんかに 見せるものではない! (真剣に怒っている)それはどちらで...となりまして、この方、武田さんのHP、ブログをチェックしているようで...(^_^;)(略) ※この保険屋は信用できないので、 わざと、堂々と記事を書きました。 むしろ気まずくなってもらった方が 生活設計上は、すごく良くて、 わざわざ堂々と書いています。 「売り子」がこの記事を読んで、 怒ったり、妙なことを言ったら、 「待ってました。」 ・・って、関係を切ればいい。 自分でネットで探せば済む。 代理店任せにするから、 変で損な提案を受ける。 ネットで自分で見積もり作成して 徹底比較すればいい。 収入保障保険を検討するなら、 最低・・以下のすべてを 確認してみよう。 ・NKSJひまわり生命 ・三井住友海上あいおい生命 ・オリックス生命 ・ネクスティア生命 ・メットライフアリコ ・ソニー生命 ・アメリカンファミリー生命 ・富士生命 他の保険との抱き合わせ無し、 特約無し、最低保証期間は できるだけ短く、 自分でしっかり比較検討しよう。 20代男性なら、 死亡保障2,400万円の 保険料(捨てるお金)月額は、 たった2千円台で済む。 (ひょっとしたら、1千円台も?) 保険屋にだまされるな!メールをいただきました。 ※は、私の声。武田様記事拝見致しました。まず、「現状診断」を片手に相談してしまったこと、謝罪致します...。すいませんでした!以後気を付けます!気まずくしてくれてビックリです(汗)ですが、腹をくくれました(笑)そして、教えて頂いたことをしっかりやっていきたいと思います!とりあえず、教えて頂いた8社から見積もりを取りたいと思います。(意外とネットでは 13年という期間での見積もりが 取れなくてビックリ&ガッカリです...)そして、払うお金の「月額」と「総額」、もらうお金の「月額」と総額」をしっかり比較検討したいと思います。また結果が出次第、連絡しまーす。話は聞かせてもらいました。なかなか・・能天気でよろしい。かなりキツイことを書いたので、思いっきり落ち込んでいるかと思っていましたが・・前向きに捉えていた・・ようです。収入保障保険の見積もりで、「期間」が希望と合わないのは当たり前のことです。より近い期間で見積もるしかありません。(当たり前)その上で・・ (ここからが大事、しっかり理解する)希望の期間が来たら解約!することを前提に、「給付金総額」と「保険料総額」を算出して、比べっこ・・しましょう。ん? 分からない?たとえば・・希望の保険期間は13年だけど、ある商品は最低期間が20年の場合・・まず、給付金総額は・・契約期間は20年としても、13年でちょうど必要額(2,400万円)になるよう設定します。20年では3,600万円とかの大きな金額になると思います。で・・、その保険料は月2,000円だとしたら、保険料(捨てるお金)総額は2,000円×12ヶ月×20年=480,000円・・ではなく、13年で解約することを前提に2,000円×12ヶ月×13年=312,000円・・のような算数をして、各商品を同じ条件にそろえて、比べっこをしてみましょう。
2013/08/31
そんなことは、理由にならん!「顧問会員って何?」以下で元々説明しています。「夫の協力が得られない人は 顧問会員をお断りします。」よく読んでから振り込んでね・・と言っています。自分の頭で考える・・生活設計。 〇メール顧問会員のSさん8/9(金)に、新規にメール顧問会員になりました。メールをいただきました。(有)エフピー・ステーション武田 つとむ様お世話になります。先日メール顧問会員になりましたSと申します。入金も済ませ、ヒアリングシートを記入しようとしたのですが、夫の協力が得られず、完成させる見込みがたちません。それというのも、私が勝手にメール会員の申込みをしてしまったためで、夫は乗り気ではないようで、生涯収入についてやライフプランなど二人で相談する機会がほとんどとれないような状態です。それで、本当に本当に申し訳ないのですが、このたびのメール顧問会員の申込みにつきまして、キャンセルさせていただくことはできないでしょうか。こちらの勝手な都合で心より申し訳なく思っているのですが、36,000円という私達にとって大きな金額を捨てることはできないと考え、本日のご相談のメールとなりました。ご検討の程をよろしくお願い申し上げます。本当に申し訳ありません。 話は聞かせてもらいました。本来・・そのようなことは、キャンセルの理由になりません。顧問会員が希望の場合は・・ 「『顧問会員って何?』で支援内容や 当事務所との関係を確認の上、 申し込んでください。」・・としています。申込みをいただいた場合にも・・「申込み・入金に当たっては、 改めて「顧問会員って何?」で 内容の確認をお願いします。 顧問会員が受けられるサービス、 顧問会員と当事務所との関係、・・等々。 よろしければ・・これからの流れは、 以下のようになります。」・・としています。・・で、説明書きの中に下記があります。「お断りの場合&約束事」以下のような要望や条件を付ける場合は、最初から顧問をお断りします。その中のひとつに以下があります。 ■夫の理解が得られていないので、 収入や年金の資料を提出できない。「ご夫婦の一方が 「顧問会員になりたい♪」と思っても、 その配偶者にはその気が無い ・・というケースがあります。 家計の「現状診断」を行なうためには、 ご夫婦それぞれの個人情報資料を すべて提出していただくことになりますが、 一方の協力が得られなければ 不可能になります。 『顧問会員になりたい♪』 と思ったのが夫の場合は、 問題がないようです。 ・・が、それが妻の場合は・・ 夫の協力がないと先へ進むことが できません。 ご夫婦で話し合って合意の上、 お申込みください。」読まずに・・申込み・振込みされたようです。毎日毎日、忙しい思いをしています。報酬の無いボランティア・・で。新たな仕事を作らないでほしい・・。佐々木FPの方がメチャクチャ忙しいから、振込みに行くのは武田FP・・です。手間賃をいただきますなんて言わないけど、振込み手数料はそちらの負担です。(当たり前)来週早々に振り込みます。口座をお知らせください。こんなことは繰り返していられない。以後は、厳しくいきます。何度言っても説明を読まずに申し込んで、後からキャンセルしたい・・なんてことは認めません。「顧問料の振込みがあった時点で、 説明書きに同意したものとみなします。 振り込まれた顧問料は返却しません。」・・のように、していこう。忙しい私に、新たに色々な作業をさせないでください。 家計改善したい? きちんと生活設計したい?なら・・(できるだけ)1 生命保険に加入しない!2 借金をしない!3 経費を払わない!これだけでいい。すごく かんたん。 見違える人生になる。 今日の佐々木FP〇メール顧問会員のHさん(30代) (相談:ライフプランニング)現状診断 資料作成作業。本日より着手!大変長らくお待たせしました。【 行列のできるFP事務所 】 資料作成の順番を待っている顧問会員の行列です。 お待たせしています。大変申しわけありません! ヒアリングから完成まで一家族当たり平均5日です。 「回答待ち」の人は、個別の事情で長引いています。 回答が戻った順番に、作業着手しています。1 I さん(40代):現状診断 回答待ち。(9/11着)2 Kさん(40代):現状診断 回答待ち。(10/5着)3 Sさん(30代):現状診断 回答待ち。(12/17ヒア)4 Fさん(30代):シミュレ 回答待ち。(1/29着)5 Aさん(30代):現診 回答待ち。(4/1着)6 Sさん(40代):現診 回答待ち。(6/22着)7 Nさん(30代):現診 回答待ち。(4/12着)8 Eさん(30代):現診 回答待ち。(6/19着)9 Mさん(40代):現診 回答待ち。(5/2着)10 Hさん(40代):現診 回答待ち。(5/2着)11 I さん(60代):現診 回答待ち。(5/3着)12 Hさん(30代):現診 今日の作業(5/9着)13 Oさん(40代):現状診断 5/10 シート到着。14 Sさん(40代):現状診断 5/16 シート到着。15 Kさん(30代):現状診断 5/18 シート到着。16 I さん(30代):シミュレーション 5/20 依頼着。17 Tさん(30代):現状診断 5/23 シート到着。18 Sさん(30代):現状診断 5/31 シート到着。19 Yさん(50代):シミュレーション 6/2 依頼着。20 Sさん(30代):シミュレーション 6/4 依頼着。21 Kさん(30代):現状診断 6/8 依頼着。22 Oさん(30代):現状診断 6/12 依頼着。23 Tさん(30代):現状診断 6/24 依頼着。24 Yさん(40代):現状診断 6/27 依頼着。25 Sさん(30代):現状診断 7/3 依頼着。26 Kさん(30代):現状診断 7/5 依頼着。27 I さん(30代):シミュレーション7/9依頼着。28 Mさん(40代):現状診断 7/18 依頼着。29 Kさん(20代):現状診断 7/18 依頼着。30 Eさん(30代):現状診断 7/26 依頼着。 31 Mさん(30代):現状診断 8/1 依頼着。32 Mさん(30代):現状診断 8/4 依頼着。33 Kさん(30代):現状診断 8/5 依頼着。34 Nさん(40代):シミュレーション 8/7依頼着。35 Hさん(30代):現状診断 8/15 依頼着。36 Kさん(40代):シミュレーション8/27依頼着。37 I さん(30代):現状診断 8/28 依頼着。《 質問希望? 》 ブログ右「キーワード検索」をどうぞ。「キーワード検索」に言葉 ⇒ 「このブログ内」 ⇒ 「検索」。《 顧問会員希望? 》 「顧問会員って何?」で支援内容や当事務所との関係を確認の上、右記へfpst@axel.ocn.ne.jp行列が長くなり過ぎているので、当分の間メール顧問会員の受付けは停止します。 (一般の顧問会員は、常時受付けています)
2013/08/30

増税より怖い金利上昇住宅購入「駆け込む」前にという住宅ローンアドバイザーのお話。自分の頭で考える・・生活設計。 日経Web版より・・興味深い記事を発見しました。増税より怖い金利上昇住宅購入「駆け込む」前に住宅ローンアドバイザー・淡河範明2013/8/20 7:002013年上期日経MJヒット番付の西の横綱に「住宅ローン」が入ったほど、住宅購入の関心が高くなっています。住宅業界でも住宅展示場やマンションギャラリーが盛況のようです。その理由として、私が見たテレビのニュース番組では、「消費税増税」と「金利上昇懸念」を挙げていました。果たして消費者はどちらをより考慮すべきなのでしょうか。■「増税だから買う」は正しい行動?野田佳彦・前政権の最大の成果ともいえる消費税増税法案。安倍政権は消費税増税による景気への影響について精査したうえで、9月中にも来春に増税するかどうかを決めるとしています。住宅は人生における最も大きな買い物であり、消費税増税によるコストアップを回避するための駆け込み購入は当たり前のようにも思われますし、これまでにもありました。しかし、それは正しい行動なのでしょうか。消費税が3%から5%に引き上げられた1997年4月以降は、消費税増税後に景気が冷え込んでしまい、かえって住宅価格自体が値下がりしてしまったことをご存じでしょうか。首都圏の既存マンションの価格動向がわかる「東証住宅価格指数(首都圏総合)」で97年4月前後の数値を比較してみると、97年3月は「123.82」、翌月4月は「122.64」と約0.95%下落しています。さらに98年3月には前年同月比約9.01%も下落しました(グラフ1)。この指数に消費税をかけて調整した表2をみていただければ、増税の1カ月後こそ値上がりしたものの、あせらずに1年待ったほうが安く購入できたことがわかります。今回の消費税増税のインパクトを計算してみましょう。前提条件を価格4000万円のマンション(土地代金1600万円・ 建物代金2400万円)、住宅ローン3600万円とすると、消費税が3%上がることによって72万円の値上がりとなります。もし前回の増税時と同じように、再び住宅価格が下がるとすると、1年後には380万円程度値下がりすると試算されます。つまり、今回の消費税増税後に、アベノミクスの「3本の矢」が景気を今後とも押し上げて住宅価格の低迷をもたらさないかどうかを慎重に判断してから住宅を購入すべきかを判断するのが賢明だということになるでしょう。では、駆け込みのもう一つの要因である、金利上昇懸念についても検討してみましょう。■金利上昇で総返済額が大幅増今回の金利上昇懸念の発端は、何といっても日本銀行の黒田東彦新総裁が「2年以内に2%の物価上昇率」を目標に掲げたことによります。物価と金利は密接な関係にあり、原則として物価が上昇すれば金利は上昇します。つまり、物価が2年以内に2%上昇すれば、タイムラグがあるとしても金利も少なくとも2%上昇するということを意味しているのです。では、2%の金利上昇が起こるとどういうことになるでしょう。金利は借入期間全期間にかかるので、住宅保有にかかる総費用に大きな影響がでてきます。例えば、上記と同じ例で土地1600万円、建物2400万円(消費税前)の物件に対し、住宅ローンを3600万円借り入れした場合を試算してみましょう。現在の借り入れ条件をフラット35の「借入期間35年、金利1.99%」とし、借入時の金利から2%上昇したとすると、毎月返済額は約4万円増加し、繰り上げ返済などをしないとすると元利総支払額は1685万円も増えます(表2)。■超低金利時代でも変化幅はあるこのように、消費税増税のコストアップは72万円なのに対して、2%の金利上昇は1685万円という致命的ともいえるくらいの負担増をもたらします。仮に、金利が0.1%の上昇であれば約85万円の負担増であり、それだけで消費税増税分にほぼ匹敵するのです。黒田新総裁の目標通りに金利が上昇するとするならば、金利は住宅価格の下落の比ではないくらい大きな影響となるので、直ちに住宅を購入すべきだ、ということになりそうです。では、物価上昇2%が実現しなかったら、金利上昇を気にしないでよいのでしょうか。フラット35(最安値)の04年1月から13年7月までの9年半の期間を見てみましょう(グラフ2)。最大値3.17%、最小値1.8%であることから、超低金利の時代においても1.37%も変化しています。また、金利が変化する幅をみると、1カ月であればまったく動かないこともありますが、6カ月間になると0.2%程度の変化が起こっても不思議ではないようです。さて、「消費税増税」と「金利上昇懸念」のどちらを重視し検討すべきか、お分かりいただけたことでしょう。話は聞かせてもらいました。確かにマイホーム取得では、「消費税増税」よりも「金利上昇懸念」をより重視して検討したい・・ですね。それはその通りですが、住宅ローンを借りてそのまま繰上返済をすることなく行っては、もちろん・・いけません。きちんと生活設計した上で、返済をしながらなお貯蓄ができる計画で住宅取得をしたいものです。300万円の繰上返済で200万円の利息を節約!・・のようなことが可能ですから、節約利息総額は非常に大きな金額になります。(当たり前)なので・・きちんと生活設計した人の場合は、支払う利息総額が文面のような大きな金額になることはありません。実は・・マイホーム取得で最も重点を置くべきことは、「消費税増税」よりも、「金利上昇懸念」よりも、「住宅会社の選択」・・です。同じサイズ、仕様、性能、設備で、価格差が500万円とかつくのが当たり前です。ひどい場合は2千万円の差!などということも現実にありました。(当事務所が係わった実例)充分な比較検討をしないで建てた人は、たとえば・・建築費で500万円の損、さらには・・その分余分に住宅ローンを組んで追加利息負担が200万円、計700万円も上乗せ負担に。比較検討していない本人は、余分に負担することに気づきません。(おバカさんです)ということで、「消費税増税」よりも、「金利上昇懸念」よりも、「住宅会社の選択」を、きちんと重視したい。あ・・もちろん、一戸建て住宅の話です。あ・・もちろん、マンションは買ってはいけません。所有してはいけない。数十年後、お荷物に、金食い虫になる。(当たり前) 家計改善したい? きちんと生活設計したい?なら・・(できるだけ)1 生命保険に加入しない!2 借金をしない!3 経費を払わない!これだけでいい。すごく かんたん。 見違える人生になる。 《 質問希望? 》 ブログ右「キーワード検索」をどうぞ。「キーワード検索」に言葉 ⇒ 「このブログ内」 ⇒ 「検索」。《 顧問会員希望? 》 「顧問会員って何?」で支援内容や当事務所との関係を確認の上、右記へfpst@axel.ocn.ne.jp行列が長くなり過ぎているので、当分の間メール顧問会員の受付けは停止します。 (一般の顧問会員は、常時受付けています)
2013/08/30
![]()
細かな作業で大変です。イライラしないよう・・辛抱強く。自分の頭で考える・・生活設計。〇顧問会員のAさん(20代) (相談:生活設計・マイホーム建築)親世代との2世帯住宅の取得、作業進行中・・です。今日は・・作り付けの収納や家具のデザインに入りました。久しぶりなので、なかなか要領を得ませんが、まずは親世帯の1階部分から・・各社・・同じ条件で見積もってもらうためには、できるだけ細部まで絵にしておく必要があります。以下は・・2013.8.28 時点のプラン・・です。完全分離の2世帯住宅です。住宅会社はまだ決めていませんが、5社程度に見積もり依頼します。まだまだプランの細部を詰めていきます。Aさんのマイホーム:進行状況 0 ヒアリング 2/19 1 家計の現状診断・問題点把握 3/12 2 ライフプランニング(生活設計) 5/15 3 資金・ローンの目安を立てる 7/4 4 土地探し・土地売買契約8/14 5 展示場ほか見学 6 事前手続き・住宅プラン検討・作製 7 住宅会社・数社が提案競争 9/23 8 業者決定・請負契約 9 事前手続き・地鎮祭 10 着工 ・ 上棟 11 完成・入居 12 住宅ローン返済開始家計改善したい? きちんと生活設計したい?なら・・(できるだけ)1 生命保険に加入しない!2 借金をしない!3 経費を払わない!これだけでいい。すごく かんたん。 見違える人生になる。 今日の佐々木FP〇メール顧問会員の I さん(40代) (相談:ライフプランニング)現状診断 資料作成作業。整理整頓の結果、再々ヒアリングになりました。佐々木FP、確認事項があり何度も盛岡の年金事務所に質問電話をしましたが、どうにもなりません・・でした。「ご本人が、地元の年金事務所 で確認してもらわないと・・。」・・ということで、再々ヒアリングです。【 行列のできるFP事務所 】 資料作成の順番を待っている顧問会員の行列です。 お待たせしています。大変申しわけありません! ヒアリングから完成まで一家族当たり平均5日です。 「回答待ち」の人は、個別の事情で長引いています。 回答が戻った順番に、作業着手しています。1 I さん(40代):現状診断 今日の作業。(9/11着)2 Kさん(40代):現状診断 回答待ち。(10/5着)3 Sさん(30代):現状診断 回答待ち。(12/17ヒア)4 Fさん(30代):シミュレ 回答待ち。(1/29着)5 Aさん(30代):現診 回答待ち。(4/1着)6 Sさん(40代):現診 回答待ち。(6/22着)7 Nさん(30代):現診 回答待ち。(4/12着)8 Eさん(30代):現診 回答待ち。(6/19着)9 Mさん(40代):現診 回答待ち。(5/2着)10 Hさん(40代):現診 回答待ち。(5/2着)11 I さん(60代):現診 回答待ち。(5/3着)12 Hさん(30代):現状診断 5/9 シート到着。13 Oさん(40代):現状診断 5/10 シート到着。14 Sさん(40代):現状診断 5/16 シート到着。15 Kさん(30代):現状診断 5/18 シート到着。16 I さん(30代):シミュレーション 5/20 依頼着。17 Tさん(30代):現状診断 5/23 シート到着。18 Sさん(30代):現状診断 5/31 シート到着。19 Yさん(50代):シミュレーション 6/2 依頼着。20 Sさん(30代):シミュレーション 6/4 依頼着。21 Kさん(30代):現状診断 6/8 依頼着。22 Oさん(30代):現状診断 6/12 依頼着。23 Tさん(30代):現状診断 6/24 依頼着。24 Yさん(40代):現状診断 6/27 依頼着。25 Sさん(30代):現状診断 7/3 依頼着。26 Kさん(30代):現状診断 7/5 依頼着。27 I さん(30代):シミュレーション7/9依頼着。28 Mさん(40代):現状診断 7/18 依頼着。29 Kさん(20代):現状診断 7/18 依頼着。30 Eさん(30代):現状診断 7/26 依頼着。 31 Mさん(30代):現状診断 8/1 依頼着。32 Mさん(30代):現状診断 8/4 依頼着。33 Kさん(30代):現状診断 8/5 依頼着。34 Nさん(40代):シミュレーション 8/7依頼着。35 Hさん(30代):現状診断 8/15 依頼着。36 Kさん(40代):シミュレーション8/27依頼着。37 I さん(30代):現状診断 8/28 依頼着。《 質問希望? 》 ブログ右「キーワード検索」をどうぞ。「キーワード検索」に言葉 ⇒ 「このブログ内」 ⇒ 「検索」。《 顧問会員希望? 》 「顧問会員って何?」で支援内容や当事務所との関係を確認の上、右記へfpst@axel.ocn.ne.jp行列が長くなり過ぎているので、当分の間メール顧問会員の受付けは停止します。 (一般の顧問会員は、常時受付けています)
2013/08/29
保険屋さんが言ってました。・・さすが、保険の売り子。(儲からないものは売らない)保険屋にだまされないよーに。すなおに言うことを聞いていると、延々とお金をたれ流しすおバカさんになってしまいます。自分の頭で考える・・生活設計。 〇メール顧問会員のNさん(20代) (相談:ライフプランニング)現状診断は7月に終わっていて、死亡保障は夫のみが必要で、現時点の必要額は約2,400万円です。 N家の概要 家族 : 夫、妻、幼児が2人・・の4人家族。 職業 : 夫:略、 妻:略 住居 : 略 貯蓄 : 略 借金 : 略 生命保険料 : 略 (ワケ有り・・で、繊細は伏せます)一般的に、生命保険の必要額は、将来に向けて減っていきます。(三角形を連想しましょう)Nさん(夫)の生命保険必要額は、40歳過ぎでゼロになります。以後の人生では、生命保険料という支出は、まったく不要になります。2人の子どもたちの教育費が最もかかる時期になるので、生命保険料という支出がゼロになるのは、非常に助かります。メールをいただきました。 ※は、私の声。武田様、佐々木様ご無沙汰しております。現状診断をして頂いてから、随分と時間が経ってしまいましたが、資料を元に、保険をお願いしようと動いております。本日、保険屋さんが私がお願いした通り?の支払総額、支払い期間の保険を持ってきてくれました。三角形のプランで、東京海上日動さんのもので ※はあ・・? 何それ?29~44歳まで一時金受け取りなら2400万、分割受け取りなら2700万 月の掛け金は4095円! ※はあ? 何それ?私は『高いような...?』と思い、 ※めちゃ高!!「他には...? 2、3千円位でなかったですかね?」と聞いたら、「今日はこれ1つしか... 帰ってメールで送ります。」 ※ただの保険の売り子です。 手数料を多くもらえる商品を 奨めただけ・・です。とのことで、先ほどメールで「他」が届きました。添付されていた4つをそのまま添付します!こちらのFPの方いわく、 ※FPではない! 保険の売り子に過ぎない。 FPはライフプランニングを きちんと行なう人のこと。「普通の一般の皆様は このような(三角形の) 保険には入らない」とのことで ※はあ? 何言ってんの? さすが、保険の売り子。「一般の皆様」という資料も付けて下さいましたが、これは無視していいのですよね(^_^;)? ※そもそも・・この売り子と お付き合いしていいの? ここまで読んだだけで、 「こいつは・・よせ!」 ・・と言いたくなります。そして、お聞きしたいのが、現状診断で必要保障額は2400万と出して頂いたわけですが、「一時金で受け取る場合」と「年金(分割)で受け取る場合」と、どちらに2400万を合わせたらいいのでしょうか? ※もちろん毎月の分割受取り。 その方が同じ保障総額でも、 保険料(捨てるお金)が、 安く済む。 捨てるお金(保険料)は、 少ない方がいい。(当たり前)そして単純に考えて、今日持って来て頂いた月4095円のものは44歳まで払いこんだら総額737100円 受け取りは月15万アフラックは50歳まで払いこんだら総額562716円 受け取りは月11万あいおい生命は50歳まで払いこんだら総額492960円 受け取りは月13万...であれば、 ※・・って、これでは 比べようがない。 払うお金は「総額」で、 もらうお金は「月額」 ・・では。 比較検討する場合は、 払うお金の「月額」と「総額」 もらうお金の「月額」と総額」 を並べて眺めてみよう。 あいおい生命で決まり!?と思うのですが、何か落とし穴のようなものがあるのでしょうか? ※落とし穴だらけだ。 もぐらが次々と顔を出す もぐらたたき状態・・だ。 そもそも・・ バカ高い保険を売りに来て、 何か言われて・・後から 別の保険を送ってくる、 ・・そんな保険の売り子を 信用してはいけない。 信用できない売り子が提案 したものから、 その限られた範囲から 買い物をしてはいけない。 (当たり前)今回のメールの内容、ブログに載せて頂いても構わないのですが、数字や保険会社名を伏せるなどして、イニシャルも変えるか伏せて頂きたいです。 ※そんなことはしない!というのは、このFPさんに、武田さん、佐々木さんに作って頂いた資料を片手に相談していたら、 ※はあ?! 何それ! 何をやっているんだ! 「現状診断」を他人に見せるな! 特に保険屋や銀行員には・・。 手間暇かけて顧問会員のために 作った「現状診断」を 何だと思っている?! 当事務所が丹精込めた作品だ! 粗末に扱うな! 現状診断の総評に書いている。 「なお、本資料はご自身の 家計・資産の状況がすべて分かる 貴重な個人情報です。 他者に開示したりすることがないよう、 慎重に管理してください。」 保険の売り子なんかに 見せるものではない! (真剣に怒っている)それはどちらで...となりまして、この方、武田さんのHP、ブログをチェックしているようで...(^_^;)また保険を契約する時にはお会いしなければならないので、 ※この売り子とは 会わない方がいいし、 もちろん、契約なんて しない方がいい。疑っているようなこのメールの内容を読まれると気まずいので... ※「疑っているような」・・ではなく、 完全に疑っていい相手だ。 信用してはいけない。 気まずい思いをする 必要はまったく無い。 もう会わない方がいい。 この売り子に だまされかけた・・んだぞ。 そのへんを、 きちんと認識しよう。すいませんが、よろしくお願い致します。 ※この保険屋は信用できないので、 わざと、堂々と記事を書きました。 むしろ気まずくなってもらった方が 生活設計上は、すごく良くて、 わざわざ堂々と書いています。 「売り子」がこの記事を読んで、 怒ったり、妙なことを言ったら、 「待ってました。」 ・・って、関係を切ればいい。 自分でネットで探せば済む。 代理店任せにするから、 変で損な提案を受ける。 ネットで自分で見積もり作成して 徹底比較すればいい。 収入保障保険を検討するなら、 最低・・以下のすべてを 確認してみよう。 ・NKSJひまわり生命 ・三井住友海上あいおい生命 ・オリックス生命 ・ネクスティア生命 ・メットライフアリコ ・ソニー生命 ・アメリカンファミリー生命 ・富士生命 他の保険との抱き合わせ無し、 特約無し、最低保証期間は できるだけ短く、 自分でしっかり比較検討しよう。 20代男性なら、 死亡保障2,400万円の 保険料(捨てるお金)月額は、 たった2千円台で済む。 (ひょっとしたら、1千円台も?) 保険屋にだまされるな! 家計改善したい? きちんと生活設計したい?なら・・(できるだけ)1 生命保険に加入しない!2 借金をしない!3 経費を払わない!これだけでいい。すごく かんたん。 見違える人生になる。 《 質問希望? 》 ブログ右「キーワード検索」をどうぞ。「キーワード検索」に言葉 ⇒ 「このブログ内」 ⇒ 「検索」。《 顧問会員希望? 》 「顧問会員って何?」で支援内容や当事務所との関係を確認の上、右記へfpst@axel.ocn.ne.jp行列が長くなり過ぎているので、当分の間メール顧問会員の受付けは停止します。 (一般の顧問会員は、常時受付けています)
2013/08/29
![]()
投資するなら直接・・株式や債券に。「勉強は嫌い、人に任せたい。」なら、投資はしない方がいい。自分の頭で考える・・生活設計。〇メール顧問会員のMさん(40代) (相談:ライフプランニング)昨日・・8/27(火)午後2時、奥さんのみで来所しました。以下のような説明を行ないました。 M家の概要 家族 : 40代の夫、30代の妻、 幼児が2人・・の4人家族。 職業 : 夫:会社員、 妻:会社員 住居 : 社宅(0.5万円/月) H27年から賃貸(5万円/月) 貯蓄 : 約1,100万円 借金 : 0万円 生命保険料 : 2.57万円/年 (収入保障保険:死亡保障2,940万円) 〇借金と貯蓄の密接な関係。 以下は、住宅ローン繰上返済の効果を あらわすグラフです。 100万円の繰上返済で 節約できる利息は・・、 1年目なら95万円! 5年目なら78万円! 10年目なら58万円! ・ ・ 25年目でも11万円! 元手100万円で上記のような 金額がゲットできるということです。 リスク無しです。 だれでも簡単にできます。 他の金融商品でこのような パフォーマンスが見られるものは ありません。(当たり前) 『 貯蓄利息<借金利息! 』 貯蓄利息より借金利息の方が 圧倒的に大きいので、 金融機関が成り立っています。 (当たり前) 住宅ローン返済をしながら、 並行して・・ 教育資金準備で積立てをしている人や、 老後資金準備で積立てをしている人は、 申しわけないけど、おバカさんです。 (失礼!) 住宅ローンの繰上返済が、 最高の、最強の、教育資金準備法であり、 老後資金準備法・・です。 我が家の貯蓄を、目的別に考えると 敵の思うつぼ・・です。 (敵が売りたい商品を買わされます) お金は個別ではなく、総額で捉えましょう。 それが、ライフプランニングです。 (当たり前)〇市場金利と選ぶべき金融商品。現在は、ほぼ3・・の時期です。史上最低の低金利の時期です。この時期に長期の固定金利商品を買ってはいけません。(当たり前)なぜ?その低金利を固定してしまうからです。ところが・・大部分の人は、これらの金融商品や保険を買っています。おバカさんです。 (失礼!)この時期にお金を貯めたかったら・・積立定期(1年物)でコツコツ積み立てて、1年後に解約して、定期預金1年物に預けます。その繰り返しを継続します。市場金利が上昇すれば、自分の定期預金も階段を昇るように金利が上昇します。保険屋や銀行にだまされないよーに。自覚を持って、きちんとライフプランニングをしましょう。で・・今日、メールをいただきました。(有)エフピー・ステーション 武田様 佐々木様 昨日はどうもありがとうございました。直接、説明をお聞きできたことがやはりとても良かったです。 もや~っとしていたことが、すっきりしたようなそんな気持ちです。普通の定期は短期でと思い1年でやっていましたが、積立も1年が良い!というのが、 説明をお聞きすれば納得なのですが、お聞きしなかったらずっと積み立てるからと、長くやっていたと思います。 ※はい、今のような低金利時は・・ まとまったお金を預けるなら、 1年以下の定期預金に。 毎月積み立て貯蓄をするなら、 1年以下で一旦終わる積立定期を。 1年間積立ててまとまったお金は、 同様に1年以下の定期預金に。 これを繰り返していて・・ もし・・市場金利が上昇していけば、 自分の定期預金も 1年ごとに1段ずつ階段を昇るように 高い金利を獲得していけます。 早速今朝、出社前に投資信託はすべて解約しました。 ※早っ!!ネットで解約できなかったところには解約の資料請求しました。 ※素晴らしい・・行動力です。対面での購入を止め、ネット証券などで安い手数料のを見つけたと思っていましたが、昨日の説明で解約の気持ちが決まりました。 ※投資信託・・ 銀行だと毎年の運用手数料が 1.5%だったけど、 ネット証券なら0.5%で すごくお得♪・・のように思ったようです。 現在の日本で・・ 定期預金(1年)の金利は、 一般的には、0.025%です。 投資信託をお世話して、 お金を預かる側が頂く手数料は、 0.5%とか・・です。 いただけるお金は・・ 預ける側は0.025%、 預かる側は0.5%、 大した差ではないように見える? いえ、いえ、20倍!・・です。 一般的な、標準的な、金利の 20倍もの手数料を毎年 払っていったら、 お金が増えるわけがない ・・と考えるのが、普通の感性です。 どうせなら・・ 20倍のコストを払いながら 預ける側ではなく、 20倍のコストをもらいながら 預かる側になった方がいい。 (当たり前) こんな風に考えると・・ 銀行で奨められて買う投信なんて、 暴利も甚だしい・・ことが 分かります。 預ける側は0.025%、 預かる側は1.5%、 はい、60倍!・・です。暴利!です。 投信を買うお客ではなく、 投信を売る銀行員になった方がいい ことが、当たり前に分かります。 純金積立、プラチナ積立も解約の資料請求しました。 ※はい、はい、OK・・です。 これでスッキリ、これからは下がるかもと心配することなく、平和に過ごせそうです。 ※はい、よかった、よかった。今まで投資信託を購入していた金額は、定期積立でしっかり貯めようと思います。 ありがとうございました。 ※はい、確実に行きましょう。 健康になります。 ※投資するなら、直接・・ 株式や債券を。 投資信託はお金を預けて 運用してもらう・・という仕組み なので、当然に 高い手数料を取られる。 儲けても損しても、取られる。 投資がしたいなら・・ そんな不経済なことをしないで、 自分でしっかり勉強して、 直接・・株式や債券を やればいいこと・・です。 どっちにしても自己責任なら、 自分で責任が取れるよう しっかり勉強してやればいい。 それがいやなら、投資なんて いっさい考えない方がいい。 堅実な一生を送った方がいい。 (当たり前) 「何も分からない人のために 投資信託があります。 プロが責任もって運用します。」 なんて言葉にだまされないよーに。 何も分からなければ、 投資してはいけない。 自分で勉強するつもりが無ければ、 投資してはいけない。 プロが運用しようが、 素人が運用しようが、 市場次第で・・ 儲かったり、損したり、 損したり、損したり、 儲かったり、損したり、 損したり、損したり、・・する。 ん? 損する方が・・多い? 確実なのは・・ 売る側にいれば、 まちがいなく儲かる ということです。 どうしても投信に係わりたければ、 投信を買う側ではなく、 売る側にいればいい ・・です。 確実に得をします。(当たり前) (^^ゞ 《 質問希望? 》 ブログ右「キーワード検索」をどうぞ。「キーワード検索」に言葉 ⇒ 「このブログ内」 ⇒ 「検索」。《 顧問会員希望? 》 「顧問会員って何?」で支援内容や当事務所との関係を確認の上、右記へfpst@axel.ocn.ne.jp行列が長くなり過ぎているので、当分の間メール顧問会員の受付けは停止します。 (一般の顧問会員は、常時受付けています)
2013/08/28
『貯蓄利息<借金利息!』『医療給付金<医療保険料総額!』(当たり前)目を覚ませ、おバカさん!(失礼!)わずかな利息で預かったお金を高い利息で貸すから、金融機関は成り立っている。医療関連で払う給付金より、医療保険でもらう保険料が多いから、保険会社は成り立っている。金融機関や保険会社と反対側にいる私たち消費者は、・・だから損をする。目をさませ!おバカさん!(失礼!)借金はしない。保険には加入しない。・・生活設計の基本。自分の頭で考える・・生活設計。 〇メール顧問会員の I さん(30代) (相談:ライフプランニング)ヒアリングシートは先行して届いていましたが、提出書類は今日(8/28)届きました。晴れて・・今日、行列に並びました。いただいたメール・・です。 ※は、私の声。武田つとむ 様お世話になっております。メール顧問会員の I です。さっそく記事でのご指摘、ありがとうございました。奨学金の繰上げ返済・ ※利子を払う借金はしない! あるなら、できるだけ減らす!国民年金の未納分支払いはさっそく手続きしました。 ※公的年金はできるだけ 満額もらえるようにしておく! (当たり前)医療保険についても、すすめていきたいと思います。 ※放置していると・・ どんどん自動引き落としされる。 医療保険やガン保険は とっとと解約!親の家計については、やや複雑な事情もあり簡単にはいかなかったりはするのですが、自分なりに努力してみようと思います。実際に着手していただく約3ヵ月後には、方向性が見出せるようにしたいと思います。昨日、レターパックにて書類を送らせていただきました。ご査収いただきますよう、お願いいたします。以上、よろしくお願いいたします。 ※今日、届きました。 先は長いけど、まずは並ばないと 現状診断はできません。 家計改善したい? きちんと生活設計したい?なら・・(できるだけ)1 生命保険に加入しない!2 借金をしない!3 経費を払わない!これだけでいい。すごく かんたん。 見違える人生になる。 今日の佐々木FP〇メール顧問会員のNさん(30代) (相談:ライフプランニング)現状診断 資料作成作業。本日完成!メール添付で送りました。現状のまま推移すれば、問題の無いキャッシュフローです。子どもが1人いますが、夫婦ともに生命保険は不要です。(よくあること、よくあること)ただし、現状のままでは、土地を購入してのマイホーム取得は無理です。また、第2子が誕生すると、その時点から夫は生命保険が必要になります。〇メール顧問会員の I さん(40代) (相談:ライフプランニング)現状診断 資料作成作業。本日・・再着手。完成予定は、8/30(金)です。お楽しみに・・。【 行列のできるFP事務所 】 資料作成の順番を待っている顧問会員の行列です。 お待たせしています。大変申しわけありません! ヒアリングから完成まで一家族当たり平均5日です。 「回答待ち」の人は、個別の事情で長引いています。 回答が戻った順番に、作業着手しています。1 I さん(40代):現状診断 今日の作業。(9/11着)2 Kさん(40代):現状診断 回答待ち。(10/5着)3 Sさん(30代):現状診断 回答待ち。(12/17ヒア)4 Fさん(30代):シミュレ 回答待ち。(1/29着)5 Aさん(30代):現診 回答待ち。(4/1着)6 Sさん(40代):現診 回答待ち。(6/22着)7 Nさん(30代):現診 回答待ち。(4/12着)8 Eさん(30代):現診 回答待ち。(6/19着)9 Mさん(40代):現診 回答待ち。(5/2着)10 Hさん(40代):現診 回答待ち。(5/2着)11 Nさん(30代):現診 今日の作業。(5/3着)12 I さん(60代):現診 回答待ち。(5/3着)13 Hさん(30代):現状診断 5/9 シート到着。14 Oさん(40代):現状診断 5/10 シート到着。15 Sさん(40代):現状診断 5/16 シート到着。16 Kさん(30代):現状診断 5/18 シート到着。17 I さん(30代):シミュレーション 5/20 依頼着。18 Tさん(30代):現状診断 5/23 シート到着。19 Sさん(30代):現状診断 5/31 シート到着。20 Yさん(50代):シミュレーション 6/2 依頼着。21 Sさん(30代):シミュレーション 6/4 依頼着。22 Kさん(30代):現状診断 6/8 依頼着。23 Oさん(30代):現状診断 6/12 依頼着。24 Tさん(30代):現状診断 6/24 依頼着。25 Yさん(40代):現状診断 6/27 依頼着。26 Sさん(30代):現状診断 7/3 依頼着。27 Kさん(30代):現状診断 7/5 依頼着。28 I さん(30代):シミュレーション7/9依頼着。29 Mさん(40代):現状診断 7/18 依頼着。30 Kさん(20代):現状診断 7/18 依頼着。31 Eさん(30代):現状診断 7/26 依頼着。 32 Mさん(30代):現状診断 8/1 依頼着。33 Mさん(30代):現状診断 8/4 依頼着。34 Kさん(30代):現状診断 8/5 依頼着。35 Nさん(40代):シミュレーション 8/7依頼着。36 Hさん(30代):現状診断 8/15 依頼着。37 Kさん(40代):シミュレーション8/27依頼着。38 I さん(30代):現状診断 8/28 依頼着。《 質問希望? 》 ブログ右「キーワード検索」をどうぞ。「キーワード検索」に言葉 ⇒ 「このブログ内」 ⇒ 「検索」。《 顧問会員希望? 》 「顧問会員って何?」で支援内容や当事務所との関係を確認の上、右記へfpst@axel.ocn.ne.jp行列が長くなり過ぎているので、当分の間メール顧問会員の受付けは停止します。 (一般の顧問会員は、常時受付けています)
2013/08/28
![]()
まだまだ詰めるべきことがたくさんあります。自分の頭で考える・・生活設計。〇顧問会員のAさん(20代) (相談:生活設計・マイホーム建築)親世代との2世帯住宅の取得、作業進行中・・です。今日までの・・会っての打ち合わせ、メールでのやり取り、電話でのやり取り、・・などの結果、プランが煮詰まってきています。以下は・・2013.8.28 時点のプラン・・です。完全分離の2世帯住宅です。住宅会社はまだ決めていませんが、5社程度に見積もり依頼します。そのプレゼン・コンペは、9/23、〇〇児童センターに決定!(発注側が4人なので、いつもの 当事務所では狭すぎます)日時も会場も決めてかかります。ちなみに会場代は・・9時から17時まで一日借りて、タダ! ・・無料です。公共施設は積極的に利用しましょう。さあ! まだまだプランの細部を詰めていきます。さらには・・・土地への配置・外構工事・作り付け収納家具 (いっぱぁい・・ある!)・仕上げ表 これらの絵のすべてがそろって、初めて各住宅会社へ見積もり依頼ができる状態です。がんばれ 武田!がんばれ! がんばれ!Aさんのマイホーム:進行状況 0 ヒアリング 2/19 1 家計の現状診断・問題点把握 3/12 2 ライフプランニング(生活設計) 5/15 3 資金・ローンの目安を立てる 7/4 4 土地探し・土地売買契約8/14 5 展示場ほか見学 6 事前手続き・住宅プラン検討・作製 7 住宅会社・数社が提案競争 9/23 8 業者決定・請負契約 9 事前手続き・地鎮祭 10 着工 ・ 上棟 11 完成・入居 12 住宅ローン返済開始家計改善したい? きちんと生活設計したい?なら・・(できるだけ)1 生命保険に加入しない!2 借金をしない!3 経費を払わない!これだけでいい。すごく かんたん。 見違える人生になる。 《 質問希望? 》 ブログ右「キーワード検索」をどうぞ。「キーワード検索」に言葉 ⇒ 「このブログ内」 ⇒ 「検索」。《 顧問会員希望? 》 「顧問会員って何?」で支援内容や当事務所との関係を確認の上、右記へfpst@axel.ocn.ne.jp行列が長くなり過ぎているので、当分の間メール顧問会員の受付けは停止します。 (一般の顧問会員は、常時受付けています)
2013/08/28
![]()
生活設計の基本・・1 貯蓄利息<借金利息!2 低金利時に長期貯蓄はしない。売る側にだまされて、大部分の人たちは・・ひたすら、損をする方向に走っています。おバカさんです。(失礼!)自分の頭で考える・・生活設計。〇メール顧問会員のMさん(40代) (相談:ライフプランニング)今日・・8/27(火)午後2時、奥さんのみで来所。 M家の概要 家族 : 40代の夫、30代の妻、 幼児が2人・・の4人家族。 職業 : 夫:会社員、 妻:会社員 住居 : 社宅(0.5万円/月) H27年から賃貸(5万円/月) 貯蓄 : 約1,100万円 借金 : 0万円 生命保険料 : 2.57万円/年 (収入保障保険:死亡保障2,940万円) ※前回(8/21)面談で・・ Mさん夫妻が帰ったあと、 「あ・・まだ説明しなきゃ ならないことがあった・・。」 ・・と気づきました。 ・借金と貯蓄の密接な関係。 ・市場金利と選ぶべき金融商品。 などは、 長い人生を生きていく上で、 きちんと押さえておくべき、 基本中の基本!・・です。 しっかり基本を押さえておけば、 保険屋や銀行にだまされる こともありません。で・・今日、奥さんのみで来所。しっかり、説明しました。〇借金と貯蓄の密接な関係。 以下は、住宅ローン繰上返済の効果を あらわすグラフです。 100万円の繰上返済で 節約できる利息は・・、 1年目なら95万円! 5年目なら78万円! 10年目なら58万円! ・ ・ 25年目でも11万円! 元手100万円で上記のような 金額がゲットできるということです。 リスク無しです。 だれでも簡単にできます。 他の金融商品でこのような パフォーマンスが見られるものは ありません。(当たり前) 『 貯蓄利息<借金利息! 』 貯蓄利息より借金利息の方が 圧倒的に大きいので、 金融機関が成り立っています。 (当たり前) 住宅ローン返済をしながら、 並行して・・ 教育資金準備で積立てをしている人や、 老後資金準備で積立てをしている人は、 申しわけないけど、おバカさんです。 (失礼!) 住宅ローンの繰上返済が、 最高の、最強の、教育資金準備法であり、 老後資金準備法・・です。 我が家の貯蓄を、目的別に考えると 敵の思うつぼ・・です。 (敵が売りたい商品を買わされます) お金は個別ではなく、総額で捉えましょう。 それが、ライフプランニングです。 (当たり前)〇市場金利と選ぶべき金融商品。現在は、ほぼ3・・の時期です。史上最低の低金利の時期です。この時期に長期の固定金利商品を買ってはいけません。(当たり前)なぜ?その低金利を固定してしまうからです。ところが・・大部分の人は、これらの金融商品や保険を買っています。おバカさんです。 (失礼!)この時期にお金を貯めたかったら・・積立定期(1年物)でコツコツ積み立てて、1年後に解約して、定期預金1年物に預けます。その繰り返しを継続します。市場金利が上昇すれば、自分の定期預金も階段を昇るように金利が上昇します。保険屋や銀行にだまされないよーに。自覚を持って、きちんとライフプランニングをしましょう。家計改善したい? きちんと生活設計したい?なら・・(できるだけ)1 生命保険に加入しない!2 借金をしない!3 経費を払わない!これだけでいい。すごく かんたん。 見違える人生になる。 《 質問希望? 》 ブログ右「キーワード検索」をどうぞ。「キーワード検索」に言葉 ⇒ 「このブログ内」 ⇒ 「検索」。《 顧問会員希望? 》 「顧問会員って何?」で支援内容や当事務所との関係を確認の上、右記へfpst@axel.ocn.ne.jp行列が長くなり過ぎているので、当分の間メール顧問会員の受付けは停止します。 (一般の顧問会員は、常時受付けています)
2013/08/27
「残期間が10年になったら、 10年固定に借り換えよう。」・・というのはマチガイ!自分の頭で考える・・生活設計。 〇メール顧問会員希望の?さん(40代)このブログの読者のようです。 メールをいただきました。 ※は、私の声。始めまして最近 ここのサイトに出会い、毎日読ませて頂いています。メール会員は 今は募集しないとのことで 残念です(>_<) ※行列が長くなり過ぎました。 しばらく新規受付けは 行ないません。 最近よく電話やメールで 問い合わせを受けますが、 当分の間は無理です。 申しわけありません。建築のプランまで 相談にのっていただけるなんて、凄いなって思います ※その世界に、 サラリーマン時代も含めて 30年以上係わっています。私は言われるがままの いわゆる衝動的な買い物をした 一人です。 ※おバカさんです。(失礼!) 人生最大の買い物を 衝動に任せては いかん!その時にはしっかり考えていた・・・。。。 今思うと、考えていた つもり・・・ でしかなかったと 反省しています反省しても もう手遅れですが・・・(-"-) ※確かに・・。ここのサイトを読んで 勉強したいと思います ※過ぎたことは取り戻せない。 (当たり前) これから先の人生で おバカさんをやらないよう、 しっかり考え、行動しよう。いつかメール会員になれたら いいな・・・それまでに出来る事を 実行していきたいです ※保険屋や銀行に だまされないよーに。〇〇県在住 40代女性 (夫50代) ※え? 〇〇県? 水害に気を付けてください。 何県か・・バレバレ?また、メールをいただきました。武田様こんにちは先日は コメントありがとうございました^^憧れのタレントに手紙を出して、返事が来たみたいでした ※まちがいなく、 憧れのタレントではない!または、よく聴くラジオで 自分のリクエストが読まれた気持ちでした^^ ※よかった、よかった。今日のイラストは あまちゃんの一場面でしたね^^あんなイラストは どこからくるのですか?(いい場面でしたね あのシーンは(^O^)/) ※これのことですか? どこから・・くるんでしょうね?内容がちょっとずれました ※思いっきり、ずれました。住宅ローンは25年 固定(2.58%)あと17年残っています ※今どき、高金利・・です。10年固定ならたくさん安くて 出てるから、残り10年になったら借り換えよう! ※ん?! ん!? 何?! この考え方、思いっきり変! おバカさんです。(失礼!)と思っていた矢先、15年固定(当初2年 0.9% 後に13.5%) ※「13.5%」はもちろん 入力ミス・・ですよね。 そもそも・・残期間17年なら、 (繰上返済可能な人なら) ちょっと高金利な 15年固定ではなく、 10年固定での借り換えを 真剣に検討したい。JAのチラシを見つけました保障料が案外高いのですねでも、シュミレーションしてもらったら、トータル180万位違うので、 ※当たり前。 現在が高金利過ぎるから、 どこへ行って シミュレーションしても、 すごくお得な結果が出る。 (当たり前)考えようと 思っていたら、、、、月が 変わったら、金利が0.2%既に 上がっていた(>_<)早く手続きをすれば良かった(-"-) ※15年固定は選択肢に 入れない方がいいので、 手続きをしなくて・・むしろ、 良かった、良かった。シュミレーションをした時に JAの方に「現在の銀行の方に 借り換えの事を伝えたら 金利が下がる事も ありますよ」と言われ ※はい、よくあります。 よそに取られるよりは、 金利を下げてでも、 つなぎとめたい。(当たり前)さっそく出かけたら「経済が変われば 金利も変わる」 ※言っていることは真実です。と、始めに 人を馬鹿にしたような話をされました(私はそんな事を聞きに 出かけたわけじゃない!!)その後、10年固定の借り換えの話をされました ※これ・・、真剣に聞きたかった。 15年固定より10年固定が お奨め。(そんなの チラシを見ればわかる!! わざわざ出かけたのに!! ※え~っと、閉じカッコはどこ? 結局何百万と、 これまで利息を払っているのに、 なんの恩恵もないんですよね・・・ 銀行って。 ※そうカリカリしないで、 10年固定は良い提案ですよ。 複数の金融機関の10年固定を 真剣に比較検討しましょう。 預けた人は 色々と 恩恵があるのに・・・) ※あ・・あった、閉じカッコ。相談は 出来ないので、、、、あくまでも つぶやき です読んで下さり ありがとうございました(^-^) ※自分で勝手に怒ったり、 興奮したり、・・しないように。 精神衛生上、良くありません。 銀行は上手に利用しましょう。 銀行は上手に使い倒しましょう。 (^^ゞ ※住宅ローンの借換え。 「残期間が10年になったら、 10年固定に借り換えよう。」 ・・というのはマチガイ! 「残期間が17年だから、 15年固定に借り換えよう。」 ・・というのもマチガイ! 「残期間が17年だから、 10年固定に借り換えよう。」 ・・というのが、正解。 これは、前提条件があります。 積極的な繰上返済ができる人 であること・・です。 残期間17年でも、 積極的な繰上返済で 期間が短縮され、 10年前後で完済できます。 (当たり前!)家計改善したい? きちんと生活設計したい?なら・・(できるだけ)1 生命保険に加入しない!2 借金をしない!3 経費を払わない!これだけでいい。すごく かんたん。 見違える人生になる。 《 質問希望? 》 ブログ右「キーワード検索」をどうぞ。「キーワード検索」に言葉 ⇒ 「このブログ内」 ⇒ 「検索」。《 顧問会員希望? 》 「顧問会員って何?」で支援内容や当事務所との関係を確認の上、右記へfpst@axel.ocn.ne.jp行列が長くなり過ぎているので、当分の間メール顧問会員の受付けは停止します。 (一般の顧問会員は、常時受付けています)
2013/08/27
![]()
積極的な住宅ローン繰上返済のシミュレーションを・・自分の頭で考える・・生活設計。 〇メール顧問会員のKさん(40代) (相談:ライフプランニング)7/29(月)に現状診断が終了しています。8/12(月) AM10:00 はるばる盛岡の当事務所へ来ていただいて、現状診断結果と、生活設計の基本的な考え方などの、説明を行ないました。8/25にいただいたメール・・。 ※は私の声。いつもお世話になっておりますキャッフロー上での残高が1 200万円 2 250万円 3 300万円 とした場合の繰上返済のシュミレーションをしていただきたいと思うのですがよろしいでしょうか行列に並んでいる間に生命保険の清算 返戻金100万円の繰上返済 確定拠出年金を止めて、満額国民年金基金に、収入保障保険への加入を進めて参りたいと考えておりますよろしくお願いいたします ※ちょっと意味不明・・。 シミュレーションの依頼内容 についてですが、 3通りの人生シミュレーション をしたい・・ということでしょうか? 貯蓄残高が常に200万円以上 確保しながら積極的な 繰上返済をした場合の 人生はどうなるか? 同様に・・250万円の場合は? 同じく・・300万円の場合は? どうなるか?・・の、 3つのシミュレーション キャッシュフローを作ってほしい ・・という依頼と解釈していい でしょうか? ※「行列に並んでいる間に」 以降の文章後半部分は、 その通りでOK!・・です。 積極的に家計改善しましょう。また、メールをいただきました。意味不明な文章ではないとおもいますが・・・・・3通りの人生のシュミレーションをしていただきたいということですコメント通りの解釈でオッケイですよろしくおねがいします ※「毎年の貯蓄残高〇百万円 を確保しながら、積極的な 住宅ローン繰上返済をする キャッシュフローシミュレーション」 ・・は、1つ作るだけでも けっこうな作業ボリュームです。 それを・・50万円きざみで 3通りシミュレーションして という依頼だとしたら大変だな・・ のような思いがありました。 そして、 ご存じの通り、当事務所の 資料作成待ちの行列は 非常に長くなっており、 3~4ヶ月待ちの状況で 皆さんにご迷惑をおかけ しています。 シミュレーションは、 200万円と300万円の 2通りを作成するということで お受けします。 この2通りの資料ができれば、 250万円の場合や 350万円の場合なども、 おおよそ類推できるものと 思われます。 ご協力ください。 家計改善したい? きちんと生活設計したい?なら・・(できるだけ)1 生命保険に加入しない!2 借金をしない!3 経費を払わない!これだけでいい。すごく かんたん。 見違える人生になる。 今日の佐々木FP〇メール顧問会員のNさん(30代) (相談:ライフプランニング)現状診断 資料作成作業。 完成予定は今日(8/27)でしたが、明日に延びてしまいました。申しわけありません。【 行列のできるFP事務所 】 資料作成の順番を待っている顧問会員の行列です。 お待たせしています。大変申しわけありません! ヒアリングから完成まで一家族当たり平均5日です。 「回答待ち」の人は、個別の事情で長引いています。 回答が戻った順番に、作業着手しています。1 I さん(40代):現状診断8/27回答戻る。(9/11着)2 Kさん(40代):現状診断 回答待ち。(10/5着)3 Sさん(30代):現状診断 回答待ち。(12/17ヒア)4 Fさん(30代):シミュレ 回答待ち。(1/29着)5 Aさん(30代):現診 回答待ち。(4/1着)6 Sさん(40代):現診 回答待ち。(6/22着)7 Nさん(30代):現診 回答待ち。(4/12着)8 Eさん(30代):現診 回答待ち。(6/19着)9 Mさん(40代):現診 回答待ち。(5/2着)10 Hさん(40代):現診 回答待ち。(5/2着)11 Nさん(30代):現診 今日の作業。(5/3着)12 I さん(60代):現診 回答待ち。(5/3着)13 Hさん(30代):現状診断 5/9 シート到着。14 Oさん(40代):現状診断 5/10 シート到着。15 Sさん(40代):現状診断 5/16 シート到着。16 Kさん(30代):現状診断 5/18 シート到着。17 I さん(30代):シミュレーション 5/20 依頼着。18 Tさん(30代):現状診断 5/23 シート到着。19 Sさん(30代):現状診断 5/31 シート到着。20 Yさん(50代):シミュレーション 6/2 依頼着。21 Sさん(30代):シミュレーション 6/4 依頼着。22 Kさん(30代):現状診断 6/8 依頼着。23 Oさん(30代):現状診断 6/12 依頼着。24 Tさん(30代):現状診断 6/24 依頼着。25 Yさん(40代):現状診断 6/27 依頼着。26 Sさん(30代):現状診断 7/3 依頼着。27 Kさん(30代):現状診断 7/5 依頼着。28 I さん(30代):シミュレーション7/9依頼着。29 Mさん(40代):現状診断 7/18 依頼着。30 Kさん(20代):現状診断 7/18 依頼着。31 Eさん(30代):現状診断 7/26 依頼着。 32 Mさん(30代):現状診断 8/1 依頼着。33 Mさん(30代):現状診断 8/4 依頼着。34 Kさん(30代):現状診断 8/5 依頼着。35 Nさん(40代):シミュレーション 8/7依頼着。36 Hさん(30代):現状診断 8/15 依頼着。37 Kさん(40代):シミュレーション8/27依頼着。 ※ I さん(30代):8/24シート着 書類未着《 質問希望? 》 ブログ右「キーワード検索」をどうぞ。「キーワード検索」に言葉 ⇒ 「このブログ内」 ⇒ 「検索」。《 顧問会員希望? 》 「顧問会員って何?」で支援内容や当事務所との関係を確認の上、右記へfpst@axel.ocn.ne.jp行列が長くなり過ぎているので、当分の間メール顧問会員の受付けは停止します。 (一般の顧問会員は、常時受付けています)
2013/08/27

マイホームプランの打ち合わせがかなり細かいところにまで・・自分の頭で考える・・生活設計。〇顧問会員のAさん(20代) (相談:生活設計・マイホーム建築)親世代との2世帯住宅の取得、作業進行中・・です。今日・・〇〇銀行のローンプラザに電話しました。災害復興住宅資金の融資について・・・この「資金」の融資手続きは 何度も経験しているか? ・・の確認。 「よく、手続きさせていただいています。」 ※OK・・です。 手続きがスムーズに進みそうです。・営業時間は? 「年中無休です。 平日は10:00~18:00、 土・日・祝日は10:00~17:00です。」 ※銀行の一般的な業務時間とは だいぶ違うようです。 これなら、皆さんが手続きしやすい。 本来・・お客様商売なんだから、 これが当たり前だと思います。 午後3時で無情に シャッターを降ろしたりしないで・・。夕方、Aさんから電話・・家族で打ち合わせた結果、マイホームプランで要望がいくつも出てきているようです。箇条書きにして、メールで送ってもらうことにしました。それを確認した上で・・また、マイホームの平面プランや立面プランを修正します。なので・・今日はアップできません。また・・住宅ローン手続きは、Aさんが自分でローンプラザに行くことになりました。 ※初回だけは私が同行しようと 思いましたが・・ 不要なようです。 (^^ゞ複数の住宅会社によるコンペ、プレゼンテーション・コンペは、9/23(秋分の日)に決めています。希望の住宅会社をピックアップしてもらいます。 ※同じ条件で5社程度に 見積もり依頼します。 それぞれの業者に 見積もり提案してもらいます。 数百万円の価格差が 当たり前につきます。 これは主に、各業者の 経費の差です。 数百万円もの余分な経費負担を してはいけない。(当たり前) 全体を見渡して、 適正価格の目安を しっかりとつけて・・ その上で、確信を持って 建築を依頼する業者を 自分たちで選んでもらいます。 比較検討しないで 数百万円の損をして建てる (本人は損に気づかない) などということを しないで済みます。それから・・発注側が親世帯・子世帯の4人・・と、人数が多いので、いつもやっている当事務所では狭すぎます。別の会場を手当てしてもらいます。一日借りても安く済むところを。マイホーム建築、着工するまでにするべきことが、色々、色々、・・あります。一生に一度の大きな買い物です。当然のこと・・です。Aさんのマイホーム:進行状況 0 ヒアリング 2/19 1 家計の現状診断・問題点把握 3/12 2 ライフプランニング(生活設計) 5/15 3 資金・ローンの目安を立てる 7/4 4 土地探し・土地売買契約8/14 5 展示場ほか見学 6 事前手続き・住宅プラン検討・作製 7 住宅会社・数社が提案競争 9/23 8 業者決定・請負契約 9 事前手続き・地鎮祭 10 着工 ・ 上棟 11 完成・入居 12 住宅ローン返済開始家計改善したい? きちんと生活設計したい?なら・・(できるだけ)1 生命保険に加入しない!2 借金をしない!3 経費を払わない!これだけでいい。すごく かんたん。 見違える人生になる。《 質問希望? 》 ブログ右「キーワード検索」をどうぞ。「キーワード検索」に言葉 ⇒ 「このブログ内」 ⇒ 「検索」。《 顧問会員希望? 》 「顧問会員って何?」で支援内容や当事務所との関係を確認の上、右記へfpst@axel.ocn.ne.jp行列が長くなり過ぎているので、当分の間メール顧問会員の受付けは停止します。 (一般の顧問会員は、常時受付けています)
2013/08/26

投資として・・台湾人が東京のマンションを買っているようです。自分の頭で考える・・生活設計。今朝のTVニュースで取り上げていました。「日本(東京)のマンションを 購入する台湾人が増えている。」 ・・ようです。もちろん、投資用・・です。 ※やめた方がいい。(当たり前)台湾から東京に来てマンションを物色している人は、富裕層ではなく、中間管理職のサラリーマンです。あるいは・・20代の留学生(女性)。 ※おバカさん・・です。(失礼!)ほぼ全額ローンで買う・・そうです。家賃でローン返済をして、15年程度かけて完済後は、ずぅ~っと家賃収入が入る・・そうです。 ※おバカさんです。(失礼!) そんなうまい話は、 現実には無い。参考記事・・。「東京の不動産物件は安い!」と、日本で不動産所有を希望する台湾人が増え続けているという。台湾メディアが、最新のリサーチ結果を伝えた。台湾・中央社(CNA)は、世界の経済・金融情報を発信するブルームバーグの記事を参考に、台湾と東京を頻繁に往復している、48歳の台湾人女性について掲載。「彼女は三軒目の 東京のマンションの購入を検討中。 投資物件として既に購入した 東京都心部にあるマンションは 3LDKで、1.7億円。 東京の不動産は比較的安価で、 損をしない投資の対象になる と話している。 東京で不動産を購入し、 賃貸に出すと利益は8%程度。 ※業者から説明された 立ち上がり時点の利回りが そのまま続くことは あり得ない。(当たり前) 時間の経過と共に 構造や設備・仕上げは、 確実に劣化する。 修繕コストは徐々に増大 していく。(当たり前) 当然・・徐々に徐々に、 利回りは悪くなっていく。 (当たり前) 最後には大規模修繕や 建て替えが必要になったりして、 利回りどころではなくなる。 逆にまとまったお金を 出さなければならなく なったりする。 なれの果ては・・ 金食い虫、粗大ごみ・・に。 最近東京の不動産市場が上昇 してきたようで、 彼女のようなアジアの投資家たちが、 興味を示しだした」 ※おバカさん・・です。としている。またアメリカに本部を持つ不動産業界関係者のコメントとして、「日本とシンガポールと香港の 不動産価格を比較した場合、 日本の物件はとても安く見える。 状況は良くなり、 家賃収入は安定する見込み」と掲載。「不動産価格の目安として、 香港とシンガポールは東京の2倍程度、 ニューヨークのマンハッタンは東京並み」といったデータも紹介した。いかに香港やシンガポールが高値かわかるだろう。数年前から、台湾の投資家たちが日本の物件に注目していることは話題になっていた。セミナー開催やサポート体制をうたう業者も見受けられ、徐々に浸透し実際に物件を購入しているケースが増えているようだ。 ※そのようです。 盛んにセミナーが開催され、 投資のための購入を あおられているようです。 業者は仲介手数料が 稼げるので、もう・・どんどん あおります。 ※カタチあるもの、必ず壊れる。 20年、30年、と経過するうちに、 表面的な仕上げ部分だけでも、 大規模修繕!・・ということになり、 大きな費用負担が発生します。 (月数千円の積立修繕金なんて 何の役にも立ちません) 表面的な部分では済まずに、 構造躯体に支障が発生してきて、 これはもう建て替え以外に 方法は無い! ・・ということになれば、 けた違いの費用負担が発生・・。 マンションライフを楽しみたいなら、 賃貸にしよう。 買ってはいけない。 所有したときから、 定期的な修繕費支出が 生涯続きます。 (数千円の修繕積立金 ではなく、桁がちがう 実際の修繕費支出) その負担が徐々に徐々に 重さを増しながら・・ 生涯・・続きます。 中古だと、保有コストが ある程度増えた時期に 所有することになります。 さらにコストがどんどん増えて、 すぐ金食い虫になる。 新築だろうが中古だろうが、 買ってはいけない。 投資用に購入? ワンルームマンション? おバカさん・・です。 お金をドブに捨てる行為です。 業者にだまされるな! 世の中にうまい話は無い。 きちんと生活設計しよう。家計改善したい? きちんと生活設計したい?なら・・(できるだけ)1 生命保険に加入しない!2 借金をしない!3 経費を払わない!これだけでいい。すごく かんたん。 見違える人生になる。 佐々木FPは・・ チビちゃんの発表会関連で、・8/26(月)は、一日休みます。 記入方法等の質問で電話を いただく場合は、ご注意ください。《 質問希望? 》 ブログ右「キーワード検索」をどうぞ。「キーワード検索」に言葉 ⇒ 「このブログ内」 ⇒ 「検索」。《 顧問会員希望? 》 「顧問会員って何?」で支援内容や当事務所との関係を確認の上、右記へfpst@axel.ocn.ne.jp行列が長くなり過ぎているので、当分の間メール顧問会員の受付けは停止します。 (一般の顧問会員は、常時受付けています)
2013/08/26
![]()
キャッフロー上での残高が1 200万円 2 250万円 3 300万円 とした場合の・・自分の頭で考える・・生活設計。 〇メール顧問会員のKさん(40代) (相談:ライフプランニング)7/29(月)に現状診断が終了。お盆休み・・はるばる盛岡まで、家族4人でドライブしてきました。8/12 AM10:00 ・・当事務所へ。現状診断結果と、生活設計の基本的な考え方などの、説明を行ないました。・目的別貯蓄はしない。総額の キャッシュフローで人生を捉える。・生命保険はお金を失うこと。 できるだけ加入しない。・住宅ローン返済しながら、 並行して長期貯蓄をしない。・確定拠出年金をするくらいなら、 満額分・・国民年金基金を。・市場金利の高低と、選ぶべき 金融商品の関係を理解する。等々・・たっぷり説明しました。生活設計の基本部分をしっかり理解してもらった・・ようです。やはり・・直接会って、ヒザを突き合わせての相談の効果は、非常に大きい ・・と感じました。他のメール顧問会員も、できれば盛岡まで面談に来てもらえば、その分・・大きな効果が得られると思います。ぜひ、おいでください。いただいた お土産。ごちそうさまでした!ピーナッツサブレ : 佐々木FPへプレミアムモルツ : 武田FPへ もう・・たまりません!ありがとうございました。メールをいただきました。 ※は私の声。いつもお世話になっておりますキャッフロー上での残高が1 200万円 2 250万円 3 300万円 とした場合の繰上返済のシュミレーションをしていただきたいと思うのですがよろしいでしょうか行列に並んでいる間に生命保険の清算 返戻金100万円の繰上返済 確定拠出年金を止めて、満額国民年金基金に、収入保障保険への加入を進めて参りたいと考えておりますよろしくお願いいたします ※ちょっと意味不明・・。 シミュレーションの依頼内容 についてですが、 3通りの人生シミュレーション をしたい・・ということでしょうか? 貯蓄残高が常に200万円以上 確保しながら積極的な 繰上返済をした場合の 人生はどうなるか? 同様に・・250万円の場合は? 同じく・・300万円の場合は? どうなるか?・・の、 3つのシミュレーション キャッシュフローを作ってほしい ・・という依頼と解釈していい でしょうか? ※「行列に並んでいる間に」 以降の文章後半部分は、 その通りでOK!・・です。 積極的に家計改善しましょう。〇メール顧問会員希望の?さん(40代)このブログの読者のようです。 メールをいただきました。 ※は、私の声。始めまして最近 ここのサイトに出会い、毎日読ませて頂いています。メール会員は 今は募集しないとのことで 残念です(>_<) ※行列が長くなり過ぎました。 しばらく新規受付けは 行ないません。 最近よく電話やメールで 問い合わせを受けますが、 当分の間は無理です。 申しわけありません。建築のプランまで 相談にのっていただけるなんて、凄いなって思います ※その世界に、 サラリーマン時代も含めて 30年以上係わっています。私は言われるがままの いわゆる衝動的な買い物をした 一人です。 ※おバカさんです。(失礼!) 人生最大の買い物を 衝動に任せては いかん!その時にはしっかり考えていた・・・。。。 今思うと、考えていた つもり・・・ でしかなかったと 反省しています反省しても もう手遅れですが・・・(-"-) ※確かに・・。ここのサイトを読んで 勉強したいと思います ※過ぎたことは取り戻せない。 (当たり前) これから先の人生で おバカさんをやらないよう、 しっかり考え、行動しよう。いつかメール会員になれたら いいな・・・それまでに出来る事を 実行していきたいです ※保険屋や銀行に だまされないよーに。〇〇県在住 40代女性 (夫50代) ※え? 〇〇県? 水害に気を付けてください。 何県か・・バレバレ?家計改善したい? きちんと生活設計したい?なら・・(できるだけ)1 生命保険に加入しない!2 借金をしない!3 経費を払わない!これだけでいい。すごく かんたん。 見違える人生になる。 佐々木FPは・・ チビちゃんの発表会関連で、・8/26(月)は、一日休みます。 記入方法等の質問で電話を いただく場合は、ご注意ください。《 質問希望? 》 ブログ右「キーワード検索」をどうぞ。「キーワード検索」に言葉 ⇒ 「このブログ内」 ⇒ 「検索」。《 顧問会員希望? 》 「顧問会員って何?」で支援内容や当事務所との関係を確認の上、右記へfpst@axel.ocn.ne.jp行列が長くなり過ぎているので、当分の間メール顧問会員の受付けは停止します。 (一般の顧問会員は、常時受付けています)
2013/08/25
![]()
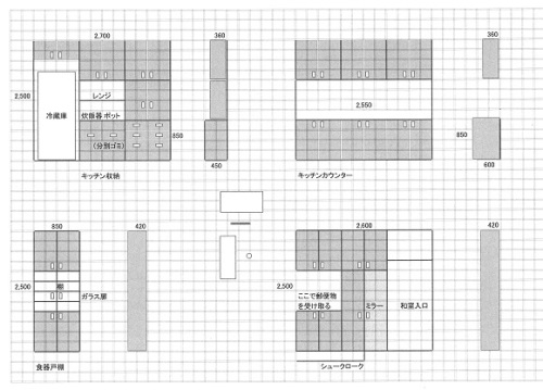
住宅の見積もりを依頼するには、細部まで決定する必要があります。住宅展示場を見学する時や、ふだん出歩くときに見る住宅などは、今までとは違う目でしっかり見る・・必要があります。自分の頭で考える・・生活設計。 ん? だれだ? おまえ・・。〇顧問会員のAさん(20代) (相談:生活設計・マイホーム建築)親世代との2世帯住宅の取得、作業進行中・・です。今日・・8/24(土) 15:00若夫婦とお父さんが来所。間取りプランの打ち合わせを行ないました。 ※お母さんは・・ 飼っているワンちゃんが 具合を悪くしたので 病院へ連れていったため、 来所できませんでした。今日もマイホームプラン打ち合わせ。・暖房器具の配置・流し前面のカタチ・洗面脱衣室内の構成・洗濯物干しはどこで?・リビングのTV廻り首脳家具・内部建具(ドア・引き戸)・ベランダのデザイン・ベランダ上の屋根・外部建具・外壁・候補業者のピックアップ等々・・確認事項はエンドレスにあります。これから・・展示場に行く場合や普通の家を見る場合、新たな目で確認してもらいます。9月初旬で内容を固めて、ピックアップされた住宅会社に次々と見積り依頼する予定です。プレゼン・コンペの日程は、9/23(月:秋分の日・友引)に、今日・・決まりました。・・で、業者を決めて9月中に契約する予定・・です。(消費税:5%で)さあ!がんばって資料作成をしなきゃ。《 立面プラン 》 西面・東面《 立面プラン 》 北面・南面Aさんのマイホーム:進行状況 0 ヒアリング 2/19 1 家計の現状診断・問題点把握 3/12 2 ライフプランニング(生活設計) 5/15 3 資金・ローンの目安を立てる 7/4 4 土地探し・土地売買契約8/14 5 展示場ほか見学 6 事前手続き・住宅プラン検討・作製 7 住宅会社・数社が提案競争 9/23 8 業者決定・請負契約 9/ 9 事前手続き・地鎮祭 10 着工 ・ 上棟 11 完成・入居 12 住宅ローン返済開始家計改善したい? きちんと生活設計したい?なら・・(できるだけ)1 生命保険に加入しない!2 借金をしない!3 経費を払わない!これだけでいい。すごく かんたん。 見違える人生になる。 佐々木FPは・・ チビちゃんの発表会関連で、・8/26(月)は、一日休みます。 記入方法等の質問で電話を いただく場合は、ご注意ください。 《 質問希望? 》 ブログ右「キーワード検索」をどうぞ。「キーワード検索」に言葉 ⇒ 「このブログ内」 ⇒ 「検索」。《 顧問会員希望? 》 「顧問会員って何?」で支援内容や当事務所との関係を確認の上、右記へfpst@axel.ocn.ne.jp行列が長くなり過ぎているので、当分の間メール顧問会員の受付けは停止します。 (一般の顧問会員は、常時受付けています)
2013/08/24
現在の親の家計を整理整頓してあげたら・・?自分の頭で考える・・生活設計。〇メール顧問会員の I さん(30代) (相談:ライフプランニング)5/2(木)、新規にメール顧問会員になりました。・・。それっきり ・・でした。 (^^ゞメールをいただきました。お世話になっております。メール顧問会員の I と申します。5月にメール顧問会員になってからずいぶん時間が経ってしまいました。 ※ ・・ですね。本当はすぐに着手する予定でいたのですが、第二子の出産が予定日より3週間ほど早まったこと、また私自身が海外出張が入ったことなどあって、結局この時期になってしまいました。 ※色々・・あったんですね。ヒアリングシート作成に際して、いくつか書ききれなかった補足事項を書かせていただきます。1 親への支援について 私の実家は まだ住宅ローンを抱えており、 聞くところによるとそれぞれ 75歳までローンがつづくとのことです。 ※それはマズイ。 明らかに住宅ローンで お金をたれ流している状態です。 実家の家計には 私はノータッチではいますが、 ※タッチ・・した方がいい。 それなりに年金や給与収入がある とはいえ、体調を崩せば なんらかの支援をせざるを得ない 状態です。 ※お金での支援の前に やってあげられることが 色々ありそう。 そのような意味で、確実に 要支援になるかはわかりませんが、 仮に月10万円の支援が 母親定年後から必要 という想定をさせていただきました。 ※そんなスゴイ想定をして、 本当にいいかどうか・・? 60歳定年とすれば、 女性の平均余命は28年です。 10万円×12ヶ月×28年 =3,360万円! 支援金総額は、3,360万円! 地方なら・・ 「土地を買って家が建てる」 ことが楽にできる金額です。 自分のキャッシュフローに 大きく影響する金額です。2 年金の計算について 私は私学共済に、 妻は公立学校共済になるわけですが、 両共済組合に 年金額を問い合わせたところ、 そんな計算はできないと けんもほろろに言われてしまいました。 ※そうだと思います。 確かに 平成27年からの共済年金の 厚生年金への一本化などを考えれば、 これまでのような有利な 年金制度にはならないとは思います。 ただ、どうしようもないので、 一応私なりに年金について勉強し、 平均標準給与額から 計算式に当てはめて計算 したものを入力してあります。 ※その計算は当事務所の業務です。 年金のデータが無い場合は、 報酬額と加入期間が分かる 資料をいただいて、 当事務所で計算しています。 このあたり、不適切であれば お知らせいただければ幸いです。 ※再ヒアリングでお願い することになります。ヒアリングシートの項目について、私なりに理解し記入したつもりですが、もし誤りなどあるようでしたら、ご連絡いただければありがたく思います。 ※順番が来て着手して、 整理整頓後・・「再ヒアリング」 として、お送りします。今回、ヒアリングシートの記入を通して、初めて自分の(家族の)人生設計の金銭的見通しについて考えることができました。 ※皆さんが同じ体験をします。夫婦で別の財布にしているものですから、お互いの収入がこんなにも違うことにすら始めて気づいた次第です。(まさに「おばかさん」ですね)確かにこのヒアリングシートを作るのには大変苦労しましたが、そのおかげで普段見てみぬふりをしているところにも気づけたように思います。 ※ライフプランニングの スタートラインに立ちました。必要書類は後日郵送させていただきます。 ※書類が届いた時点で、 行列に並びます。診断の結果を、長い行列のあと楽しみに待っていたいと思いますが、おそらく年内には間に合わないかなぁとも思い、 ※12月には何とかなるかも・・。今回ヒアリングシートを作成していてすぐにやるべきことを以下のように考え、実行しようと思っています。1 有利子奨学金の繰上げ返済 ※OK、即実行!2 国民年金学生納付特例で 未納になっている分で 時効になっていない分の追納 ※OK、即実行!3 医療保険の解約 (生命保険には未加入です... それを検討していて こちらの事務所に出会いました) ※OK、即実行! 夫婦ともに教員です。 (フルタイムの共稼ぎ) お金をたれ流すほどの 支出をしていない限り、 夫婦とも生命保険は不要です。 家族全員が生命保険不要。 生命保険料・・という支出は、 まったくしなくてよい。ヒアリングシートを作って満足していてはいけませんね。本番はこれからと思って、自分で考えて人生設計を進めていきたいと思います。お忙しいなかご面倒をおかけいたしますが、よろしくお願いいたします。 ※親への金銭的援助の前に、 まず家計をみてあげたら? おそらく生命保険で大量に お金をたれ流しています。 (50代・60代の 人には生命保険は不要) 生命保険をやめることで、 多額の解約返戻金がもらえます。 そのお金で 住宅ローンを繰上返済したい。 また・・ 毎月の保険料負担がないから、 お金が貯まりやすくなるので、 さらに何度も、繰上返済ができる。 そうすれば、住宅ローンは 利息が大幅節約できるし、 返済期間も70代ではなく、 もっと手前で終わらせることができる。 親の家計が正常化すれば、 親への多額の仕送りも 必要が無くなります。<家計改善したい? きちんと生活設計したい?なら・・(できるだけ)1 生命保険に加入しない!2 借金をしない!3 経費を払わない!これだけでいい。すごく かんたん。 見違える人生になる。 【 行列のできるFP事務所 】 資料作成の順番を待っている顧問会員の行列です。 お待たせしています。大変申しわけありません! ヒアリングから完成まで一家族当たり平均5日です。 「回答待ち」の人は、個別の事情で長引いています。 回答が戻った順番に、作業着手しています。1 I さん(40代):現状診断 回答待ち。(9/11着)2 Kさん(40代):現状診断 回答待ち。(10/5着)3 Sさん(30代):現状診断 回答待ち。(12/17ヒア)4 Fさん(30代):シミュレ 回答待ち。(1/29着)5 Aさん(30代):現診 回答待ち。(4/1着)6 Sさん(40代):現診 回答待ち。(6/22着)7 Nさん(30代):現診 回答待ち。(4/12着)8 Eさん(30代):現診 回答待ち。(6/19着)9 Mさん(40代):現診 回答待ち。(5/2着)10 Hさん(40代):現診 回答待ち。(5/2着)11 Nさん(30代):現診 作業途中。(5/3着)12 I さん(60代):現診 回答待ち。(5/3着)13 Hさん(30代):現状診断 5/9 シート到着。14 Oさん(40代):現状診断 5/10 シート到着。15 Sさん(40代):現状診断 5/16 シート到着。16 Kさん(30代):現状診断 5/18 シート到着。17 I さん(30代):シミュレーション 5/20 依頼着。18 Tさん(30代):現状診断 5/23 シート到着。19 Sさん(30代):現状診断 5/31 シート到着。20 Yさん(50代):シミュレーション 6/2 依頼着。21 Sさん(30代):シミュレーション 6/4 依頼着。22 Kさん(30代):現状診断 6/8 依頼着。23 Oさん(30代):現状診断 6/12 依頼着。24 Tさん(30代):現状診断 6/24 依頼着。25 Yさん(40代):現状診断 6/27 依頼着。26 Sさん(30代):現状診断 7/3 依頼着。27 Kさん(30代):現状診断 7/5 依頼着。28 I さん(30代):シミュレーション7/9依頼着。29 Mさん(40代):現状診断 7/18 依頼着。30 Kさん(20代):現状診断 7/18 依頼着。31 Eさん(30代):現状診断 7/26 依頼着。 32 Mさん(30代):現状診断 8/1 依頼着。33 Mさん(30代):現状診断 8/4 依頼着。34 Kさん(30代):現状診断 8/5 依頼着。35 Nさん(40代):シミュレーション 8/7依頼着。36 Hさん(30代):現状診断 8/15 依頼着。 ※ I さん(30代):8/24シート着 書類未着
2013/08/24

借金返済しながら資金積立てをするおバカさん・・も、よくいます。貯蓄と借金の密接な関係を理解していないから、銀行や保険屋にだまされます。自分の頭で考える・・生活設計。〇メール顧問会員のMさん(40代) (相談:ライフプランニング) 8/21水)午前10時、ご夫婦で来所、現状診断結果を説明しました。・・が、Mさん夫妻が帰ったあと、 「あ・・まだ説明しなきゃ ならないことがあった・・。」 ・・と気づきました。・借金と貯蓄の密接な関係。・市場金利と選ぶべき金融商品。などは、長い人生を生きていく上で、きちんと押さえておくべき、基本中の基本!・・です。しっかり基本を押さえておけば、保険屋や銀行にだまされることもありません。メールをいただきました。(有)エフピー・ステーション 武田様 佐々木様 こんにちは。佐々木FPのお子様にもお菓子を気に入っていただけたようで、良かったです。 説明を忘れたとブログで拝見した、・借金と貯蓄の密接な関係・市場金利と選ぶべき金曜商品の説明をぜひ聞きたいです!! 27日(火)、14:00~ひとりでお邪魔してもよろしいでしょうか?ご都合いかがですか?午前中に〇〇に仕事で行くので、午後に休みを取りお聞きできたらいいなと思います。 よろしくお願いいたします。OK・・しました。・借金と貯蓄の密接な関係。・市場金利と選ぶべき金融商品。たとえば・・「借金と貯蓄の密接な関係」これが理解できていないと、保険会社や銀行にだまされておかしな行動をして、大損をしていながら、そのことに気づかない人になります。このような人を私は、『おバカさん』と言っています。たとえば・・「借金返済しながら資金積立て」をする『おバカさん』・・とか、「目的別貯蓄を優先して借金」をする『おバカさん』・・とか。貯蓄と借金の間の密接な関係をしっかり理解したい。・・と言っても、理解しにくいでしょうから、(だからおバカさん ・・失礼!)当日、Mさんに説明した後、記事で詳しく解説・コメントします。お楽しみに・・。家計改善したい? きちんと生活設計したい?なら・・(できるだけ)1 生命保険に加入しない!2 借金をしない!3 経費を払わない!これだけでいい。すごく かんたん。 見違える人生になる。 今日の佐々木FP 佐々木FPは・・ チビちゃんの発表会関連で、 ・8/23(金)は、15時までで早退。 ・8/26(月)は、一日休みます。 記入方法等の質問で電話を いただく場合は、ご注意ください。〇メール顧問会員のNさん(30代) (相談:ライフプランニング)現状診断 資料作成作業。完成予定は、8/27(火)です。お楽しみに・・。【 行列のできるFP事務所 】 資料作成の順番を待っている顧問会員の行列です。 お待たせしています。大変申しわけありません! ヒアリングから完成まで一家族当たり平均5日です。 「回答待ち」の人は、個別の事情で長引いています。 回答が戻った順番に、作業着手しています。1 I さん(40代):現状診断 回答待ち。(9/11着)2 Kさん(40代):現状診断 回答待ち。(10/5着)3 Sさん(30代):現状診断 回答待ち。(12/17ヒア)4 Fさん(30代):シミュレ 回答待ち。(1/29着)5 Aさん(30代):現診 回答待ち。(4/1着)6 Sさん(40代):現診 回答待ち。(6/22着)7 Nさん(30代):現診 回答待ち。(4/12着)8 Eさん(30代):現診 回答待ち。(6/19着)9 Mさん(40代):現診 回答待ち。(5/2着)10 Hさん(40代):現診 回答待ち。(5/2着)11 Nさん(30代):現診 今日の作業。(5/3着)12 I さん(60代):現診 回答待ち。(5/3着)13 Hさん(30代):現状診断 5/9 シート到着。14 Oさん(40代):現状診断 5/10 シート到着。15 Sさん(40代):現状診断 5/16 シート到着。16 Kさん(30代):現状診断 5/18 シート到着。17 I さん(30代):シミュレーション 5/20 依頼着。18 Tさん(30代):現状診断 5/23 シート到着。19 Sさん(30代):現状診断 5/31 シート到着。20 Yさん(50代):シミュレーション 6/2 依頼着。21 Sさん(30代):シミュレーション 6/4 依頼着。22 Kさん(30代):現状診断 6/8 依頼着。23 Oさん(30代):現状診断 6/12 依頼着。24 Tさん(30代):現状診断 6/24 依頼着。25 Yさん(40代):現状診断 6/27 依頼着。26 Sさん(30代):現状診断 7/3 依頼着。27 Kさん(30代):現状診断 7/5 依頼着。28 I さん(30代):シミュレーション7/9依頼着。29 Mさん(40代):現状診断 7/18 依頼着。30 Kさん(20代):現状診断 7/18 依頼着。31 Eさん(30代):現状診断 7/26 依頼着。 32 Mさん(30代):現状診断 8/1 依頼着。33 Mさん(30代):現状診断 8/4 依頼着。34 Kさん(30代):現状診断 8/5 依頼着。35 Nさん(40代):シミュレーション 8/7依頼着。36 Hさん(30代):現状診断 8/15 依頼着。《 質問希望? 》 ブログ右「キーワード検索」をどうぞ。「キーワード検索」に言葉 ⇒ 「このブログ内」 ⇒ 「検索」。《 顧問会員希望? 》 「顧問会員って何?」で支援内容や当事務所との関係を確認の上、右記へfpst@axel.ocn.ne.jp 行列が長くなり過ぎているので、当分の間 メール顧問会員の受付けは停止します。 (一般の顧問会員は、常時受付けています)
2013/08/23
毎日悔しくて悔しくて・・おバカさんです。(失礼!)自分の頭で考える・・生活設計。「Yahoo!知恵袋」 ・・より ※は、私の声。《 質問 》マイホーム、後悔しています。聞いてください。現在私21歳、主人24歳、子供1歳です。 ※ずいぶん若い・・です。子供が出来たのでそれまで住んでいたマンションが狭くなり引っ越しを考えましたが、 諸経費や引っ越し代が勿体なく思い、家賃もローンも支払いに大差がないのでどうせならとマイホーム購入に踏み切りました。当時の私たちの頭の中は、若くで購入すれば早くに完済できるので老後が楽 ※そう・・とも限らない。・持ち家でのびのび子育てしたい ※それは確かにいいことです。・家賃は捨てるものだけどローンは違う ※そのへんは・・ 業者の営業トーク・・です。 ローンでもかなりの大金を 捨てることになります。・犬が2匹いたので賃貸だと厳しい ※一戸建てなら ワンちゃんものびのび・・。・そして何よりマイホームへの強い憧れがありました。 貯金800万を握り締めて ※若いのに・・よく貯めた。 素晴らしい!不動産屋を回り、自由設計の建売を契約しました。 ※自由設計の建売・・?担当の人と一生懸命間取りを練り、やっと引き渡しの日を迎えた時は本当に嬉しかったです。 ※それは嬉しかったでしょう。そしてそれから半年以上過ぎた今、かなり後悔してます... ※あれ・・あれ・・?まず外観が気に入りません。 ※ ・・。間取りに必死だったので外観の事はちっとも頭に無かったのです。 ※ ・・。近所に同じくらいの価格でとてもオシャレな建売が分譲されています。レンガ調のサイディングにツートーンの外観... ※ ・・オシャレ?それに比べうちは全面一色の吹き付け。 ※いいんじゃない?建物全体に凹凸が無く、ドーンとしたまるで昔の家です。 ※凹凸が無い、 素晴らしい!・・んじゃない?必死に考えたはずの間取りもいざ住んでみると不便極まりない。 ※それは・・絵が無いから なんとも言えない。場所ももっと都会寄りにすれば良かった。 ※都会よりにすれば当然 土地価格が高いので、 建物は金額的な制約を うけることになります。 かなり我慢することになる。 (当たり前)購入前に戻れるなら絶対こんな家買ってません。 ※そんな風に思ってはいけない。 一生・・住むことになるかも しれない家に失礼です。 自分たちが考えてつくった 家・・です。800万もあったんだからもう少し貯金を増やして色んな家を観察し、注文住宅にすれば良かった... ※注文住宅? 建てたのは自由設計の家?それなら間取りや外観だって不動産屋の人なんかじゃなくてちゃんとした設計士やコーディネーターに考えてもらえましたよね。 ※「ちゃんとした設計士」 に依頼すると、 建築費に10~15%上乗せで 払うことになります。 建築費が2,000万円なら 200~300万円も余分に。いまさら言っても仕方ないしすべて勉強不足だった自分が悪いのですが、毎日悔しくて悔しくて... ※「毎日悔しくて悔しくて」 という思いで暮らしていると、 精神衛生上・・良いことはない。 病気になります。主人は「注文住宅にしてたって同じ事 思ってたはず。 住んでみないと分からない。 孫が出来る頃に ちょうどリフォームの時期なんだし、 その時また家作りを楽しもう。 求める間取りは必ず変わってる」と言われました。 ※その通り、 ライフステージによって、 求める間取りは変わります。でもリフォームだってお金がかかるし、また借金するなんて早くに家を買った意味がないと思います。 ※早めに住宅取得すれば、 「かかる『住居費』が少なく、 後が楽になる。」 ということではありません。私は今、理想の家で子供を育てたかった。マイホーム購入された皆さん、実際住んで満足されてますか?私のような馬鹿はいますか... ※自分で自分をおバカさんに しています。 おバカさんじゃない・・よ。《 ベストアンサーに選ばれた回答 》それは、大変に残念なことですね。よく、「家は3回建てなければ 納得できるものとならない」なんていいますが、あれは、うそです。 ※その通り!3回どころか、何回建てても納得できるものにはなりません。 ※まったくその通り! 何度建てても、 「あーすれば良かった」 ・・が、必ずある。ですから、常にどこかに不満って残るものです。ですが、少し気休めを.... ※はいどうぞ。 自分で自分をおバカさんに している人には、 必要な話の展開・・です。「レンガ調のサイディングに ツートーンの外観... それに比べうちは全面一色の吹き付け。」これは、いい選択だったと思うよ。 ※同感。10年後、サイディングにたいしてメンテナンスが必要になってきたときに、 一番安い方法は、塗装してしまうこと。 塗装してしまうと、レンガ調もなにもあったものではない。まだ、この業界に入りたての頃、楽しくて、町にある建物を色々と見ていた。その中のある家は、形状としてはレンガ調のサイディングが張ってあるのだが、 目地も何も単色の家があった。 変わったサイディングがあるな~と思っていたら、当初の塗装面がイカレてきたので、 塗装したものだった。 ※・・のような家、あります。 当家も4年ほど前に自宅を新築したのだが、サイディングで単色だよ。サイディングのレンガ調って安っぽくないですか? 私はあまり好きではない。 ※ま・・好みの問題ですが、 私も好きではない。 「建物全体に凹凸が無く、 ドーンとしたまるで昔の家です」これも、ナイスな選択ですね。 ※まったく・・同感。 「昔の家」は、理由があって そのような形になっている。 私は、家相や風水は一切信じないのですが、それらから見ても凹凸のある家はよろしくない。 ※当然。 同じ床面積だとしたら、凹凸のある家は、それだけ外壁面積が多いので、メンテナンスなどにも金がかかるし、凸部の角などが一番傷みやすい。 ※当たり前。そういう部分が少ないということはロングライフにつながる。 ※そういうこと。「昔のような家」が実は、一番飽きのこない家なのですよ。 ※当然。 今の流行にのって、おしゃれな家を建ててみなさい....すぐに古臭くなるから.....現状で勝負してはだめ。 「当家は 10年後に焦点をあてて、建てたのよ」って思えば....少しは気が楽になりませんか? ※自分で自分をおバカさんに しているだけ・・です。 人生・・考え方次第、 本人の気の持ちよう・・です。 当家はそういう視点で設計しましたから、10年後に他の家とは色々な意味で差が出てくると思う。まずは、がんばって住宅ローンを返しましょう! ※住宅ローンで お金をたれ流さないよう・・。《 質問者からのお礼 》皆様励ましのお言葉ありがとうございます...外壁ですが、言われてみればサイディングの壁が安っぽく感じて来ました(-.-;) ※あはっ・・ 単純だ。 すなおでよろしい。初めて吹き付けの重厚さを感じました。 ※すなお、すなお。 おバカさんがどっかへ 飛んでいきましたあ!いずれ外壁リフォームの時までに貯金を頑張って、1階前面だけでも本物のタイル張りにする目標を立てました!この週末に部屋も模様替えしました。気分が楽になりました、ありがとうございます。 ※すなおなのは、いいことです。 おバカさん卒業! マイホームに関しての おバカさんは確かに卒業だけど、 生命保険や ローンや 貯蓄方法などで、 別のおバカさんをやっている ・・かどうかは知りませんが。
2013/08/23
![]()
メール添付で送りました。自分の頭で考える・・生活設計。〇顧問会員のAさん(20代) (相談:生活設計・マイホーム建築)親世代との2世帯住宅の取得、作業進行中・・です。昨日(8/21)の夕方~夜、当事務所で間取りプランの打ち合わせを行ないました。今日・・ほぼ一日がかりで新たなプラン作成を行ないました。平面プランがほぼ固まってきたので、今日から立面プランの作成に着手。とりあえずのモノができ上がったので、メール添付で送りました。次回打ち合わせは、8/24(土)です。決めるべきことは、エンドレスにあります。どんどん、どんどん、進めていく必要があります。《 平面プラン 》 完全分離の2世帯住宅《 立面プラン 》 西面・東面《 立面プラン 》 北面・南面Aさんのマイホーム:進行状況 0 ヒアリング 2/19 1 家計の現状診断・問題点把握 3/12 2 ライフプランニング(生活設計) 5/15 3 資金・ローンの目安を立てる 7/4 4 土地探し・土地売買契約8/14 決済8/? 5 展示場ほか見学 6 事前手続き・住宅プラン検討・作製 7 住宅会社・数社が提案競争 8 業者決定・請負契約 9 事前手続き・地鎮祭 10 着工 ・ 上棟 11 完成・入居 12 住宅ローン返済開始家計改善したい? きちんと生活設計したい?なら・・(できるだけ)1 生命保険に加入しない!2 借金をしない!3 経費を払わない!これだけでいい。すごく かんたん。 見違える人生になる。 佐々木FPは・・ チビちゃんの発表会関連で、・8/23(金)は、15時までで早退。・8/26(月)は、一日休みます。 記入方法等の質問で電話を いただく場合は、ご注意ください。 《 質問希望? 》 ブログ右「キーワード検索」をどうぞ。「キーワード検索」に言葉 ⇒ 「このブログ内」 ⇒ 「検索」。《 顧問会員希望? 》 「顧問会員って何?」で支援内容や当事務所との関係を確認の上、右記へfpst@axel.ocn.ne.jp行列が長くなり過ぎているので、当分の間メール顧問会員の受付けは停止します。 (一般の顧問会員は、常時受付けています)
2013/08/22
![]()
生活設計の基本中の基本。面談ではいつも、別資料を使って説明していました。自分の頭で考える・・生活設計。〇メール顧問会員のMさん(40代) (相談:ライフプランニング)昨日・・8/21水)午前10時、ご夫婦で来所。現状診断は7/23にすでに終わって、メール添付で送っていましたが、昨日あらためて・・直接面談して、現状診断資料の説明を行ないました。いただいたお土産、〇〇名物:チーズピッコロ!おいしくいただいています。 M家の概要 家族 : 40代の夫、30代の妻、 幼児が2人・・の4人家族。 職業 : 夫:会社員、 妻:会社員 住居 : 社宅(0.5万円/月) H27年から賃貸(5万円/月) 貯蓄 : 約1,100万円 借金 : 0万円 生命保険料 : 2.57万円/年 (収入保障保険:死亡保障2,940万円) 下は、生命保険加入状況と、死亡保障必要額・・です。上が夫、下が妻・・です。夫は現在も将来も、生命保険は不要!・・です。妻は三角形の保険だけに加入していて・・ほぼ正解!でしたが、サイズがちょっと大きかった・・です。保障額を減額すれば保障額はちょうどよくなり、保険料も安くなります。昨日はヒザを突き合わせての面談で・・・キャッシュフロー表の読み方・老齢年金の受給のカタチ・老齢年金の計算方法・死亡保障必要額の考え方・遺族年金の計算方法等々をしっかり説明しました。やはり・・「現状診断」資料をただ受け取った段階では分からなかったことが色々あったようで、昨日の説明でかなり理解が深まりました。メールをいただきました。 ※は、私の声。(有)エフピー・ステーション 武田様 佐々木様 昨日は面談、ありがとうございました。 ※お土産、おいしいものを ありがとうございました。 佐々木FPと半分こしましたが、 佐々木家ではチビ助も 気に入ったらしく、 今度お父さんに「買ってきて」 ・・と頼むようです。 佐々木家のダンナは、 単身赴任でMさんの近くの方で 働いています。 現状診断をいただいて、分かった気分になっていましたが、いざ「○○分かりますか?」と聞かれると、良く分かっていなかったことが分かりました。 ※ (^^ゞ特に年金のことは、直接説明いただけて本当に良かったです。 そして、夫は「任せるから、俺は説明を 聞きに行かなくてもいいよ...」という感じだったところを、無理やり(?)連れて行ったのですが、説明を聞けて良かったようです。 現状診断をしていただく前は、漠然と「子供が大学に入ったら、 家計は大丈夫だろうか?」「老後は大丈夫だろうか?」と不安でしたが、現状診断をしていただいたおかげでそのような不安はなくなりました。おかげさまで、保険も25万/年→2.5万/年と大幅に減らすこともできました。 ※たれ流すお金が 10分の1になりました。あと少し減らせそうなので、行動します。 どうもありがとうございました。 ※Mさん夫妻が帰ったあと、 「あ・・まだ説明しなきゃ ならないことがあった・・。」 ・・と気づきました。 ・借金と貯蓄の密接な関係。 ・市場金利と選ぶべき金融商品。 などは、 長い人生を生きていく上で、 きちんと押さえておくべき、 基本中の基本!・・です。 しっかり基本を押さえておけば、 保険屋や銀行にだまされる こともありません。家計改善したい? きちんと生活設計したい?なら・・(できるだけ)1 生命保険に加入しない!2 借金をしない!3 経費を払わない!これだけでいい。すごく かんたん。 見違える人生になる。 佐々木FPは・・チビちゃんの発表会関連で、・8/23(金)は、15時までで早退。・8/26(月)は、一日休みます。記入方法等の質問で電話をいただく場合は、ご注意ください。《 質問希望? 》 ブログ右「キーワード検索」をどうぞ。「キーワード検索」に言葉 ⇒ 「このブログ内」 ⇒ 「検索」。《 顧問会員希望? 》 「顧問会員って何?」で支援内容や当事務所との関係を確認の上、右記へfpst@axel.ocn.ne.jp行列が長くなり過ぎているので、当分の間メール顧問会員の受付けは停止します。 (一般の顧問会員は、常時受付けています)
2013/08/22
その行列・・ なかなか短くなりません。しばしば・・顧問会員を希望する問い合わせ電話をいただきますが、受付けるわけにはいきません。しばらくは受付けを停止します。自分の頭で考える・・生活設計。武田FPここ数日、顧問会員のAさん(20代)のマイホームプラン作成に没頭中・・です。(住宅取得の実行支援作業の一部)平面プランは、だいぶまとまってきていますが、まだまだ細部の詰めがあります。そして・・立面プランや作り付け収納の絵や、仕様表などなど、住宅会社へ見積もり依頼するための資料作成作業は、エンドレスにあります。複数の住宅会社にまったく同じ条件で見積もり依頼し、後日・・プレゼンをやってもらいます。建築費の適正価格を知り、その上で・・損のない御者選びを行なうことができます。複数業者でプレゼンコンペをすることが、数百万円の経費節減になります。(冗談ではなく、これが現実)家計改善したい? きちんと生活設計したい?なら・・(できるだけ)1 生命保険に加入しない!2 借金をしない!3 経費を払わない!これだけでいい。すごく かんたん。 見違える人生になる。 今日の佐々木FP 佐々木FPは・・ チビちゃんの発表会関連で、 ・8/23(金)は、15時までで早退。 ・8/26(月)は、一日休みます。 記入方法等の質問で電話を いただく場合は、ご注意ください。〇メール顧問会員の I さん(40代) (相談:ライフプランニング)現状診断 資料作成作業。整理整頓 終了!再ヒアリング・・として、メール添付で送りました。〇金融機関廻り事務所家賃や給与の振込み等。いつものように、武田FPへの給与振込みはありません。 (涙)ボランティアだから当たり前です。顧問会員からいただくビールや各地の名物などを飲み食いしながら、なんとか生きています。 (^^ゞ〇メール顧問会員のNさん(30代) (相談:ライフプランニング)現状診断 資料作成作業。再着手!・・しました。完成予定は、8/27(火)です。お楽しみに・・。【 行列のできるFP事務所 】 資料作成の順番を待っている顧問会員の行列です。 お待たせしています。大変申しわけありません! ヒアリングから完成まで一家族当たり平均5日です。 「回答待ち」の人は、個別の事情で長引いています。 回答が戻った順番に、作業着手しています。1 I さん(40代):現状診断 今日の作業。(9/11着)2 Kさん(40代):現状診断 回答待ち。(10/5着)3 Sさん(30代):現状診断 回答待ち。(12/17ヒア)4 Fさん(30代):シミュレ 回答待ち。(1/29着)5 Aさん(30代):現診 回答待ち。(4/1着)6 Sさん(40代):現診 回答待ち。(6/22着)7 Nさん(30代):現診 回答待ち。(4/12着)8 Eさん(30代):現診 回答待ち。(6/19着)9 Mさん(40代):現診 回答待ち。(5/2着)10 Hさん(40代):現診 回答待ち。(5/2着)11 Nさん(30代):現診 今日の作業。(5/3着)12 I さん(60代):現診 回答待ち。(5/3着)13 Hさん(30代):現状診断 5/9 シート到着。14 Oさん(40代):現状診断 5/10 シート到着。15 Sさん(40代):現状診断 5/16 シート到着。16 Kさん(30代):現状診断 5/18 シート到着。17 I さん(30代):シミュレーション 5/20 依頼着。18 Tさん(30代):現状診断 5/23 シート到着。19 Sさん(30代):現状診断 5/31 シート到着。20 Yさん(50代):シミュレーション 6/2 依頼着。21 Sさん(30代):シミュレーション 6/4 依頼着。22 Kさん(30代):現状診断 6/8 依頼着。23 Oさん(30代):現状診断 6/12 依頼着。24 Tさん(30代):現状診断 6/24 依頼着。25 Yさん(40代):現状診断 6/27 依頼着。26 Sさん(30代):現状診断 7/3 依頼着。27 Kさん(30代):現状診断 7/5 依頼着。28 I さん(30代):シミュレーション7/9依頼着。29 Mさん(40代):現状診断 7/18 依頼着。30 Kさん(20代):現状診断 7/18 依頼着。31 Eさん(30代):現状診断 7/26 依頼着。 32 Mさん(30代):現状診断 8/1 依頼着。33 Mさん(30代):現状診断 8/4 依頼着。34 Kさん(30代):現状診断 8/5 依頼着。35 Nさん(40代):シミュレーション 8/7依頼着。36 Hさん(30代):現状診断 8/15 依頼着。《 質問希望? 》 ブログ右「キーワード検索」をどうぞ。「キーワード検索」に言葉 ⇒ 「このブログ内」 ⇒ 「検索」。《 顧問会員希望? 》 「顧問会員って何?」で支援内容や当事務所との関係を確認の上、右記へfpst@axel.ocn.ne.jp 行列が長くなり過ぎているので、当分の間 メール顧問会員の受付けは停止します。 (一般の顧問会員は、常時受付けています)
2013/08/22
![]()
マイホーム新築中ですが、失敗ポイントがいくつかあって憂鬱です。自分の頭で考える・・生活設計。「Yahoo!不動産」「教えて! 住まいの先生」 ・・より ※は、私の声。《 質問 》マイホーム新築中ですが、失敗ポイントがいくつかあって憂鬱です。全体的に窓が小さかった。収納スペースが広過ぎた。外観が地味だった。あぁ。。。マイホームブルーに陥っている私を誰か慰めて下さい。。。 《 ベストアンサーに選ばれた回答 》こんにちは!〉マイホームブルーに陥っている私を〉誰か慰めて下さい。。。アッハッハ!失礼!笑えてしまいます~家の新築中にブルーになっているんですか?なんだか変なの他の方々が書かれていますので、一つ一つの失敗ポイントについては、何も問題視する必要すらないと思いますが、それよりもいざ手に入れようとしているものに対してなんでそんなにブルーになるのでしょうか?そこが理解できない例えば、結婚が決まってご主人になる予定の彼を見て、あそこが嫌だ、ここが嫌だと考えるうちにマリッジブルーになるという方がおられますが、それと何が違うのでしょう?それを言い出したら、解決するためには『傷が浅いうちに対処しましょう、 結婚はやめて破談としましょう』これしかないですよそのまま結婚したら、数か月で離婚ですわ・・・家だってそう、そもそも〇〇さん、家を建てるための勉強をしたんですか?このくらいの広さの部屋だったらこの大きさの窓だと十分か不十分か?はやりの小さい窓を並べて9連窓などにすると、デザインはいいけど採光や通風はどうなるのか?それよりもカーテンを付けようと思ったらどんなカーテンが付けられるか・・・勉強と言っても堅苦しいものではなく、雑誌を読んだり展示場を回ったり、建材メーカーのショールームを見に行ったり・・・これだけでも十分勉強可能だと思いますよそもそも家を建てる覚悟が足りなかったんじゃないかな?何となく家が欲しいと思って注文したけど、しっかり考えていなかった、そんなところのような気がしますよそんなことを後悔ばかりしても、これから完成する家がかわいそうです、だって施主から疎まれちゃうんですよ(笑)だったらもっと前向きに考えて、デメリット(と言っても〇〇さんの 思い込みが大きいと思うけど)よりもメリットを見出せるようにされたほうが、幸せになれるような気がするなぁ完成までに気持ちを前向きにできるといいと思いますよ、気楽にね! ※この回答者の方に同感・・です。 大部分の人にとっては、 一生に一度の大きな買い物です。 そして・・必ずと言ってもいいほど、 ああすればよかった、 こうすればよかった、 ・・が付きまといます。 買い物の前に十分な勉強を した方がいいに決まっています。 むしろ、「堅苦しい」までの勉強 を徹底的に行なった方が、 色々な意味で・・良い結果が 得られます。(当たり前) 何の知識もなく、ふらぁ~っと 展示場を見に行って、 営業マンと意気投合して すぐ建てるマイホーム取得ほど、 最悪のパターンはありません。 (色々な意味で) 人生最大の買い物で、 衝動買いはあり得ません。 ・・が、 大部分の人が衝動買いしている。 だから、今回のような質問が 出てきたりします。家計改善したい? きちんと生活設計したい?なら・・(できるだけ)1 生命保険に加入しない!2 借金をしない!3 経費を払わない!これだけでいい。すごく かんたん。 見違える人生になる。 今日の佐々木FP〇メール顧問会員の I さん(40代) (相談:ライフプランニング)現状診断 資料作成作業。本日より再着手!大変長らくお待たせしました。【 行列のできるFP事務所 】 資料作成の順番を待っている顧問会員の行列です。 お待たせしています。大変申しわけありません! ヒアリングから完成まで一家族当たり平均5日です。 「回答待ち」の人は、個別の事情で長引いています。 回答が戻った順番に、作業着手しています。1 I さん(40代):現状診断 今日の作業。(9/11着)2 Kさん(40代):現状診断 回答待ち。(10/5着)3 Sさん(30代):現状診断 回答待ち。(12/17ヒア)4 Fさん(30代):シミュレ 回答待ち。(1/29着)5 Aさん(30代):現診 回答待ち。(4/1着)6 Sさん(40代):現診 回答待ち。(6/22着)7 Nさん(30代):現診 回答待ち。(4/12着)8 Eさん(30代):現診 回答待ち。(6/19着)9 Mさん(40代):現診 回答待ち。(5/2着)10 Hさん(40代):現診 回答待ち。(5/2着)11 Nさん(30代):現診 8/20回答戻る。(5/3着)12 I さん(60代):現診 回答待ち。(5/3着)13 Hさん(30代):現状診断 5/9 シート到着。14 Oさん(40代):現状診断 5/10 シート到着。15 Sさん(40代):現状診断 5/16 シート到着。16 Kさん(30代):現状診断 5/18 シート到着。17 I さん(30代):シミュレーション 5/20 依頼着。18 Tさん(30代):現状診断 5/23 シート到着。19 Sさん(30代):現状診断 5/31 シート到着。20 Yさん(50代):シミュレーション 6/2 依頼着。21 Sさん(30代):シミュレーション 6/4 依頼着。22 Kさん(30代):現状診断 6/8 依頼着。23 Oさん(30代):現状診断 6/12 依頼着。24 Tさん(30代):現状診断 6/24 依頼着。25 Yさん(40代):現状診断 6/27 依頼着。26 Sさん(30代):現状診断 7/3 依頼着。27 Kさん(30代):現状診断 7/5 依頼着。28 I さん(30代):シミュレーション7/9依頼着。29 Mさん(40代):現状診断 7/18 依頼着。30 Kさん(20代):現状診断 7/18 依頼着。31 Eさん(30代):現状診断 7/26 依頼着。 32 Mさん(30代):現状診断 8/1 依頼着。33 Mさん(30代):現状診断 8/4 依頼着。34 Kさん(30代):現状診断 8/5 依頼着。35 Nさん(40代):シミュレーション 8/7依頼着。36 Hさん(30代):現状診断 8/15 依頼着。《 質問希望? 》 ブログ右「キーワード検索」をどうぞ。「キーワード検索」に言葉 ⇒ 「このブログ内」 ⇒ 「検索」。《 顧問会員希望? 》 「顧問会員って何?」で支援内容や当事務所との関係を確認の上、右記へfpst@axel.ocn.ne.jp 行列が長くなり過ぎているので、当分の間 メール顧問会員の受付けは停止します。 (一般の顧問会員は、常時受付けています)
2013/08/21
![]()
貯蓄があっても無くても医療保険には入らない方がいい。これが正解!・・です。(当たり前)保険の仕組みをちょっと考えれば分かることです。保険屋にだまされないよーに。自分の頭で考える・・生活設計。〇メール顧問会員のMさん(40代) (相談:ライフプランニング)今日・・8/21水)午前10時、ご夫婦で来所。今日は いい天気、ドライブ日和です。現状診断は7/23にすでに終わって、メール添付で送っていましたが、今日あらためて・・直接面談して、現状診断資料の説明を行ないました。お土産をいただきました。〇〇名物:チーズピッコロ!ごちそう様でした! M家の概要 家族 : 40代の夫、30代の妻、 幼児が2人・・の4人家族。 職業 : 夫:会社員、 妻:会社員 住居 : 社宅(0.5万円/月) H27年から賃貸(5万円/月) 貯蓄 : 約1,100万円 借金 : 0万円 生命保険料 : 2.57万円/年 (収入保障保険:死亡保障2,940万円) 下は、生命保険加入状況と、死亡保障必要額・・です。上が夫、下が妻・・です。夫は現在も将来も、生命保険は不要!・・です。妻は三角形の保険だけに加入していて・・ほぼ正解!でしたが、サイズがちょっと大きかった・・です。保障額を減額すれば保障額はちょうどよくなり、保険料も安くなります。今日はヒザを突き合わせての面談で・・・キャッシュフロー表の読み方・老齢年金の受給のカタチ・老齢年金の計算方法・死亡保障必要額の考え方・遺族年金の計算方法等々をしっかり説明しました。やはり・・「現状診断」資料をただ受け取った段階では分からなかったことが色々あったようで、今日の説明でかなり理解が深まりました。もう・・これで、保険屋や銀行にだまされることはないレベルに達した・・と思われます。平日なので、子供は保育園に預けて、今日は久しぶりにデート・・のようです。今日の奥さんの一言・・「貯蓄があれば 医療保険は要らないんですよね。」正解のような感じがしますが、実は不正解!・・です。正解は、「貯蓄があろうが無かろうが、 医療保険には入らない方がいい。」・・です。 (当たり前)「貯蓄が無い人ほど、保険に入りましょう。」などと言う保険屋にだまされないよーに。各種保険に加入を続けるほど、(保険屋への貢ぎを続けるほど)貯蓄は貯まりません。ずぅ~~っと、貧乏のまま・・です。貯蓄が少ない人は貯蓄が最優先!保険に入ってない不安より、貯蓄が少ないことに不安を感じる、まともな感性を持とう!家計改善したい? きちんと生活設計したい?なら・・(できるだけ)1 生命保険に加入しない!2 借金をしない!3 経費を払わない!これだけでいい。すごく かんたん。 見違える人生になる。 《 質問希望? 》 ブログ右「キーワード検索」をどうぞ。「キーワード検索」に言葉 ⇒ 「このブログ内」 ⇒ 「検索」。《 顧問会員希望? 》 「顧問会員って何?」で支援内容や当事務所との関係を確認の上、右記へfpst@axel.ocn.ne.jp行列が長くなり過ぎているので、当分の間メール顧問会員の受付けは停止します。 (一般の顧問会員は、常時受付けています)
2013/08/21
![]()
メール添付で送りました。自分の頭で考える・・生活設計。〇顧問会員のAさん(20代) (相談:生活設計・マイホーム建築)親世代との2世帯住宅の取得、作業進行中・・です。配置プラン。北側道路の敷地です。冬の積雪や凍結に充分に配慮したプラン計画を行ないたい。昨日(8/19)の夕方、当事務所で間取りプランの打ち合わせを行ないました。その後・・家族で話し合ってもらって、いくつかの希望・要望をメールでいただきました。それに基づいて、プラン作成を行ないました。メール添付で送りました。Aさんのマイホーム:進行状況 0 ヒアリング 2/19 1 家計の現状診断・問題点把握 3/12 2 ライフプランニング(生活設計) 5/15 3 資金・ローンの目安を立てる 7/4 4 土地探し・土地売買契約8/14 決済9/? 5 展示場ほか見学 6 事前手続き・住宅プラン検討・作製 7 住宅会社・数社が提案競争 8 業者決定・請負契約 9 事前手続き・地鎮祭 10 着工 ・ 上棟 11 完成・入居 12 住宅ローン返済開始家計改善したい? きちんと生活設計したい?なら・・(できるだけ)1 生命保険に加入しない!2 借金をしない!3 経費を払わない!これだけでいい。すごく かんたん。 見違える人生になる。 《 質問希望? 》 ブログ右「キーワード検索」をどうぞ。「キーワード検索」に言葉 ⇒ 「このブログ内」 ⇒ 「検索」。《 顧問会員希望? 》 「顧問会員って何?」で支援内容や当事務所との関係を確認の上、右記へfpst@axel.ocn.ne.jp行列が長くなり過ぎているので、当分の間メール顧問会員の受付けは停止します。 (一般の顧問会員は、常時受付けています)
2013/08/20
不要・・というよりも、加入するほどお金をたれ流します。(当たり前)自分の頭で考える・・生活設計。「オイオイ、医療保険なんか入るなよ。」このごろCMでよく見るブラックスワン。ブラックスワンは正しい。医療保険やガン保険には、加入しない方が、生活設計上圧倒的にお得・・です。(当たり前)「保険のしくみ」をちょっと考えてみれば分かることです。保険屋とか銀行とかにだまされないよーに。〇メール顧問会員のKさん(30代) (相談:ライフプランニング)ただ今、行列に並んで順番が来るのを待っています。(16番目)したがって・・Kさんには まだ何もやってあげてはいません。なのに、プレゼントが届きましたあ!たまりません!ごちそう様でしたあ!ボランティアの身としては、非常に助かります。〇顧問会員のAさん(20代) (相談:生活設計・マイホーム建築)親世代との2世帯住宅の取得、 作業進行中・・です。・・と、今日いきなり! 届きました!奥さんの実家が福島・のようです。佐々木FPの実家も、郡山・・です。ありがとうございましたあ!ごちそうさまでした。佐々木FPと山分け!・・しました。佐々木家のワンちゃん(フレンチ・ブルドッグ:女子)は、「モモ」です。モモにも食べさせるそうです・・もも。何でも大好きで食べるそうです。〇メール顧問会員のNさん(30代) (相談:ライフプランニング)再ヒアリングの回答が戻ってきました。メールをいただきました。 ※は、私の声。 武田様 佐々木様おはようございます。ヒアリングシートを再度記入致しましたのでご確認よろしくお願いします。ご報告がおそくなりましたが生命保険は共済を解約し収入保障保険に入りました。 ※『保険加入=お金を失うこと!』 ・・です。 生命保険で、 入っていいかもしれないのは、 この収入保障保険だけ・・です。つきましては保険証券の写しを送付致しますのでご査収くださいます様お願いいたします。 ※他の生命保険にはいっさい 入らないようにすれば、 キャッシュフローはまったく 見違えるものになります。 (当たり前) 家計改善したい? きちんと生活設計したい?なら・・(できるだけ)1 生命保険に加入しない!2 借金をしない!3 経費を払わない!これだけでいい。すごく かんたん。 見違える人生になる。 今日の佐々木FP〇メール顧問会員の I さん(60代) (相談:ライフプランニング)現状診断 資料作成作業。整理整頓作業、やっと、やっと終了!うわぁ~~・・と言いたくなる大変な内容・・でした。これまでの人生で、かなり、かなり、お金をたれ流してきているようです。生命保険に加入しちゃ・・いかん!借金をしちゃ・・いかん!経費を払っちゃ・・いかん!この機会に、しっかり目を覚まそう!!「再ヒアリング」としてメール添付で送りました。【 行列のできるFP事務所 】 資料作成の順番を待っている顧問会員の行列です。 お待たせしています。大変申しわけありません! ヒアリングから完成まで一家族当たり平均5日です。 「回答待ち」の人は、個別の事情で長引いています。 回答が戻った順番に、作業着手しています。1 I さん(50代):現状診断 回答戻る。(9/11着)2 Kさん(40代):現状診断 回答待ち。(10/5着)3 Sさん(30代):現状診断 回答待ち。(12/17ヒア)4 Fさん(30代):シミュレ 回答待ち。(1/29着)5 Aさん(30代):現診 回答待ち。(4/1着)6 Sさん(40代):現診 回答待ち。(6/22着)7 Nさん(30代):現診 回答待ち。(4/12着)8 Eさん(30代):現診 回答待ち。(6/19着)9 Mさん(40代):現診 回答待ち。(5/2着)10 Hさん(40代):現診 回答待ち。(5/2着)11 Nさん(30代):現診 8/20回答戻る。(5/3着)12 I さん(60代):現診 今日の作業。(5/3着)13 Hさん(30代):現状診断 5/9 シート到着。14 Oさん(40代):現状診断 5/10 シート到着。15 Sさん(40代):現状診断 5/16 シート到着。16 Kさん(30代):現状診断 5/18 シート到着。17 I さん(30代):シミュレーション 5/20 依頼着。18 Tさん(30代):現状診断 5/23 シート到着。19 Sさん(30代):現状診断 5/31 シート到着。20 Yさん(50代):シミュレーション 6/2 依頼着。21 Sさん(30代):シミュレーション 6/4 依頼着。22 Kさん(30代):現状診断 6/8 依頼着。23 Oさん(30代):現状診断 6/12 依頼着。24 Tさん(30代):現状診断 6/24 依頼着。25 Yさん(40代):現状診断 6/27 依頼着。26 Sさん(30代):現状診断 7/3 依頼着。27 Kさん(30代):現状診断 7/5 依頼着。28 I さん(30代):シミュレーション7/9依頼着。29 Mさん(40代):現状診断 7/18 依頼着。30 Kさん(20代):現状診断 7/18 依頼着。31 Eさん(30代):現状診断 7/26 依頼着。 32 Mさん(30代):現状診断 8/1 依頼着。33 Mさん(30代):現状診断 8/4 依頼着。34 Kさん(30代):現状診断 8/5 依頼着。35 Nさん(40代):シミュレーション 8/7依頼着。36 Hさん(30代):現状診断 8/15 依頼着。《 質問希望? 》 ブログ右「キーワード検索」をどうぞ。「キーワード検索」に言葉 ⇒ 「このブログ内」 ⇒ 「検索」。《 顧問会員希望? 》 「顧問会員って何?」で支援内容や当事務所との関係を確認の上、右記へfpst@axel.ocn.ne.jp行列が長くなり過ぎているので、当分の間メール顧問会員の受付けは停止します。(一般の顧問会員は、常時受付けています)
2013/08/20
![]()
贈与税がかかるかも?安易に持ち分を決めてはマズイかも・・。自分の頭で考える・・生活設計。〇顧問会員のAさん(20代) (相談:生活設計・マイホーム建築)親世代との2世帯住宅の取得、作業進行中・・です。市有地を購入することに決め、申込みをしていました。お盆中の8/14に、手付金を払って契約したようです。1,338万円の土地です。1か月後に残金を払って、自分たち(父と息子)のものになります。元々・・父と息子の共有名義にする予定・・でした。なんとなく、2分の1ずつにするつもりでいました。・・が、それで本当にだいじょうぶか?「贈与税がかかったりしないか?」・・という心配が出てきたようです。もちろん・・そうです。購入代金を払った人ではなく別人に所有権登記をすれば、その別人は贈与を受けた・・ということで、110万円を超える分が贈与税の対象になり、贈与税を払うことになります。で・・どうするか?お金を出した割合で按分して共有持ち分を設定すればOK・・です。実際にA家ではどうなるか?今回の契約手付金はお父さんが払いました。来月の決済時の残金も全額お父さんが払います。なんだ、んじゃあ・・お父さんだけの所有にしないと。(これを単有といいます)息子が何分の1でも持つことになると、その分が父から子への贈与!・・ということになる。だから父の単有(たんゆう)で登記!・・なんですが、ちょっと待った! ・・です。一旦、父のお金で代金をすべて払ってしまうけど、今回のマイホーム取得では、もちろん住宅ローンを利用します。建築費だけでなく、土地購入についても、住宅ローンを利用します。土地分融資は970万円です。親子リレーローンで借ります。・・ので、485万円が父、同じく485万円が子、・・です。土地代は1,338万円・・です。(土地代) (子の分) (親の分)1,338万円-485万円=853万円なので、親の分は・・853万円÷1,338万円×100=63.75%そして、子の分は・・485万円÷1,338万円×100=36.24%共有登記は、まあ・・ざっくりと、親の持ち分:3分の2子の持ち分:3分の1・・ということで、いいと思います。《 蛇足 》過去に、現実に見たことがあります。極端な、生真面目な、共有登記持ち分・・。今回のような例で言えば・・父の持ち分:1,338分の853子の持ち分:1,338分の485「絶対に贈与税なんか払わないぞ!」・・という強い意志が伝わってくる、笑っちゃう共有登記・・でした。Aさんのマイホーム:進行状況 0 ヒアリング 2/19 1 家計の現状診断・問題点把握 3/12 2 ライフプランニング(生活設計) 5/15 3 資金・ローンの目安を立てる 7/4 4 土地探し・土地売買契約8/14 決済9/? 5 展示場ほか見学 6 事前手続き・住宅プラン検討・作製 7 住宅会社・数社が提案競争 8 業者決定・請負契約 9 事前手続き・地鎮祭 10 着工 ・ 上棟 11 完成・入居 12 住宅ローン返済開始家計改善したい? きちんと生活設計したい?なら・・(できるだけ)1 生命保険に加入しない!2 借金をしない!3 経費を払わない!これだけでいい。すごく かんたん。 見違える人生になる。 《 質問希望? 》 ブログ右「キーワード検索」をどうぞ。「キーワード検索」に言葉 ⇒ 「このブログ内」 ⇒ 「検索」。《 顧問会員希望? 》 「顧問会員って何?」で支援内容や当事務所との関係を確認の上、右記へfpst@axel.ocn.ne.jp行列が長くなり過ぎているので、当分の間メール顧問会員の受付けは停止します。 (一般の顧問会員は、常時受付けています)
2013/08/20
![]()
親が段取りした保険加入で、毎年50万円をたれ流しています。その親に知恵をつけ、段取りしたのは、もちろん・・保険屋です。だまされてはいけない。保険加入=お金を失うこと!できるだけ加入しない方がお得です。(当たり前)自分の頭で考える・・生活設計。〇顧問会員のSさん(20代) (相談:生活設計・マイホーム建築)今日午後2時、夫のみで来所。「現状診断」結果の説明と、問題点把握作業を行ないました。実家の隣の土地(父所有)に、マイホーム建築を希望しています。 S家の概要 家族 : 20代の夫、20代の妻、 来月(9月)第1子誕生予定。 職業 : 夫:会社員、 妻:専業主婦 住居 : 賃貸(5.2万円/月) 貯蓄 : 95万円 借金 : 152万円(マイカー) 生命保険料 : 50.7万円/年S家のキャッシュフローグラフ。生命保険で毎年50万円もたれ流しながら・・以下のようなキャッシュフローになります。で・・、S家では生命保険は必要か?検証の結果、夫婦ともに現在も将来も死亡保障は不要です。いっさい生命保険は不要!・・ということです。下の絵は、加入中の生命保険と死亡保障必要額との比較・・です。加入中の生命保険はすべて無駄!・・です。 早めに解約・清算したい。ところが・・ ところが・・現在加入中の生命保険は、すべて親(母親)が手続きして、それを引き継いでいるものばかり・・ということが、今日分かりました。とっとと清算!!などと気持ちよいことができません。解約したくても、洗脳された親を通さなければなりません。あぁ~~ 最悪のパターンです。「そんな・・解約してしまって、 おまえ、だいじょうぶか? 特約は外しても 終身保険だけは残しておけ、 悪いこと・・言わないから。」だそうです。最悪のパターンです。その終身保険が不要!・・なんです。あぁ~~ 最悪のパターンです。終身保険だけじゃなく、すべての保険が不要!・・なんです。不要!・・と分かっていながらお金をたれ流していかなければならない、なんて不条理な世の中なんだ・・。あぁ~~。実は・・マイホームの頭金を、親から出してもらうことになっています。生命保険について・・あまり、強いことも言えません。自分できちんと貯蓄できていればこんなことにならなかった・・のに。ぶつぶつ・・ ぶつぶつ・・。現在できる対策として・・しょうがないから親に譲歩しながら、いくつかの保険を継続していき、親が弱ってきたアカツキには、スパッと解約!清算!こんな程度・・でしょう。マイホーム建築へ向かって、譲歩したり、工夫したりして、前へ進んで行かなければなりません。しかし・・保険屋は、「子どもが解約したがっている」なんて聞くと、親に色々と知恵をつけてくるでしょうね。解約なんてとんでもない・・から、彼らにすれば当然の行為ですが。親が洗脳されている・・って、本当に・・最悪のパターンです。Sさんの場合、現在の保険をそのまま継続すると、払込保険料総額は、2,740万円!です。立派な家が建つ金額です。こんなバカなことを続けているのは、日本人だけ ・・です。だからアメリカなどの保険屋が日本にいついています。居心地がいい・・んでしょうね。マイホーム取得や建築では、生活設計が欠かせません。いの一番にすることは・・当然、生命保険の清算!・・です。Sさんのマイホーム:進行状況 0 ヒアリング 7/31 1 家計の現状診断8/9 問題点把握 8/19 2 ライフプランニング(生活設計) 3 資金・ローンの目安を立てる 4 土地探し・土地売買契約 5 展示場ほか見学 6 事前手続き・住宅プラン検討・作製 7 住宅会社・数社が提案競争 8 業者決定・請負契約 9 事前手続き・地鎮祭 10 着工 ・ 上棟 11 完成・入居 12 住宅ローン返済開始 家計改善したい? きちんと生活設計したい?なら・・(できるだけ)1 生命保険に加入しない!2 借金をしない!3 経費を払わない!これだけでいい。すごく かんたん。 見違える人生になる。 今日の佐々木FP〇メール顧問会員の I さん(60代) (相談:ライフプランニング)現状診断 資料作成作業。整理整頓作業にかなり時間がかかっています。なんとか明日には、「再ヒアリング」として送ることができそう ・・です。【 行列のできるFP事務所 】 資料作成の順番を待っている顧問会員の行列です。 お待たせしています。大変申しわけありません! ヒアリングから完成まで一家族当たり平均5日です。 「回答待ち」の人は、個別の事情で長引いています。 回答が戻った順番に、作業着手しています。1 I さん(50代):現状診断 回答戻る。(9/11着)2 Kさん(40代):現状診断 回答待ち。(10/5着)3 Sさん(30代):現状診断 回答待ち。(12/17ヒア)4 Fさん(30代):シミュレ 回答待ち。(1/29着)5 Aさん(30代):現診 回答待ち。(4/1着)6 Sさん(40代):現診 回答待ち。(6/22着)7 Nさん(30代):現診 回答待ち。(4/12着)8 Eさん(30代):現診 回答待ち。(6/19着)9 Mさん(40代):現診 回答待ち。(5/2着)10 Hさん(40代):現診 回答待ち。(5/2着)11 Nさん(30代):現診 回答待ち。(5/3着)12 I さん(60代):現診 今日の作業。(5/3着)13 Hさん(30代):現状診断 5/9 シート到着。14 Oさん(40代):現状診断 5/10 シート到着。15 Sさん(40代):現状診断 5/16 シート到着。16 Kさん(30代):現状診断 5/18 シート到着。17 I さん(30代):シミュレーション 5/20 依頼着。18 Tさん(30代):現状診断 5/23 シート到着。19 Sさん(30代):現状診断 5/31 シート到着。20 Yさん(50代):シミュレーション 6/2 依頼着。21 Sさん(30代):シミュレーション 6/4 依頼着。22 Kさん(30代):現状診断 6/8 依頼着。23 Oさん(30代):現状診断 6/12 依頼着。24 Tさん(30代):現状診断 6/24 依頼着。25 Yさん(40代):現状診断 6/27 依頼着。26 Sさん(30代):現状診断 7/3 依頼着。27 Kさん(30代):現状診断 7/5 依頼着。28 I さん(30代):シミュレーション7/9依頼着。29 Mさん(40代):現状診断 7/18 依頼着。30 Kさん(20代):現状診断 7/18 依頼着。31 Eさん(30代):現状診断 7/26 依頼着。 32 Mさん(30代):現状診断 8/1 依頼着。33 Mさん(30代):現状診断 8/4 依頼着。34 Kさん(30代):現状診断 8/5 依頼着。35 Nさん(40代):シミュレーション 8/7依頼着。36 Hさん(30代):現状診断 8/15 依頼着。《 質問希望? 》 ブログ右「キーワード検索」をどうぞ。「キーワード検索」に言葉 ⇒ 「このブログ内」 ⇒ 「検索」。《 顧問会員希望? 》 「顧問会員って何?」で支援内容や当事務所との関係を確認の上、右記へfpst@axel.ocn.ne.jp行列が長くなり過ぎているので、当分の間メール顧問会員の受付けは停止していす。(一般の顧問会員は、常時受付けています)
2013/08/19
![]()
どちらのパターンがいいでしょうか?自分の頭で考える・・生活設計。 〇メール顧問会員のKさん(40代) (相談:ライフプランニング)7/29(月)に現状診断が終了しています。お盆休み・・はるばる盛岡まで、家族4人でドライブしてきました。8/12(月)AM10:00 ・・当事務所へ。以下はいただいたお土産。ごちそうさまでした! 現状診断結果と、生活設計の基本的な考え方などの、説明を行ないました。・目的別貯蓄はしない。総額の キャッシュフローで人生を捉える。・生命保険はお金を失うこと。 できるだけ加入しない。・住宅ローン返済しながら、 並行して長期貯蓄をしない。・確定拠出年金をするくらいなら、 満額分・・国民年金基金を。・市場金利の高低と、選ぶべき 金融商品の関係を理解する。等々・・たっぷり説明しました。生活設計の基本部分をしっかり理解してもらった・・ようです。やはり・・直接会って、ヒザを突き合わせての相談の効果は、非常に大きい ・・と感じました。他のメール顧問会員も、できれば盛岡まで面談に来てもらえば、その分・・大きな効果が得られると思います。ぜひ、おいでください。夫の生命保険必要額。6,300万円!73歳まで!金額は大きいけど、三角形の保険(収入保障保険)なら、保険料月額は1万円ちょっと・・です。6,300万円という大型の保障が、1万円ちょっとで済みます。メールをいただきました。 ※は、私の声。先日は面談してもらいありがとうございました生命保険のこと 確定拠出年金のこと 総額のキャッシュフローで人生を捉えることなど直接面と向かって説明していただき 非常に有意義な時間が過ごせました現在生命保険の清算を進めている所です同時に収入保障保険に加入しようと思いますが 月額年金25万 満期65才 払込年数24年 25×12×24=7200万円のものか月額年金22万 満期65才 払込年数24年 22×12×24=6336万円のものかどちらがよろしいでしょうかダメでしたらどのような設定のものがよいのかご教示お願いします ※必要な保障額が 約6,300万円なので、 後者でOKです。 よろしく、お願いします。家計改善したい? きちんと生活設計したい?なら・・(できるだけ)1 生命保険に加入しない!2 借金をしない!3 経費を払わない!これだけでいい。すごく かんたん。 見違える人生になる。 《 質問希望? 》 ブログ右「キーワード検索」をどうぞ。「キーワード検索」に言葉 ⇒ 「このブログ内」 ⇒ 「検索」。《 顧問会員希望? 》 「顧問会員って何?」で支援内容や当事務所との関係を確認の上、右記へfpst@axel.ocn.ne.jp〇メール顧問会員の新規受付けは停止しています。〇一般の顧問会員は、常時受付けています。
2013/08/19

夫の協力がなければ、無理です。 (当たり前)自分の頭で考える・・生活設計。〇メール顧問会員希望のYさん(ウン十代) (相談:ライフプランニング)8/8(木)に・・久しぶりに、メール顧問会員の新規受付けを行ないました。その際に申込みした方々は次々とメール顧問会員になりました。(年間顧問料:36,000円入金)・・が、Yさん一人だけがまったく動きがありませんでした。 メールをいただきました。 ※は、私の声。こんばんは。連絡が遅くなり申し訳ありません。一度は夫の合意を得られ武田様にメール顧問会員をお願いしたのですが、再度話し合いを進めたところ夫の協力が得られそうにありません。大変楽しみにしていたのに残念でしかたがありませんがキャンセルできますでしょうか?お忙しい中お手数おかけして大変申し訳ありません。 ※文面にもどこにも・・ 名前が見当たらないので、 ん?・・だれからのメール? 過去メールで確認できました。 ※ライフプランニングは 夫婦の共同作業です。 一方に・・そのつもりがない のであれば、 もちろん、無理です。 たとえば・・源泉徴収票、 給与明細書、賞与明細書、 市民税県民税特別徴収額通知書、 勤務先に企業年金制度があれば、 その繊細が分かる書類、 などは、夫の協力がないと 手に入りません。 だとすれば・・そもそも、 入り口の作業である・・ 家計の「現状診断」さえできません。 夫婦の協力は必要です。 (当たり前) なので、やむを得ないですね。 また、 契約・・とかではないので、 キャンセルということでも ありません。8/8(木)にいただいたメール・・。「メール顧問会員お願いします」Yと申します。〇〇県〇〇郡にすんでいます。将来に不安があります。よろしくお願いします。 ※この文面から・・ 「『顧問会員って何?』以下を しっかり読んでいないな・・。」 という印象でした・・。 他の申込者は、 家族構成や相談内容など、 詳しく書いてきています。 家計改善したい? きちんと生活設計したい?なら・・(できるだけ)1 生命保険に加入しない!2 借金をしない!3 経費を払わない!これだけでいい。すごく かんたん。 見違える人生になる。《 質問希望? 》 ブログ右「キーワード検索」をどうぞ。「キーワード検索」に言葉 ⇒ 「このブログ内」 ⇒ 「検索」。《 顧問会員希望? 》 「顧問会員って何?」で支援内容や当事務所との関係を確認の上、右記へfpst@axel.ocn.ne.jp〇メール顧問会員の新規受付けは停止中です。 〇一般の顧問会員は、常時受付けています。
2013/08/19
2つの家計なので、年間顧問料は36,000円×2=72,000円です。(当たり前)自分の頭で考える・・生活設計。〇メール顧問会員のNさん(30代) (相談:ライフプランニング)〇メール顧問会員のNさん(60代) (相談:ライフプランニング)本日(8/16)、新規に親世帯・子世帯の2家族が同時に、メール顧問会員になりました。 年間顧問料:36,000円×2=72,000円の振り込みがありました。 さっそく、「ヒアリングシート」と「覚書」をメール添付で送りました。がんばって、記入・返信してください。このお盆休み(8/13~18)を利用して・・普段できないことをしよう!・・と、強い決意を持って意気込んでいた武田FPでした。普段・・主張していることを整理整頓して、本のような構成にして、このブログでだれでも無料で見られるようにしよう!強いココロザシを持って、お盆休みに突入!・・しました。初日(8/13)は高校野球:花巻東の応援をして、勝って満足した後の・・墓参りと、親戚とのお酒のみで撃沈。(このへんは・・まあ、想定内)8/14は、約束していた顧問会員のAさんのマイホームプラン作成・送信と、サッカー・・日本vsウルグアイ戦、腰をすえてビールをおいしく飲みながら、で、一日終了・・。8/15・・は、何やっていたんだろう?あ・・高校野球だ。東北のチームを応援していて・・福島の聖光学院、宮城の仙台育英、どっちも惜しくも負けてしまいました。で・・なんとなく、ブログ記事を2本書いて、終わってしまいました。そして今日・・8/16(金)、高校野球、青森の聖愛高校がなんとか踏ん張って勝ちました。・・で、Nさん(30代)から顧問料入金のお知らせがあり記帳してきてヒアリングシートを送ったり、記事を書いたりしている内に外は暗くなってきました・・。で・・明日8/17(土)は?またまた花巻東が登場します。朝8時試合開始!・・です。しっかり応援しなきゃ。(「あまちゃん」の放送はどうなる?)しかし、日がたつのは早い。なんだか・・何にもできずに、お盆休みが終わってしまいそう・・です。また・・ 意思の弱い男で終わりそうです。ナサケナイ・・ (^^ゞ 家計改善したい? きちんと生活設計したい?なら・・(できるだけ)1 生命保険に加入しない!2 借金をしない!3 経費を払わない!これだけでいい。すごく かんたん。 見違える人生になる。お盆休みは、8/13(火)~18(日)です。《 質問希望? 》 ブログ右「キーワード検索」をどうぞ。「キーワード検索」に言葉 ⇒ 「このブログ内」 ⇒ 「検索」。《 顧問会員希望? 》 「顧問会員って何?」で支援内容や当事務所との関係を確認の上、右記へfpst@axel.ocn.ne.jp〇メール顧問会員の新規受付けは停止中です。 〇一般の顧問会員は、常時受付けています。
2013/08/16
![]()
作った間取りプランを、お盆中に送る約束・・でした。それを見て・・親世代、子世代、・・の2世代で、色々検討してもらいます。お盆明けにまた、打ち合わせます。どんどん、どんどん、打ち合わせを繰り返さないと、月日は・・あっという間に過ぎていきます。自分の頭で考える・・生活設計。 八重たん・・。〇顧問会員のAさん(20代) (相談:生活設計・マイホーム建築)親世代との2世帯住宅の取得、作業進行中・・です。市有地を購入することに決め、申込みをしていました。お盆中に契約する予定でしたが、今日あたり・・済んだ? ・・かな?並行して・・建物プランを色々検討してします。お盆前に打ち合わせた内容で、改めて間取りプランを作ってみました。 配置プラン。北側道路の敷地です。冬の積雪や凍結に充分に配慮したプラン計画を行ないたい。要望をいただいていた・・「上下の主寝室が重ならないように。」「リビングの向きは、景色の悪い南より、 見晴らしが素晴らしい西向きでOK。」等を優先したプラン(下)を、昨日(8/14)・・作成して、メール添付で送りました。どうせ今打ち合わせているのなら、消費増税前に間に合わせたい・・。来月(9月)末までの契約!・・で、増税前の建築ができます。お盆明けからまた、ひんぱんに打ち合わせを繰り返します。Aさんのマイホーム:進行状況 0 ヒアリング 2/19 1 家計の現状診断・問題点把握 3/12 2 ライフプランニング(生活設計) 5/15 3 資金・ローンの目安を立てる 7/4 4 土地探し・土地売買契約 8/? 5 展示場ほか見学 6 事前手続き・住宅プラン検討・作製 7 住宅会社・数社が提案競争 8 業者決定・請負契約 9 事前手続き・地鎮祭 10 着工 ・ 上棟 11 完成・入居 12 住宅ローン返済開始家計改善したい? きちんと生活設計したい?なら・・(できるだけ)1 生命保険に加入しない!2 借金をしない!3 経費を払わない!これだけでいい。すごく かんたん。 見違える人生になる。 お盆休みは、8/13(火)~18(日)です。《 質問希望? 》 ブログ右「キーワード検索」をどうぞ。「キーワード検索」に言葉 ⇒ 「このブログ内」 ⇒ 「検索」。《 顧問会員希望? 》 「顧問会員って何?」で支援内容や当事務所との関係を確認の上、右記へfpst@axel.ocn.ne.jp〇メール顧問会員の新規受付けは停止中です。 〇一般の顧問会員は、常時受付けています。
2013/08/15

「金融機関ごとに」ではなく、「金融商品ごとに」記入して下さい。家計の現状診断のためのヒアリングシート、貯蓄(金融資産)欄の記入のしかた。自分の頭で考える・・生活設計。 〇メール顧問会員のKさん(40代) (相談:ライフプランニング)8/8(木)に、新規にメール顧問会員になりました。 メールをいただきました。 ※は、私の声。 「ライフプランニング 基礎データの記入について」武田さまへ御世話になっております。表題の件でお聞きしたいことがあります。ライフプランニング 基礎データ1において「資産」の記入項目がありますが、その項に関して質問があります。 ※ヒアリングシートの 記入のしかたについての 質問です。 顧問会員の現状を診断 するために、ねほり・・はほり・・と、 ヒアリングを行なっています。 フォーマットでは種類に「貯蓄」の項が多くあり、金融機関も個別に記載するように見受けられます。 ※その通りです。これは例えば預金している銀行毎に前年期末残高を記入するということでしょうか? ※「銀行ごと」ではありません。 もっと細かく記入して もらっています。 「金融商品ごと」・・です。 当然・・同じ金融機関名が 数行に渡ることもあります。 「お金をどのように持っているか?」 ・・を、確認します。また当方は証券、商品(金地金等)、投資信託、為替等に金融資産がありますが、それも記入する必要がありますでしょうか? ※当然です。 家計資産のすべてを把握 しないと、ライフプランニングは 始まりません。もし記入する場合 は「その他」にすべて一つにまとめて記入するということでしょうか? ※「その他」にすべてを まとめてしまわないで下さい。 上記の通り、「金融商品ごと」に すべて記入してください。 ヒアリングシートの横の欄に 説明書きがあります。 「欄が足りない場合は、 別紙に記入願います。」 顧問会員によっては、 別紙にびっしり・・と、 金融商品一覧を作って送る ケースもあったりします。当方のマンションは携帯電話の電波の状態が悪く、通信が時々切断されてしますので、メールにて問い合わせさせていただきますことをご理解願い だく存じます。どうぞよろしくお願いいたします。顧問会員になると・・まず、以下のようなヒアリングシートを記入したり、提出書類を準備したり、けっこう大変な作業を行ないます。今回いただいた質問は、下の右側の「基礎データ1」の「資産」に関する記入のしかた・・です。 「覚書き」 基礎データ 1 家族・資産 基礎データ 2 収入・支出 明細 基礎データ 3 収支・希望 基礎データ 4 職歴 基礎データ 5 死亡保障 家計改善したい? きちんと生活設計したい?なら・・(できるだけ)1 生命保険に加入しない!2 借金をしない!3 経費を払わない!これだけでいい。すごく かんたん。 見違える人生になる。【 行列のできるFP事務所 】 資料作成の順番を待っている顧問会員の行列です。 お待たせしています。大変申しわけありません! ヒアリングから完成まで一家族当たり平均5日です。 「回答待ち」の人は、個別の事情で長引いています。 回答が戻った順番に、作業着手しています。1 I さん(50代):現状診断 回答戻る。(9/11着)2 Kさん(40代):現状診断 回答待ち。(10/5着)3 Sさん(30代):現状診断 回答待ち。(12/17ヒア)4 Fさん(30代):シミュレ 回答待ち。(1/29着)5 Aさん(30代):現診 回答待ち。(4/1着)6 Sさん(40代):現診 回答待ち。(6/22着)7 Nさん(30代):現診 回答待ち。(4/12着)8 Eさん(30代):現診 回答待ち。(6/19着)9 Mさん(40代):現診 回答待ち。(5/2着)10 Hさん(40代):現診 回答待ち。(5/2着)11 Nさん(30代):現診 回答待ち。(5/3着)12 I さん(60代):現診 作業途中。(5/3着)13 Hさん(30代):現状診断 5/9 シート到着。14 Oさん(40代):現状診断 5/10 シート到着。15 Sさん(40代):現状診断 5/16 シート到着。16 Kさん(30代):現状診断 5/18 シート到着。17 I さん(30代):シミュレーション 5/20 依頼着。18 Tさん(30代):現状診断 5/23 シート到着。19 Sさん(30代):現状診断 5/31 シート到着。20 Yさん(50代):シミュレーション 6/2 依頼着。21 Sさん(30代):シミュレーション 6/4 依頼着。22 Kさん(30代):現状診断 6/8 依頼着。23 Oさん(30代):現状診断 6/12 依頼着。24 Tさん(30代):現状診断 6/24 依頼着。25 Yさん(40代):現状診断 6/27 依頼着。26 Sさん(30代):現状診断 7/3 依頼着。27 Kさん(30代):現状診断 7/5 依頼着。28 I さん(30代):シミュレーション7/9依頼着。29 Mさん(40代):現状診断 7/18 依頼着。30 Kさん(20代):現状診断 7/18 依頼着。31 Eさん(30代):現状診断 7/26 依頼着。 32 Mさん(30代):現状診断 8/1 依頼着。33 Mさん(30代):現状診断 8/4 依頼着。34 Kさん(30代):現状診断 8/5 依頼着。35 Nさん(40代):シミュレーション 8/7依頼着。36 Hさん(30代):現状診断 8/15 依頼着。お盆休みは、8/13(火)~18(日)です。《 質問希望? 》 ブログ右「キーワード検索」をどうぞ。「キーワード検索」に言葉 ⇒ 「このブログ内」 ⇒ 「検索」。《 顧問会員希望? 》 「顧問会員って何?」で支援内容や当事務所との関係を確認の上、右記へfpst@axel.ocn.ne.jp〇メール顧問会員の新規受付けは停止中です。 〇一般の顧問会員は、常時受付けています。
2013/08/15
![]()
大型保障でも保険料はそれほどでもありません。自分の頭で考える・・生活設計。 〇メール顧問会員のKさん(40代) (相談:ライフプランニング)7/29(月)に現状診断が終了しています。お盆休み・・はるばる盛岡まで、家族4人でドライブしてきました。今日(8/12)AM10:00 ・・当事務所へ。現状診断結果と、生活設計の基本的な考え方などの、説明を行ないました。・目的別貯蓄はしない。総額の キャッシュフローで人生を捉える。・生命保険はお金を失うこと。 できるだけ加入しない。・住宅ローン返済しながら、 並行して長期貯蓄をしない。・確定拠出年金をするくらいなら、 満額分・・国民年金基金を。・市場金利の高低と、選ぶべき 金融商品の関係を理解する。等々・・たっぷり説明しました。生活設計の基本部分をしっかり理解してもらった・・ようです。やはり・・直接会って、ヒザを突き合わせての相談の効果は、非常に大きい ・・と感じました。他のメール顧問会員も、できれば盛岡まで面談に来てもらえば、その分・・大きな効果が得られると思います。ぜひ、おいでください。夫の生命保険必要額。6,300万円!73歳まで!金額は大きいけど、三角形の保険(収入保障保険)なら、保険料月額は1万円ちょっと・・です。6,300万円という大型の保障が、1万円ちょっとで済みます。これまでの保険では保障は小さく、余計な特約がてんこ盛りで、まったく役に立ちません。そんな役立たずな保険でも月3.2万円ほど払っていることを考えれば、安いもの・・です。(2万円が貯蓄に回る)説明している間・・お姉ちゃんは折り紙をやっていて、(途中から佐々木FPもいっしょに)だいじょうぶだったんですが、下のチビちゃんは最初からぐずっていました。面談している間・・なんとかもつかなあ・・と思っていましたが、ママの胸で一眠りしたら、ごきげんになりました。終わるころには・・上の子も下の子も武田のおじちゃんにちょっかいを出すようになりました。(顧問会員のいつものパターン)お土産を頂いてしまいました!ごちそうさまでした!ピーナッツサブレ : 佐々木FPへプレミアムモルツ : 武田FPへ もう・・たまりません!家計改善したい? きちんと生活設計したい?なら・・(できるだけ)1 生命保険に加入しない!2 借金をしない!3 経費を払わない!これだけでいい。すごく かんたん。 見違える人生になる。 お盆休みは、8/13(火)~18(日)です。《 質問希望? 》 ブログ右「キーワード検索」をどうぞ。「キーワード検索」に言葉 ⇒ 「このブログ内」 ⇒ 「検索」。《 顧問会員希望? 》 「顧問会員って何?」で支援内容や当事務所との関係を確認の上、右記へfpst@axel.ocn.ne.jp〇メール顧問会員の新規受付けは停止しています。〇一般の顧問会員は、常時受付けています。
2013/08/12
行列が・・かなり長くなってきています。自分の頭で考える・・生活設計。〇メール顧問会員のKさん(30代) (相談:ライフプランニング)行列に並んで待っています。 メールをいただきました。 ※は、私の声。エフピー・ステーション武田様 16番目のKです。 岩手も遂に梅雨明けして、ビールが美味い季節に突入ですか??と、思っていたのですが大雨のニュースを見て驚きましたが、無事でなによりです。こちらは、ほとんど雨が降りません!私は、毎日が外仕事で(連日35℃以上の酷暑)妻には飲みすぎっっ!と言われつつも毎晩ビール三昧です。 ※酷暑で外仕事なら、 ビールがなきゃ やってられない・・ですよね。 ビール好きなお気持ち察します! ってことで!現場診断前にビール送りますよっ! ※ えっ!?御社は、お盆休みに入っちゃうかも??ですが、1週間以内には届くはずです。 ※うわあ・・助かります。 まだ、何の役にもたっていないのに、 申しわけありません。 それでも、頂けるのなら 期待して待ちます。 (^^ゞ現状診断と来週のビアガーデンが待ち遠しい今日この頃です。(^^) ※お待たせして、申しわけありません。〇メール顧問会員のMさん(40代) (相談:ライフプランニング)行列に並んで待っています。 メールをいただきました。 ※は、私の声(有)エフピー·ステーション 武田様夜分にすいません...保険の契約書が家に届いたのでコピーしたものを本日郵送させて頂きました。来週中には到着すると思うのでよろしくお願いします。行列どんどん増えていますね!現在行列の30番目位なので診断結果がでるのはざっと五ヶ月後位になりますよね⁈ ※いくらなんでも、 そんなにはなりません。 作業中の方の月日、あるいは 「回答待ち」の方と、 着手前の方の間の月日を 目安にしてください。 今日現在であれば・・ I さん(60代)の作業をしています。 依頼着は5/3・・でした。 今日は8/12・・です。 3か月ちょっと、かかっています。その間にブログを拝見しながらもっと色々と勉強していこうと思います!診断よろしくお願いします。〇メール顧問会員のKさん(30代) (相談:ライフプランニング)行列に並んで待っています。 メールをいただきました。 ※は、私の声(有)エフピー・ステーション 武田様お世話になっております。メール顧問会員のKです。早速のコメントありがとうございました。共済について調べてみましたが、保障期間が15年というのは選択肢にありませんでした。とりあえず、ひまわり生命にお金をあげ続けてももったいないので、ひまわり生命は解約します。 ※はい、OKです。 不要な保険はとっとと解約!共済の方は、現状診断が完了してから見直したいと思います。掟破りの質問に答えていただき、ありがとうございました。〇メール顧問会員のHさん(30代) (相談:ライフプランニング)7/16、新規にメール顧問会員になりました。 メールをいただきました。 ※は、私の声。 武田様 こんにちは。お世話になっております。 やっとヒアリングシートの入力が終わりました。 子供が生後半年になり、最近ものすごく活発に動くようになりました!そのためなかなか思うように入力ができず・・・返信が遅くなってしまいました。 去年の秋、武田さんのホームページを見つけたときは、子供はまだお腹の中でした。なんだか、時間が経つのがとても早くてびっくりします。 ヒアリングシート、入力後もチェックしましたが、トンチンカンなことを書いていたらすみません。また訂正しますので、教えてくださいね。 ※はい、順番が来てから・・です。 書類の方は今日メール便にて送りました。そちらもチェックお願いします。 ※それが届いたら、 行列に並んでもらいます。 あと、保険なんですが・・・私のがん保険は解約しましたが、主人の医療保険などまだ解約していません。 ※はあ・・?本当に辞めて大丈夫なのか、現状診断後に決めようと主人に言われまして・・・。 ※医療保険は入らない方が お得です。(当たり前) 現状診断によって 結論が変わることはありません。なので、まだお馬鹿さんのままです。 ※はい、否定しません。 (^^ゞまだまだ先かとは思いますが、現状診断して頂けるのを、楽しみに待っています。 家計改善したい? きちんと生活設計したい?なら・・(できるだけ)1 生命保険に加入しない!2 借金をしない!3 経費を払わない!これだけでいい。すごく かんたん。 見違える人生になる。今日の佐々木FP〇メール顧問会員の I さん(60代) (相談:ライフプランニング)現状診断 資料作成作業。【 行列のできるFP事務所 】 資料作成の順番を待っている顧問会員の行列です。 お待たせしています。大変申しわけありません! ヒアリングから完成まで一家族当たり平均5日です。 「回答待ち」の人は、個別の事情で長引いています。 回答が戻った順番に、作業着手しています。1 I さん(50代):現状診断 回答戻る。(9/11着)2 Kさん(40代):現状診断 回答待ち。(10/5着)3 Sさん(30代):現状診断 回答待ち。(12/17ヒア)4 Fさん(30代):シミュレ 回答待ち。(1/29着)5 Aさん(30代):現診 回答待ち。(4/1着)6 Sさん(40代):現診 回答待ち。(6/22着)7 Nさん(30代):現診 回答待ち。(4/12着)8 Eさん(30代):現診 回答待ち。(6/19着)9 Mさん(40代):現診 回答待ち。(5/2着)10 Hさん(40代):現診 回答待ち。(5/2着)11 Nさん(30代):現診 回答待ち。(5/3着)12 I さん(60代):現診 今日の作業。(5/3着)13 Hさん(30代):現状診断 5/9 シート到着。14 Oさん(40代):現状診断 5/10 シート到着。15 Sさん(40代):現状診断 5/16 シート到着。16 Kさん(30代):現状診断 5/18 シート到着。17 I さん(30代):シミュレーション 5/20 依頼着。18 Tさん(30代):現状診断 5/23 シート到着。19 Sさん(30代):現状診断 5/31 シート到着。20 Yさん(50代):シミュレーション 6/2 依頼着。21 Sさん(30代):シミュレーション 6/4 依頼着。22 Kさん(30代):現状診断 6/8 依頼着。23 Oさん(30代):現状診断 6/12 依頼着。24 Tさん(30代):現状診断 6/24 依頼着。25 Yさん(40代):現状診断 6/27 依頼着。26 Sさん(30代):現状診断 7/3 依頼着。27 Kさん(30代):現状診断 7/5 依頼着。28 I さん(30代):シミュレーション7/9依頼着。29 Mさん(40代):現状診断 7/18 依頼着。30 Kさん(20代):現状診断 7/18 依頼着。31 Eさん(30代):現状診断 7/26 依頼着。 32 Mさん(30代):現状診断 8/1 依頼着。33 Mさん(30代):現状診断 8/4 依頼着。34 Kさん(30代):現状診断 8/5 依頼着。35 Nさん(40代):シミュレーション 8/7依頼着。 ※Hさん(30代):シート着。書類未着。お盆休みは、8/13(火)~18(日)です。《 質問希望? 》 ブログ右「キーワード検索」をどうぞ。「キーワード検索」に言葉 ⇒ 「このブログ内」 ⇒ 「検索」。《 顧問会員希望? 》 「顧問会員って何?」で支援内容や当事務所との関係を確認の上、右記へfpst@axel.ocn.ne.jp〇メール顧問会員の新規受付けは停止中です。 〇一般の顧問会員は、常時受付けています。
2013/08/12
両親としても今後の生活に関しては何らかの対策をすべきと理解しており自分の頭で考える・・生活設計。〇メール顧問会員希望のNさん(30代) (相談:ライフプランニング)親世代と自分たち世代、2つの世代のライフプランニングを希望している ・・ようです。 8/8にメールをいただいて・・ご両親の多額の生命保険料の支払いを心配している様子でした。・・が、「素人目からしても約6万は, かなり無駄な支出をしているとは 感じていますが, 両親は大分頭も固くなっており (特に母親),・・・」・・ということだったので、もし顧問会員になったとしても、ヒアリングシートの記入や必要書類(公的年金や生命保険の資料など)の提出が難しいのでは?・・と思い、顧問をお受けできないケースかも・・ということをお伝えしました。 実家の両親は月5.6万円の保険料を払ってます また、メールをいただきました。エフピー・ステーション 武田様ホームページ拝見いたしました.下記の懸念事項に関しては問題ないと考えています.両親としても今後の生活に関しては何らかの対策をすべきと理解しており,不要な電話回線の解約等できる範囲では手を付けてい ます.保険についても見直す必要があ る旨,以前当方より両親に伝えて いますが,自分たちでは調べているようです.ま たそちらでライフプラン設計をお願いしようとしていること,その際には現状把 握のために必要書類の提出や記入量がかなり多い旨 伝えており,問題 ないと言ってい ます(実際の記載量が 分からない状 況ではありますが).当方が慫慂しているのみで実際の当人達に全くやる気がないということではあり ません.当方,両親の世帯がライフプランを見直したいという意思を有しており,メー ル顧問会員になりたいと考えておりますところ(2世帯であれ ば36,000×2),ご多忙中につき 恐縮ですが,その可否 についてご返信いただければ幸甚です.また入金を以て可ということであれば,72,000円を入金したいと思います.よろしくお願いいたします. ※なるほど。 了解しました。 そうであれば、 お断りする理由はありません。 ただし、これは皆さんに いつも言っていることですが、 顧問料を振り込む前に、 あらためて、 『顧問会員って何?』以下を しっかり熟読してください。 特に・・ 当FP事務所の考え方、立ち場。 顧問会員と当事務所の関係。 会員になってやってもらえること。 などを、しっかり理解した上で 顧問会員になってください。 特に・・ご両親には、 顧問会員の意味をしっかり 理解して頂きたいと思います。 その上で・・どうぞ。 よろしく、お願いします。 家計改善したい? きちんと生活設計したい?なら・・(できるだけ)1 生命保険に加入しない!2 借金をしない!3 経費を払わない!これだけでいい。すごく かんたん。 見違える人生になる。お盆休みは、8/13(火)~18(日)です。《 質問希望? 》 ブログ右「キーワード検索」をどうぞ。「キーワード検索」に言葉 ⇒ 「このブログ内」 ⇒ 「検索」。《 顧問会員希望? 》 「顧問会員って何?」で支援内容や当事務所との関係を確認の上、右記へfpst@axel.ocn.ne.jp〇メール顧問会員の新規受付けは停止中です。 〇一般の顧問会員は、常時受付けています。
2013/08/11
![]()
生命保険に充当する予定の2,700万円を、マイホーム建築に充てれば、人生はうまくいく。(当たり前)自分の頭で考える・・生活設計。 〇顧問会員のSさん(20代) (相談:生活設計・マイホーム建築)実家の隣の土地(父所有)に、マイホーム建築を希望しています。 S家の概要 家族 : 20代の夫、20代の妻、 来月(9月)第1子誕生予定。 職業 : 夫:会社員、 妻:専業主婦 住居 : 賃貸(5.2万円/月) 貯蓄 : 95万円 借金 : 152万円(マイカー) 生命保険料 : 50.7万円/年建築時期の希望は? できるだけ早く。 ※・・と言っても、 年内の完成入居は無理です。 大震災地域特有の状況 かもしれませんが、 この時期に計画を始めれば、 年内の着工、来春完成入居、 ・・ということになるでしょう。自己資金は? 無い・・ですね。 貯蓄より借金の方が多い。 親から〇百万円援助されます。 ※なにぃ! 家が欲しいけど 自己資金は無い!? 「いつもの家賃で家が建つ♪」 ・・あたりにだまされるなよ。 顔洗って出直せ! ・・って言いたいところだが、 親が〇百万円出すなら ま・・いっか。 土地を買うわけじゃないし・・。 ・・が、車のローンはダメ! とっとと完済!・・する。 住宅ローン申し込み前に完済! ん・・? お金が無い? 親のスネをかじれ! かじるスネがある人は、 ありがたくどんどん かじれ!家計状況は・・? 生命保険で保険料は月42,220円、 年506,640円、 払込保険料総額は27,408,160円。 ※おバカさんです。(失礼!) 生命保険なんぞに、 一生かけて2,740万円!! も払ってどうするの? 立派な家が建つ・・金額だぞ。 毎年50万円も払っていれば、 貯蓄が増えないのは当たり前。 これに住宅ローン返済が 上乗せになったら、 家計はしっかりと、小気味よく、 破たん!!・・します。 おバカさんの一丁上がりぃっ! ここで切り替えて、 2,740万円は自分のために使う 決意をしましょう。 (保険屋にプレゼントしないで) 無理なくマイホーム建築が できます。 S家のキャッシュフローグラフ。生命保険で毎年50万円もたれ流しながら・・以下のようなキャッシュフローになります。で・・、S家では生命保険は必要か?検証の結果、夫婦ともに現在も将来も死亡保障は不要です。いっさい生命保険は不要!・・ということです。下の絵は、加入中の生命保険と死亡保障必要額との比較・・です。加入中の生命保険はすべて無駄!・・です。 早めに解約・清算したい。 Sさんのマイホーム:進行状況 2013年 0 ヒアリング 7/31 1 家計の現状診断8/9 ・問題点把握 2 ライフプランニング(生活設計) 3 資金・ローンの目安を立てる 4 土地探し・土地売買契約 5 展示場ほか見学 6 事前手続き・住宅プラン検討・作製 7 住宅会社・数社が提案競争 8 業者決定・請負契約 9 事前手続き・地鎮祭 10 着工 ・ 上棟 11 完成・入居 12 住宅ローン返済開始 家計改善したい? きちんと生活設計したい?なら・・(できるだけ)1 生命保険に加入しない!2 借金をしない!3 経費を払わない!これだけでいい。すごく かんたん。 見違える人生になる。お盆休みは、8/13(火)~18(日)です。《 質問希望? 》 ブログ右「キーワード検索」をどうぞ。「キーワード検索」に言葉 ⇒ 「このブログ内」 ⇒ 「検索」。《 顧問会員希望? 》 「顧問会員って何?」で支援内容や当事務所との関係を確認の上、右記へfpst@axel.ocn.ne.jp〇メール顧問会員の新規受付けは停止中です。 〇一般の顧問会員は、常時受付けています。
2013/08/10

おバカさん・・です。(失礼!)一般的に・・60代なら、生命保険はまったく不要です。年間顧問料36,000円は一家計分の料金です1世帯・1家計が、顧問会員の1単位です。自分の頭で考える・・生活設計。〇メール顧問会員希望のNさん(30代) (相談:ライフプランニング)親世代と自分たち世代、2つの世代のライフプランニングを希望している ・・ようです。 8/8に いただいたメール・・です。 ※は、私の声。(有)エフピー・ス テーション 武田様Nと申します.当方,〇〇県で妻(会社勤め)と二人暮らしをしている公務 員です.メール顧問会員の申し込みをしたく,メール差し上げた次第です.〇相談内容 相談したい事項は 1 〇〇で暮らす私の両親 (60ウン歳,60ウン歳の二人暮らし, 賃貸住まい,父親は年金をもらいながら 働いて年金以外に月ウン十万程度 の収入がある) のライフプラン, 2 当方のライフプラン の2点です.つまり,2家庭分の相談に乗っていただきたいと考えていますが, ※それは、できません。申し込み順の関係で厳しいようなら,1だけでもご相談できればと考えています. ※申込み順とかではなく、 元々・・できないことです。 1世帯・1家計が、 顧問会員の1単位です。 双方の生活設計が希望なら、 それぞれが顧問会員になる 必要があります。 一家計ごとに36,000円の 顧問料を払ってもらいます。1の具体的内容 : 両親が二人合わせて月々5.6万程度の保険を払っており, ※ま・・60代以上によくある とんでもない、おバカさん (失礼!)な行為・・です。今後働けなくなることも鑑み,保険を解約させたうえで,私が今後どれくらい経済的援助を行う必要があるのかを見極めたいと考えています. ※ご両親の勤務歴によっては、 高いレベルの公的年金が 受給できて、子の援助は不要 なケースが多い・・です。父親,母親ともに終身と定期をかけていますが, ※保険屋のしかけ通り・・、 すなおな60代・・です。 おバカさんです。(失礼!)このうち母親が父親が亡くなってからの生活を心配して,父親にかけた定期保険(明治安田)が月3.6万程度と大きい状況です. ※定期保険は大きな死亡保障を 確保するための掛捨て保険です。 ・・ということは、 毎月3.6万円を捨てている! 保険屋にプレゼントしている! ・・ということです。 太っ腹・・というか、 おバカさん・・というか。(失礼!)それ以外も2.0万あるので多いですが. ※そのお金で、もっと、もっと、 おいしいものでも食べたら? もっと楽しいことをしたら? 自分のお金は、 自分の生活を豊かにするために 使ったら・・? 保険屋ばかり豊かにしていないで。素人目からしても約6万は,かなり無駄な支出をしているとは感じていますが,両親は大分頭も固くなっており(特に母親),私がこうしろといったところでおそらく抵抗されるため, ※でしょうね。 オシメを交換してやったセガレが、 何・・なまいきなこと言ってんだ? おまえに何が分かる! ・・でしょうね。また私としても自信を持って保険を解約させる知識がなく,実家に帰って話をしてもいたずらに焦らせて母親にストレスを掛けることが多いので,この機会に相談に乗っていただきたいと考えています.現時点,両親の生活はわずかながら預貯金を崩す程度 と聞いていますが, ※お父さんが働いて ウン十万円も稼いでいて、 年金も減額されながらも 受け取っているのなら、 貯蓄を取り崩す必要は無い ものと思われます。父親がいつまでも長く働くことはできないと思うため,このままの保険支払い状況では破たんするだろうと考えています. ※保険屋の洗脳はすごいですね。 日本の高齢者を見ていると・・ ゾロゾロと集団で川に飛び込む ネズミの大軍を連想します。 目を覚ませ! おバカさんたち! (失礼!)2の具体的内容 : 現在2人とも働いており,子供もいないため,特段生活には困ってはいない状況です ※それはそう・・でしょう。(私自身働きだしたのが20ウン歳から と遅く,奨学金の返済があるため 預貯金は二人合わせて ウン百万程度しかありません). ※もっとあっても・・いい。また公務員で転勤生活も多いので住居を買う予定も今のところありません.しかしながら,近い将来,子供は1人か2人欲しいと考えており,その場合いくら程度の保険が最小限必要なのかを上記1の両親への経済的援助の観点からも把握したいと考えています. ※無年金の親・・とかなら、 援助が必要でしょうが・・、 一般的には不要なケースが多い。現時点,保険については,子供が一人いるという前提かつ年金が70歳支給で額も現在より低い状況を想定して,自分で見積もって5000万円の 収入保障保険に加入しました(明治安田のLAは解約). ※LA・・なんてものは、 まったく何の価値もない。 保険屋の集金マシンに過ぎない。妻は子供が生まれるまでということで医療保険に加入しました. ※ ・・。 保険はしょせん博打・・です。 胴元(保険屋)は必ず儲かる。 客(加入者)はみんな損をする。 だから博打(保険)は成立します。 だから博打(保険)は継続できます。それ以外には,私が入社時,日本生命の年金に加入してしまっており(途中で支払額を最低レベルに減らし),年50,000円程度支払ってます(現時点支払額が80万程度で 戻りは60万程度で 解約返戻率が100% になるのが40代後半) ※ ・・。あるほかに,奨学金の返済が100万程度残っています(年利0.5%程度). ※『預金金利<借金金利!』 借金以上の貯金があるようだけど、 その貯金金利は? 上記公式通りなら、 借金は清算してしまった方が、 生活設計上は非常に好ましい。 (当たり前)〇住所 〇〇県〇〇市(両親は〇〇市)〇氏名 N〇年齢 30ウン歳〇家族構成 妻(30ウン才) 別居の両親 (父親60ウン才,母親60ウン才)〇それぞれの職業 私:〇〇公務員 妻:保険営業 ※・・ん!? ホ、 ホケンエイギョウ!? ・・ん? どうなる・・? 別居の両親 (父:アルバイトのようなもの,母:無職)かなり突っ込みどころ満載な気がしますが,よろしくお願いいたします. ※以上・・です。 気が付いたところを ひと通り突っ込んでおきました。懸念されることがあります。仮に・・ご両親の分だけのライフプランニングをお願いします・・ということになっても、具体的なヒアリングが可能だろうか?・・と、懸念されます。ご本人たちがその気になっていない以上、必要な書類が提出されなかったり、ヒアリングシートの回答を部分的に拒絶されたり・・などということが起きたりしそうです。前に進めず立ち往生・・のようなことが懸念されます。いつもは・・自ら顧問会員を希望した人が、やる気満々で、ヒアリングの後・・現状診断を行なっています。自ら希望して顧問会員になるのでないとしたら、どうでしょうか?ひょっとしたら、顧問をお受けできないケースかもしれない・・とも思われます。 家計改善したい? きちんと生活設計したい?なら・・(できるだけ)1 生命保険に加入しない!2 借金をしない!3 経費を払わない!これだけでいい。すごく かんたん。 見違える人生になる。お盆休みは、8/13(火)~18(日)です。《 質問希望? 》 ブログ右「キーワード検索」をどうぞ。「キーワード検索」に言葉 ⇒ 「このブログ内」 ⇒ 「検索」。《 顧問会員希望? 》 「顧問会員って何?」で支援内容や当事務所との関係を確認の上、右記へfpst@axel.ocn.ne.jp〇メール顧問会員の新規受付けは停止中です。 〇一般の顧問会員は、常時受付けています。
2013/08/10
![]()
マンションライフを満喫したいなら、買わずに借りよう。その方が生活設計上は圧倒的にお得。(当たり前)自分の頭で考える・・生活設計。〇メール顧問会員のNさん(40代) (相談:ライフプランニング)住宅取得シミュレーションで、行列に並んで待っています。(35番目、先は長い・・)2/12(火)、現状診断終了。順調なキャッシュフロー・・です。生命保険は、夫婦ともに不要です。 N家の概要 家族 : 40代の夫、40代の妻、 子ども無し、・・の2人家族 職業 : 夫:会社員、 妻:専業主婦 住居 : 賃貸 貯蓄 : ?万円(ほとんど妻の分?) 生命保険料 : 0万円/年 (現状診断前にすべて解約) メールをいただきました。 ※は、私の声。武田様こんにちは、メール会員のNです。グラフの意味はそうだったんですね。理解できてすっきりしました。 ※住宅ローンの繰上返済の効果 ・・のグラフでした。 利息節約と返済期間の短縮と、 大きな効果が得られます。本当に繰り上げ返済の効果ってすごいんですね! ※はい、いつも言っているように、 住宅ローンの繰上返済は、 『最強の金融商品!』・・です。それと土地の件ですが、夫婦2人だし土地も家もそんなに大きくなくてもいいだろうと思っていました。価格が高いので、必要以上に広い土地自体無理だと思いますが。今まで一戸建てには住んだ事がなく、子供の頃はニュータウンと呼ばれた、当時住宅都市整備公団等が中心となって開発された市に住んでいたので、周りは団地だらけで団地住まいの友達ばかりでした。今は一斉入居した為か急速に高齢化しています。両親が住んでいる団地は賃貸ですが約30年経っているせいか空き家が多いです。 ※でしょうね・・。築30-40年の団地がたくさんあり、築年数の割には家賃が高いと思うし、分譲タイプの団地も混在しているので、武田さんがブログで指摘しているマンション問題が近い将来そこら中で出てくるのではと思います。 ※カタチあるものは必ず壊れる。 自宅以外の部分の保守管理の 割合が圧倒的に高いのが マンション・・です。 一戸建てなら、自宅のことだけ 心配していれば済みます。 道路や橋や上下水道などは 自治体に任せておけます。 「しっかり保守管理しろ!」 ・・なんて言えます。 ところがマンションでは・・ 自宅以外のことをいつも 心配しなければなりません。 道路や橋や上下水道などに当たる 共用部分を、入居者が 自分たちで(お金を出して) 保守管理しなければなりません。 所有した時点から・・常に、 「修繕費」は付いて回ります。 時間がたつほど、 (建物が古くなるほど) 出す金額が増えていきます。 (当たり前) 人生で、 余分な経費を払ってはいけない。 どんどん金食い虫になります。 人生のお荷物になります。 マンションを買ってはいけない。 マンションを所有してはいけない。 (当たり前) 話がそれましたが、そういう訳で何坪の土地、家と言われても最初は全くピンとこなかったのですがネットを見たり、武田さんの住宅支援で50代で家を建てた方の小さな家の話を読んで参考にしました。土地のサイズは、広すぎず狭すぎずが理想ですが、現実問題狭いはあっても広いはないだろうと思うのでいろいろ調べてみてだいたいこのくらい?と思うサイズを赤で記入し直しましたので、シートを再送信します。お忙しいところ申し訳ありませんが、どうぞよろしくお願いいたします。 ※順番が来るまで、 かなり待つことになりますが、 楽しみにお待ちください。 家計改善したい? きちんと生活設計したい?なら・・(できるだけ)1 生命保険に加入しない!2 借金をしない!3 経費を払わない!これだけでいい。すごく かんたん。 見違える人生になる。今日の佐々木FP〇メール顧問会員の I さん(60代) (相談:ライフプランニング)現状診断 資料作成作業。本日より着手!大変長らくお待たせしました。【 行列のできるFP事務所 】 資料作成の順番を待っている顧問会員の行列です。 お待たせしています。大変申しわけありません! ヒアリングから完成まで一家族当たり平均5日です。 「回答待ち」の人は、個別の事情で長引いています。 回答が戻った順番に、作業着手しています。1 I さん(50代):現状診断 回答待ち。(9/11着)2 Kさん(40代):現状診断 回答待ち。(10/5着)3 Sさん(30代):現状診断 回答待ち。(12/17ヒア)4 Fさん(30代):シミュレ 回答待ち。(1/29着)5 Aさん(30代):現診 回答待ち。(4/1着)6 Sさん(40代):現診 回答待ち。(6/22着)7 Nさん(30代):現診 回答待ち。(4/12着)8 Eさん(30代):現診 回答待ち。(6/19着)9 Mさん(40代):現診 回答待ち。(5/2着)10 Hさん(40代):現診 回答待ち。(5/2着)11 Nさん(30代):現診 回答待ち。(5/3着)12 I さん(60代):現診 今日の作業。(5/3着)13 Hさん(30代):現状診断 5/9 シート到着。14 Oさん(40代):現状診断 5/10 シート到着。15 Sさん(40代):現状診断 5/16 シート到着。16 Kさん(30代):現状診断 5/18 シート到着。17 I さん(30代):シミュレーション 5/20 依頼着。18 Tさん(30代):現状診断 5/23 シート到着。19 Sさん(30代):現状診断 5/31 シート到着。20 Yさん(50代):シミュレーション 6/2 依頼着。21 Sさん(30代):シミュレーション 6/4 依頼着。22 Kさん(30代):現状診断 6/8 依頼着。23 Oさん(30代):現状診断 6/12 依頼着。24 Tさん(30代):現状診断 6/24 依頼着。25 Yさん(40代):現状診断 6/27 依頼着。26 Sさん(30代):現状診断 7/3 依頼着。27 Kさん(30代):現状診断 7/5 依頼着。28 I さん(30代):シミュレーション7/9依頼着。29 Mさん(40代):現状診断 7/18 依頼着。30 Kさん(20代):現状診断 7/18 依頼着。31 Eさん(30代):現状診断 7/26 依頼着。 32 Mさん(30代):現状診断 8/1 依頼着。33 Mさん(30代):現状診断 8/4 依頼着。34 Kさん(30代):現状診断 8/5 依頼着。35 Nさん(40代):シミュレーション 8/7依頼着。 《 質問希望? 》 ブログ右「キーワード検索」をどうぞ。「キーワード検索」に言葉 ⇒ 「このブログ内」 ⇒ 「検索」。《 顧問会員希望? 》 「顧問会員って何?」で支援内容や当事務所との関係を確認の上、右記へfpst@axel.ocn.ne.jp〇メール顧問会員の新規受付けは停止中です。 〇一般の顧問会員は、常時受付けています。
2013/08/09
![]()
気象庁は、「直ちに命を守る行動を取ってほしい」と最大級の警戒を呼び掛けました。今日の岩手のFP事務所は・・。自分の頭で考える・・生活設計。〇メール顧問会員のOさん(30代) (相談:ライフプランニング)行列に並んで待っています。(23番目)ニュースを見て、心配してメールをいただいたようです。(有)エフピー・ステーション武田様 佐々木様お世話になっております。メール顧問会員の、〇〇県のO(の妻)です。そちらで大雨のニュースを見て、本日はHPの更新もまだのようなので心配でメールしてしまいました。 ※あ・・いそがしくて、 更新できなかっただけです。お二人とも何も問題なければいいのですが。 ※盛岡市内で、小中学校などへの 避難命令が出ている地域も 実際にありますが・・、 私たちにはまったく問題ありません。 ちゃんと現状診断を行ないます。 だいじょうぶですよ。 ご心配、ありがとうございます。当方も、昨日の緊急地震速報で改めて災害に対する緊張感を感じています。(昨日はたまたま昼寝中の 子供のそばにおり、 20分ほど身構えておりました。 あとで、サイレン音がした 携帯の速報を確認すると、 震央にはうちの市名が、 揺れの到達時刻は0秒後、 となっており これが本当 だったらとゾッとしました。) ※ん? 市がばれた?我が家の現状診断については、行列に並んでいる間にとりあえずの収入保障(ブログで勉強した2千万円15年)に加入して、養老保険等を清算したいのですが、なかなか各保険屋さんの収入保障を比べる時間が無く(保険について無知な為、 説明書きをじっくり読み進めないと わからない事が多くて...泣)思うように進んでおりません... ※そんなに慎重にならなくていい。 保険比較サイトなどを参考に、 適当に、気楽に、 ちゃっちゃと契約してしまおう。 養老保険に引きずられている よりは、はるかにマシ!近々夫が長期の海外出張に出るので、それに間に合わなければ保険の清算は現状診断を待ってからになりそうです。なんとか頑張ります。 ※がんばる必要はない。 気楽に適当に行こう!このメールの返信は別に構いませんので...HPででもお元気そうであることがわかれば嬉しいです。 ※ありがとう!・・ございました。 元気なので、ご心配なく。 今日は夕方に、 顧問会員のAさんが来所予定で、 それまでに新たなマイホームプランを 作らなきゃなりませんでした。 難しい要望をもらっていたので、 (本人たちはそう思っていない) 一応のプランに仕上げるのに かなり手こずり、 時間がかかってしまいました。 そのほかに・・ 午後一には所要で外出したり、 さらには・・ 新規メール顧問会員から 顧問料入金のメールが次々と 入るので、記帳をして確認し、 それぞれにヒアリングシートを 送ったり・・ している内に夕方になりました。 やっとプランが夕方に間に合いました。 ら・・、 顧問会員のAさんから電話が・・ 「今日の夕方・・予定していましたが、 仕事が入って行けなくなりました。 申しわけありません。」 ・・。 いそがしい一日・・でした。 (^^ゞ 〇顧問会員のAさん(20代) (相談:生活設計・マイホーム建築)親世代との2世帯住宅の取得、作業進行中・・です。市有地を購入することに決め、このたび・・申込みをしました。お盆中に契約予定です。(手付金5%を払って)並行して・・建物プランを色々検討してします。配置プラン。北側道路の敷地です。冬の積雪や凍結に充分に配慮したプラン計画を行ないたい。要望をいただいていた・・「両世帯ともに『対面キッチン』に。」を最優先したプラン(下)。 ・・昨日(8/8)時点。南に面したリビングからベランダに出たい。寝室は親世代と上下で重ならないようにしたい。等々の新たな要望を加味して、新たにプランを作ってみました。これがなかなか難しく・・(南北に長い建物で、 玄関が北でリビングが南 ・・という構成は、 面積ロスが発生しやすく、 非常に難しい ・・です)ついつい、一日かかってしまいました。Aさんのマイホーム:進行状況 0 ヒアリング 2/19 1 家計の現状診断・問題点把握 3/12 2 ライフプランニング(生活設計) 5/15 3 資金・ローンの目安を立てる 7/4 4 土地探し・土地売買契約 8/? 5 展示場ほか見学 6 事前手続き・住宅プラン検討・作製 7 住宅会社・数社が提案競争 8 業者決定・請負契約 9 事前手続き・地鎮祭 10 着工 ・ 上棟 11 完成・入居 12 住宅ローン返済開始家計改善したい? きちんと生活設計したい?なら・・(できるだけ)1 生命保険に加入しない!2 借金をしない!3 経費を払わない!これだけでいい。すごく かんたん。 見違える人生になる。 《 質問希望? 》 ブログ右「キーワード検索」をどうぞ。「キーワード検索」に言葉 ⇒ 「このブログ内」 ⇒ 「検索」。《 顧問会員希望? 》 「顧問会員って何?」で支援内容や当事務所との関係を確認の上、右記へfpst@axel.ocn.ne.jp〇メール顧問会員の新規受付けは停止中です。 〇一般の顧問会員は、常時受付けています。
2013/08/09
提示された保障額などに疑問を抱き、色々と調べているうちに・・自分の頭で考える・・生活設計。 〇メール顧問会員のKさん(40代) (相談:ライフプランニング)今日・・8/8(木)、新規にメール顧問会員になりました。ついさっき、年間顧問料:36,000円の入金を確認しました。今日(8/8)の午前0時に、「メール顧問会員希望」・・と、いただいたメール。 ※は、私の声。エフピーステーション武田様はじめまして。以前、保険会社勤務の友人に保険加入を勧められたのですが、提示された保障額などに疑問を抱き、色々と調べているうちに武田FPのブログに出会いました。それからブログを読み、日々勉強させて頂いております。この度、アドバイスを頂けたらと思いメール顧問会員を希望します。〇相談内容現在、賃貸マンションに居住していますが、将来戸建て住宅の購入を希望しています。現在子どもはいませんが数年内に1人はもうけたいと思っており、その場合にいくらくらいの購入金額になるか、購入のタイミング、老後資金、夫の死亡補償額も知りたいです。盛り沢山で申し訳ありません。 ※謝ることはありません。 できあがる現状診断資料は、 元々盛りだくさんで、 すごくすごく繊細なもの・・です。また、本日夫がタイミングよくメールを送る事ができない為、妻のメールアドレスから送信しています。お手数をおかけして申し訳ないのですが、メール顧問会員にして頂いた後は夫のメールアドレスでやり取りさせて頂くことは可能でしょうか?〇住所 略〇氏名 K〇年齢 40ウン歳〇家族構成 夫 40ウン歳 会社員 妻 30ウン歳 専業主婦以上です。暑い日が続きますが、お体どうぞご自愛下さい。 ※さっそく、 メール顧問会員になるための 案内を送りました。また、メールをいただきました。ご連絡を頂きありがとうございました。とても嬉しいです。先ほど入金致しましたのでご確認をお願いいたします。お手数をおかけしますが、ヒアリングシート等は下記の主人のメールアドレスに送って頂けますでしょうか。よろしくお願いいたします。(略)取り急ぎご報告まで。失礼いたします。 ※記帳してきました。 年間顧問料:36,000円の 入金を確認しました。 今日(8/8)・・申し込みを頂いた 方々の中で、一番早い!・・です。 さっそくお待ちかねの ヒアリングシートを、 メール添付で送りました。 さあ! これから生活設計! 本格的な作業を始めます。 ちょっぴり大変だけど、 がんばれ! がんばれ! 家計改善したい? きちんと生活設計したい?なら・・(できるだけ)1 生命保険に加入しない!2 借金をしない!3 経費を払わない!これだけでいい。すごく かんたん。 見違える人生になる。 《 質問希望? 》 ブログ右「キーワード検索」をどうぞ。「キーワード検索」に言葉 ⇒ 「このブログ内」 ⇒ 「検索」。《 顧問会員希望? 》 「顧問会員って何?」で支援内容や当事務所との関係を確認の上、右記へfpst@axel.ocn.ne.jp〇メール顧問会員の新規受付けは停止中です。〇一般の顧問会員は、常時受付けています。
2013/08/08

クロネコヤマトの不在配達連絡票自分の頭で考える・・生活設計。 〇メール顧問会員のSさん(40代) (相談:ライフプランニング)ただ今、きちんと行列に並んで、おとなしく順番を待っています。(15番目) ※今朝の事務所の郵便受けに、 クロネコヤマトの 不在配達連絡票が 入っていました。 現状診断の提出書類なら、 そのまま郵便受けに 入っているのが普通です。 不在配達連絡票だけが 入っている・・ということは? 何か大きなもの? たとえば・・ のような・・。 ん? どうかな? どうかな? ヨダレが出そう・・。 うきうきしながら・・ コロネコに電話しました。 「10時から18時の間に 配達をお願いします。」メールをいただきました。 ※は、私の声。武田様 佐々木様大変遅くなりましたが、昨日必要書類を発送いたしました。 ※そのようですね。 Sさんからの提出書類でした。 届いたモノのなんと薄っぺらなこと。 不覚・・でした。 てっきり・・ のようなもの・・と思っていました。 文面をしっかり見ることもなく・・ ぬか喜び・・してました。 何を勝手に勘違いしてるんだ。 ・・飢えた一匹オオカミFP。 まだ現状診断も終わっていない 人から、 お中元が届くわけがない。 ちょっと考えたら分かります。 おバカさん・・です。国民年金と国民年金基金にしか加入していないと思っていた主人でしたが、生命保険と個人年金にも加入していました。 ※それ、必要でしょうか?生命保険に関しては証券も見当たらず請求中なので送られて来ましたら後日郵送いたします。 ※なんか・・ わけのわからないモノに 大金をはらっていそう・・です。 私は、加入していた医療保険を解約しました。 ※それは素晴らしい!解約したことでヒアリングシートの保険の金額も変わりましたので再送します。どうぞよろしくお願いします。 ※了解しました。家計改善したい? きちんと生活設計したい?なら・・(できるだけ)1 生命保険に加入しない2 借金をしない!3 経費を払わない!これだけでいい。すごく かんたん。 見違える人生になる。 今日の佐々木FP〇メール顧問会員のNさん(30代) (相談:ライフプランニング)現状診断 資料作成作業。整理整頓が終了!「再ヒアリング」として、メール添付で送りました。【 行列のできるFP事務所 】 資料作成の順番を待っている顧問会員の行列です。 お待たせしています。大変申しわけありません! ヒアリングから完成まで一家族当たり平均5日です。 「回答待ち」の人は、個別の事情で長引いています。 回答が戻った順番に、作業着手しています。1 I さん(50代):現状診断 回答待ち。(9/11着)2 Kさん(40代):現状診断 回答待ち。(10/5着)3 Sさん(30代):現状診断 回答待ち。(12/17ヒア)4 Fさん(30代):シミュレ 回答待ち。(1/29着)5 Aさん(30代):現診 回答待ち。(4/1着)6 Sさん(40代):現診 回答待ち。(6/22着)7 Nさん(30代):現診 回答待ち。(4/12着)8 Eさん(30代):現診 回答待ち。(6/19着)9 Mさん(40代):現診 回答待ち。(5/2着)10 Hさん(40代):現診 回答待ち。(5/2着)11 Nさん(30代):現診 今日の作業。(5/3着)12 I さん(60代):現状診断 5/3 シート到着。13 Hさん(30代):現状診断 5/9 シート到着。14 Oさん(40代):現状診断 5/10 シート到着。15 Sさん(40代):現状診断 5/16 シート到着。16 Kさん(30代):現状診断 5/18 シート到着。17 I さん(30代):シミュレーション 5/20 依頼着。18 Tさん(30代):現状診断 5/23 シート到着。19 Sさん(30代):現状診断 5/31 シート到着。20 Yさん(50代):シミュレーション 6/2 依頼着。21 Sさん(30代):シミュレーション 6/4 依頼着。22 Kさん(30代):現状診断 6/8 依頼着。23 Oさん(30代):現状診断 6/12 依頼着。24 Tさん(30代):現状診断 6/24 依頼着。25 Yさん(40代):現状診断 6/27 依頼着。26 Sさん(30代):現状診断 7/3 依頼着。27 Kさん(30代):現状診断 7/5 依頼着。28 I さん(30代):シミュレーション7/9依頼着。29 Mさん(40代):現状診断 7/18 依頼着。30 Kさん(20代):現状診断 7/18 依頼着。31 Eさん(30代):現状診断 7/26 依頼着。 32 Mさん(30代):現状診断 8/1 依頼着。33 Mさん(30代):現状診断 8/4 依頼着。34 Kさん(30代):現状診断 8/5 依頼着。35 Nさん(40代):シミュレーション 8/7依頼着。《 質問希望? 》 ブログ右「キーワード検索」をどうぞ。「キーワード検索」に言葉 ⇒ 「このブログ内」 ⇒ 「検索」。《 顧問会員希望? 》 「顧問会員って何?」で支援内容や当事務所との関係を確認の上、右記へfpst@axel.ocn.ne.jp〇メール顧問会員の新規受付けは停止中です。〇一般の顧問会員は、常時受付けています。
2013/08/08

ネットで検索していくうちに御社のサイトに出会い、前回のメール会員の募集のタイミングを逃し、今回の機会を待ちに待っておりました。自分の頭で考える・・生活設計。 〇メール顧問会員希望のNさん(40代) (相談:ライフプランニング)新規にメール顧問会員になることを希望しています。メールをいただきました。 ※は、私の声。初めまして。こんばんは。Mと申します。 ※フライング!!・・です。 「8/8(木)に新規受付けをします。」 ・・と公表していたのに、 申込みメールが届いたのは、 『8/7 23:59!』 ・・でした。 まだ前日・・です。 8月7日です。 他の大部分の方々は、 『8/8 0:00!』 ・・でした。 緊張して・・あせって、 1分早く、送信!・・したようです。 なので、受付けいたしかねます。 ・・って、冗談です。 (^^ゞメール顧問会員の申し込みをぜひお願いしたいと思い、メールいたしました。生命保険の見直し、 ※生命保険はあやふやに 「見直し」してはいけない。 生命保険は清算!・・する。厚生年金の受給額、老後のシミュレーションなど、自分達が今、どのような状態になっていて、どんな保障や保険が良いのか、 ※そういう発想がよくない。 保険に入ることを前提に 物事を考えてはいけない。 『保険加入=お金を失うこと!』 できるだけ保険に加入しないで 済ますにはどうするか? を、真剣に考えたい。 家計に余裕が生まれます。 (当たり前)何からどう考えていけばいいのか、ネットで検索していくうちに御社のサイトに出会い、前回のメール会員の募集のタイミングを逃し、今回の機会を待ちに待っておりました。メール会員の募集のお知らせがあり、本当に嬉しく思います。相談内容・現状と、現時点で予想される 今後の人生設計を正しく把握したい。 本当に必要な人生設計をしたい。・主人が自営業で建設業を営んでおり、 昨年会社を法人化し、 会社で加入している生命保険 (主人のみ、大同生命)と、 個人(主人:プルデンシャル)とで、 生涯設計をどのように 設計したら良いのか分からない。 ※法人の役員としての保険を 大同生命で・・というのは有り かもしれないが、 個人の保障でプルデンシャル は、あり得ない! プルデンシャルには、 お金を失うことを覚悟の上で 買ってもいい! ・・という商品は無い!・とりあえず、私個人の保険 (第一生命)は先日、解約済。 ※はい・・正解! もちろんOK! 第一生命にも・・もちろん、 お金を失うことを覚悟の上で 買ってもいい! ・・という商品は無い!・子供3人は COOP共済月掛1,000円に加入。 3人ともプルデンシャルの 学資保険に加入。 ※おバカさん・・です。(失礼!) プルに加入・・も、おバカさん、 学資保険に加入・・も、おバカさん。・昨年の会社の法人化と共に 厚生年金に加入。 健康保険は、〇〇建設国保に加入。 ※健康保険はもちろんだけど、 「厚生年金」に加入しているか どうかは、非常に大きい。 国民年金のみの人に比べて、 「老齢年金」の額はもちろん、 『遺族年金』の額が 大幅に違ってくる。 生命保険の必要額が ぜんぜんちがってくる。 (かなり少なくなる) 場合によっては生命保険は 一生・・不要になったりする。 生命保険料を払わなくていい んだから、 こんな有り難いことはない。・一戸建て持家(築5年)です。 頭金ほぼなしで購入 (人生で最も リスクの高いことをしました)(-_-)!! ※自己資金なしで家持つ おバカさん。 (失礼!) 昨年末、日本モーゲージ 35年2.75%から 住信SBI 10年固定1.25%に 借換しました。 ※全額借金の住宅ローンを 返済しながら、学資保険やら プルの生命保険料を 払い続けるのは、おバカさん。 『貯蓄利息<借金利息!』 教育資金を貯める 最もお得な金融商品は、 学資保険ではない! 保険屋や銀行にだまされるな おバカさん。 (失礼!) 最強の教育資金準備商品は、 『住宅ローンの繰上返済』だ! 保険屋とか銀行は、 生活設計をしたことがないから、 こんなことも分からない。 きちんと生活設計してみれば、 簡単に理解できることです。住所 〇〇県〇〇市氏名 M(略)30ウン歳家族構成 M(夫 40ウン歳) 代表取締役 〇子(妻 30ウン歳) 取締役 子(長◯ ウン歳) 小学生 子(長◯ ウン歳) 小学生 子(次◯ ウン歳) 年中自分で考える力が及ばず、頼らせてもらえたらと思い申し込んでおります。おバカさんです。 ※ ・・否定しません。(失礼!)メール会員顧問を引き受けてもらえることを心から祈っております。どうぞよろしくお願いいたします。 ※ちょっとフライングがあったけど、 メール顧問会員になるための 案内を送りました。 家計改善したい? きちんと生活設計したい?なら・・(できるだけ)1 生命保険に加入しない!2 借金をしない!3 経費を払わない!これだけでいい。すごく かんたん。 見違える人生になる。 《 質問希望? 》 ブログ右「キーワード検索」をどうぞ。「キーワード検索」に言葉 ⇒ 「このブログ内」 ⇒ 「検索」。《 顧問会員希望? 》 「顧問会員って何?」で支援内容や当事務所との関係を確認の上、右記へfpst@axel.ocn.ne.jp〇メール顧問会員の新規受付けは停止中です。〇一般の顧問会員は、常時受付けています。
2013/08/08
![]()
南側リビングからベランダへ出入りできるようにしたい。自分の頭で考える・・生活設計。〇顧問会員のAさん(20代) (相談:生活設計・マイホーム建築)親世代との2世帯住宅の取得、作業進行中・・です。市有地を購入することに決め、このたび・・申込みをしました。お盆中に契約予定です。(手付金5%を払って)並行して・・建物プランを色々検討してします。具体的にイメージできるよう、私の方で勝手に建物プランを作ってみました。 配置プラン。北側道路の敷地です。冬の積雪や凍結に充分に配慮したプラン計画を行ないたい。要望をいただいていた・・「両世帯ともに『対面キッチン』に。」を最優先したプラン(下)を、メール添付で送りました。メールをいただきました。 ※は、私の声。エフピー・ステーション武田様 いつも大変お世話になっております。顧問会員のAです。 両世帯に配置等の希望を確認しましたので、添付したファイルのように間取りの作成をお願いいたします。 ☆間取りについて《2F》・リビングとベランダを南側に配置し、 リビングからベランダへ 出入りできるようにしたい。 ※ベランダ・・は、OKですが。 玄関が北側にあって、 リビングがまったく反対の 南側にあると、 無駄な長い廊下をとるか、 キッチンやダイニングを 通ってリビングに行くことに なります。 それが好ましくないとすれば、 全体構成を変えて、 玄関をまったく別の位置に して、考えることになります。 ※その際はもちろん、 1階の間取り構成も変わります。 《1F》・2Fのベランダの下(南側)に 物干し場(屋根があるような感じ)を 配置して欲しい。 ※隣地との関係も考慮したい。 右(東)隣の土地は一段高く、 左(西)隣の土地は一段低いです。 この位置では・・ ベランダや干し物が、 けっこう高い隣地から 直接見下ろされますが、 だいじょうぶ・・ですか? 逆に隣地を見下ろす位置になる 反対側の方がいいのでは? ※また、一般的には・・。 物干し場への出入りは、 一般的には個別の部屋ではなく リビング(居間)などから 行われますが、どうでしょうか?・祖母の部屋を北側 (2F主寝室の下あたり)に配置したい。 ※いい・・ですか? このポジションは、夜など・・ 「あ・・〇〇が帰ってきた。」 のようなことが確認できる 位置ですが・・。 ☆その他要望・2F寝室に窓を配置したい (北側と西側) ※作成したプランでは、 その通りになっています。 北と西に窓があります。 各個室を建物の角部分に配置 しているのは、必ず2方向に 窓を設けて、風の流れを確保 するため・・です。・2F寝室に化粧等ができるスペース (壁際に物を置ける棚のような感じ) が欲しい ※その設定になっています。 北側にある奥行きの浅い 「収納」と書かれた部分が、 そのような活用ができます。 腰高のカウンターとか、 天井までの収納とか、 自分で好きなように デザインしましょう。・2Fリビングにパソコン等を置く ちょっとした棚&椅子 (読書スペース?)が欲しい ※それも設定しています。 やはり奥行きの浅い 「収納」と書かれた部分です。 部分ごとに・・ カウンターだけで机として、 下部を収納に、 やはり自分たちでデザインした 作り付け収納に。 ・屋根裏部屋が欲しい (階段ではなくはしごでよい) ※本当にハシゴでいい?・1Fの祖母の部屋の近くに トイレを配置したい ※1階にトイレ2ヶ所という ことではないですよね。 1階のトイレの位置が おばあちゃんのソバがいい ・・ということですよね。・1Fのリビングに収納を増やしたい ※一応、絵では「収納」を設定 していますが、そうではなく もっともっとボリュームが欲しい ということですか? 具体的に納めたいものや 具体的な収納サイズを 知らせてほしい・・です。 お手数をおかけしますが、よろしくお願いいたします。 ※Aさんへ この記事に関する感想を 至急お願いします。 そのあとに・・また、 プラン作成を行ないます。Aさんのマイホーム:進行状況 0 ヒアリング 2/19 1 家計の現状診断・問題点把握 3/12 2 ライフプランニング(生活設計) 5/15 3 資金・ローンの目安を立てる 7/4 4 土地探し・土地売買契約 8/? 5 展示場ほか見学 6 事前手続き・住宅プラン検討・作製 7 住宅会社・数社が提案競争 8 業者決定・請負契約 9 事前手続き・地鎮祭 10 着工 ・ 上棟 11 完成・入居 12 住宅ローン返済開始家計改善したい? きちんと生活設計したい?なら・・(できるだけ)1 生命保険に加入しない!2 借金をしない!3 経費を払わない!これだけでいい。すごく かんたん。 見違える人生になる。 《 質問希望? 》 ブログ右「キーワード検索」をどうぞ。「キーワード検索」に言葉 ⇒ 「このブログ内」 ⇒ 「検索」。《 顧問会員希望? 》 「顧問会員って何?」で支援内容や当事務所との関係を確認の上、右記へfpst@axel.ocn.ne.jp〇メール顧問会員の新規受付けは停止中です。 〇一般の顧問会員は、常時受付けています。
2013/08/08
![]()
横の棒グラフ「25,22,20...」は何を表しているのでしょうか?自分の頭で考える・・生活設計。 〇メール顧問会員のNさん(40代) (相談:ライフプランニング)現状診断は2/12に終わっています。6/25(火)13:30、 遠路はるばる・・面談のためにご夫婦で来所。 N家の概要 家族 : 40代の夫、40代の妻、 子ども無し、・・の2人家族 職業 : 夫:会社員、 妻:専業主婦 住居 : 賃貸 貯蓄 : ?万円(ほとんど妻の分?) 生命保険料 : 0万円/年 (現状診断前にすべて解約)メールをいただきました。 ※は、私の声。武田様おはようございます、メール会員のNです。マイホームのヒアリングシートを添付します。土地が何坪であるべきかよくわからなくて、何も記入しなかったのですが何かしら記入しないとだめですか? ※建物は土地の上に建ちます。 (当たり前) どれぐらいのサイズの家を どれぐらいのサイズの土地に 建てようと考えているのか、 確認したかった・・。 考えていることに、 無理や矛盾があったりします。 その場合はもちろん指摘します。 とにかく・・マイホームについて、 どのように考えているのか? できるだけ具体的に知りたい ・・ということです。それと2013/6/27のブログにもあるのですが、訪問したときにコピーしていただいた「貯蓄とローンの考え方 借金利息>貯蓄利息!」 の図の節約利息額の棒グラフの横の棒グラフ「25,22,20...」は何を表しているのでしょうか? ※なるほど・・ 説明がありませんでした。つまらない質問をしてすみません。 ※つまらなくありません。 生活設計上、 知っておいた方がいいこと・・です。以上お忙しいと思いますが、よろしくお願いいたします。以下が、その棒グラフ・・です。2,000万円、金利2.4%、返済期間30年の住宅ローンで・・(利息総額:800万円)『繰上返済100万円の効果』を、表わしています。 棒グラフは2本ずつ・・です。・左側の長くて黒い方が、「節約利息額」です。・右側の短いグレーが、「短縮期間(月数)」です。『利息節約効果』 100万円を繰上返済すると、 「節約できる利息額」は どのようなレベルか? 返済1年目なら95万円、 返済5年目なら78万円、 返済10年目なら58万円、 ・・のように、 100万円の元本で78万円ゲット! というレベルです。(すごい!) 保険屋や銀行の言いなりで・・ 学資保険や個人年金や終身保険を のん気に継続している人は、 おバカさんです。 (失礼!) 最強の資産運用、最強の貯蓄方法は、 『住宅ローンの繰上返済!』 ・・です。 (当たり前) 繰上返済で教育資金準備が、 繰上返済で老後資金準備が、 最も効率よく実行できます。 目を覚ませ!おバカさん!(失礼!)『返済期間短縮効果』 100万円の繰上返済で・・ 返済1年目なら25ヶ月、 返済5年目なら22ヶ月、 返済10年目なら20ヶ月、 『返済期間が短縮される』 ・・ということです。 100万円で返済期間が約2年も 縮まります。 300万円なら約6年、 500万円なら約10年です。 仮に30年返済であっても、 積極的な繰上返済をする人は、 半分以下の期間(12~13年)で 完済することが可能です。 軽く・・現役中に完済! してしまいましょう。 借金の無い生活、理想・・です。家計改善したい? きちんと生活設計したい?なら・・(できるだけ)1 生命保険に加入しない2 借金をしない!3 経費を払わない!これだけでいい。すごく かんたん。 見違える人生になる。 今日の佐々木FP〇メール顧問会員のNさん(30代) (相談:ライフプランニング)現状診断 資料作成作業。本日より着手!大変長らくお待たせしました。【 行列のできるFP事務所 】 資料作成の順番を待っている顧問会員の行列です。 お待たせしています。大変申しわけありません! ヒアリングから完成まで一家族当たり平均5日です。 「回答待ち」の人は、個別の事情で長引いています。 回答が戻った順番に、作業着手しています。1 I さん(50代):現状診断 回答待ち。(9/11着)2 Kさん(40代):現状診断 回答待ち。(10/5着)3 Sさん(30代):現状診断 回答待ち。(12/17ヒア)4 Fさん(30代):シミュレ 回答待ち。(1/29着)5 Aさん(30代):現診 回答待ち。(4/1着)6 Sさん(40代):現診 回答待ち。(6/22着)7 Nさん(30代):現診 回答待ち。(4/12着)8 Eさん(30代):現診 回答待ち。(6/19着)9 Mさん(40代):現診 回答待ち。(5/2着)10 Hさん(40代):現診 回答待ち。(5/2着)11 Nさん(30代):現診 今日の作業。(5/3着)12 I さん(60代):現状診断 5/3 シート到着。13 Hさん(30代):現状診断 5/9 シート到着。14 Oさん(40代):現状診断 5/10 シート到着。15 Sさん(40代):現状診断 5/16 シート到着。16 Kさん(30代):現状診断 5/18 シート到着。17 I さん(30代):シミュレーション 5/20 依頼着。18 Tさん(30代):現状診断 5/23 シート到着。19 Sさん(30代):現状診断 5/31 シート到着。20 Yさん(50代):シミュレーション 6/2 依頼着。21 Sさん(30代):シミュレーション 6/4 依頼着。22 Kさん(30代):現状診断 6/8 依頼着。23 Oさん(30代):現状診断 6/12 依頼着。24 Tさん(30代):現状診断 6/24 依頼着。25 Yさん(40代):現状診断 6/27 依頼着。26 Sさん(30代):現状診断 7/3 依頼着。27 Kさん(30代):現状診断 7/5 依頼着。28 I さん(30代):シミュレーション7/9依頼着。29 Mさん(40代):現状診断 7/18 依頼着。30 Kさん(20代):現状診断 7/18 依頼着。31 Eさん(30代):現状診断 7/26 依頼着。 32 Mさん(30代):現状診断 8/1 依頼着。33 Mさん(30代):現状診断 8/4 依頼着。34 Kさん(30代):現状診断 8/5 依頼着。35 Nさん(40代):シミュレーション 8/7依頼着。《 質問希望? 》 ブログ右「キーワード検索」をどうぞ。「キーワード検索」に言葉 ⇒ 「このブログ内」 ⇒ 「検索」。《 顧問会員希望? 》 「顧問会員って何?」で支援内容や当事務所との関係を確認の上、右記へfpst@axel.ocn.ne.jp〇8/8(木)、メール顧問会員を若干名受付けます。 希望者はメールで申し込んでください。 以後2~3ヶ月は受付けを停止する予定です。〇一般の顧問会員は、常時受付けています。
2013/08/07

見直した方が良いか色々検討してます。アドバイスいただけないでしょうか。これだけの情報では、アドバイスのしようがありません。(当たり前)自分の頭で考える・・生活設計。初めての方から、メールをいただきました。 ※は、私の声。ご相談お願いできませんか初めまして。Kといいます。ブログ拝見しております。自営妻で〇〇師しております。40ウン歳です。子どもが小学生〇年と〇年おります主人40ウン歳です。主人は保険嫌いで入っておらず先日〇〇で倒れ今何とか復帰してますがはいれる保険もなくお店の借金マンションローンもあります。彼は高額医療もあるし何かあったらマンション売ればいい戸言ってます。結構不安定で毎日過ごしてます。私は今掛け捨ての3000円の掛け捨て保険に入ってます。見直した方が良いか色々検討してます。アドバイスいただけないでしょうか。この文面だけでは、Kさん宅の状況が分かりません。この時点でアドバイスできることは何もありません。 (当たり前)相談者の状況をすべて把握して初めて、アドバイスができる状態になります。そのために当事務所では「顧問会員制」をとっています。ご希望の場合は・・ 「顧問会員って何?」で支援内容や当事務所との関係を確認の上で、申し込んでいただくことになります。生活設計の資料作成の順番待ちで行列が長くなっていたので、メール顧問会員の新規受付けはしばらく停止していましたが・・たまたま・・明日8/8(木)に、新規のメール顧問会員を若干名募集することになっています。これでまた、さらに行列が長くなることが予想されるので、以後2~3ヶ月は、メール顧問会員の新規受付けは停止します。行列に並んで待つのがいやな場合はしょうがありませんが、そうでないなら明日・・申し込んでください。〇メール顧問会員のSさん(30代) (相談:ライフプランニング)7/11に、新規に メール顧問会員になりました。メールをいただきました。武田様、7月にメール顧問会員に申し込みをしたSです。せっかくお送りくださったのに、資料の作成が遅くなって申し訳ありません。妊娠してしまい、つわりなど体調不良のなか仕事に追われ、殆ど手をつけられておりませんでした。色々と生活設計を早くしなくてはならないのに、依頼させていただきながら、最初の自分自身の作業でつまづきもどかしいです。何とか、お盆明けまでには完成させたいと思いますので、何卒よろしくお願いいたします。進捗のご報告まで。 ※おめでとうございます! のんびりいきましょう。 無理しない程度に ばんばれ! がんばれ! 《 質問希望? 》 ブログ右「キーワード検索」をどうぞ。「キーワード検索」に言葉 ⇒ 「このブログ内」 ⇒ 「検索」。《 顧問会員希望? 》 「顧問会員って何?」で支援内容や当事務所との関係を確認の上、右記へfpst@axel.ocn.ne.jp〇8/8(木)、メール顧問会員を若干名受付けます。 希望者はメールで申し込んでください。 以後2~3ヶ月は受付けを停止する予定です。〇一般の顧問会員は、常時受付けています。
2013/08/07
顧問会員になりたい人すべてがウエルカムとは限りません。ファイナンシャル・プランナーは、何でも相談にのってあげる、何でも手伝ってあげる、・・わけではありません。本来の業務はライフプランニングです。生涯の見通しを立てる作業です。時々・・それ以外の目的で「顧問会員になりたい。」と言ってくるケースがあります。そういう場合は、お断りしています。自分の頭で考える・・生活設計。 午前中、事務所に1本の電話が・・。佐々木FPが受けました。 近くの人・・のようです。 顧問会員になりたい・・ようです。 ブログで顧問会員の内容も理解 ・・しているようです。 年間顧問料が36,000円だという ことも分かっている・・ようです。 まず事務所へ来ていただいて、 顧問料を払っていただいて ・・と話が進んでいます。 いつがいいでしょうか ・・と話が進んでいます。武田FPが佐々木FPへ・・ 顧問会員になる「目的」を確認して佐々木FPが目的を確認・・ 相続がどうのこうの・・ 去年・・夫が亡くなって、 相続手続きをどうしていいのか ぜんぜん分からないので・・ 相談できるところを 探していた・・ようです。武田FPが変わって電話に出ました。 FP事務所の仕事は生活設計です。 違うことを期待しているようなので、 お受けできません。 何やら・・生活設計も・・のような ことを言っていましたが、 メインは目前の相続手続き・・のようです。 相続手続きの相談や手伝いをすると、 税理士法に抵触する可能性も 出てきます。 なので・・なおさら、お受けできません。 生活設計をしながら・・ 相続を考慮する必要があるケースも あったりします。 本人は気づいていなくても、 こちらから指摘する場合もあります。 その場合は生活設計の中で、 資産構成をこうしておいた方が いいですよ・・ということはあります。 (法に抵触することはないでしょう)佐々木FPへ伝えました。今後も・・顧問会員になりたいという人が現れたら、まず、「目的」を確認しましょう。FPの本来業務のライフプランニング以外が「目的」であれば、お受けすることはできません。「『生命保険の見直し』・・が目的です。」・・なんていうのもダメですね。保険は・・きちんと、ライフプランニングの中で考えたい。自分たちの生涯を見渡す中で、きちんと考えたい。そうすれば・・一生・・保険に入ることがどれだけバカバカしいことか、理解ができます。保険は見直すものではなく、清算するもの! ・・です。保険屋はライフプランニングはまったく行なっていない。コマーシャルでライフプランニングと言っているソニー生命も、まったく行なっていない。保険屋にだまされないよーに。今日の佐々木FP〇メール顧問会員のHさん(40代) (相談:ライフプランニング)現状診断 資料作成作業。 整理整頓が終了! 「再ヒアリング」として、メール添付で送りました。【 行列のできるFP事務所 】 資料作成の順番を待っている顧問会員の行列です。 お待たせしています。大変申しわけありません! ヒアリングから完成まで一家族当たり平均5日です。 「回答待ち」の人は、個別の事情で長引いています。 回答が戻った順番に、作業着手しています。1 I さん(50代):現状診断 回答待ち。(9/11着)2 Kさん(40代):現状診断 回答待ち。(10/5着)3 Sさん(30代):現状診断 回答待ち。(12/17ヒア)4 Fさん(30代):シミュレ 回答待ち。(1/29着)5 Aさん(30代):現診 回答待ち。(4/1着)6 Sさん(40代):現診 回答待ち。(6/22着)7 Nさん(30代):現診 回答待ち。(4/12着)8 Eさん(30代):現診 回答待ち。(6/19着)9 Mさん(40代):現診 回答待ち。(5/2着)10 Hさん(40代):現診 今日の作業。(5/2着)11 Nさん(30代):現状診断 5/3 シート到着。12 I さん(60代):現状診断 5/3 シート到着。13 Hさん(30代):現状診断 5/9 シート到着。14 Oさん(40代):現状診断 5/10 シート到着。15 Sさん(40代):現状診断 5/16 シート到着。16 Kさん(30代):現状診断 5/18 シート到着。17 I さん(30代):シミュレーション 5/20 依頼着。18 Tさん(30代):現状診断 5/23 シート到着。19 Sさん(30代):現状診断 5/31 シート到着。20 Yさん(50代):シミュレーション 6/2 依頼着。21 Sさん(30代):シミュレーション 6/4 依頼着。22 Kさん(30代):現状診断 6/8 依頼着。23 Oさん(30代):現状診断 6/12 依頼着。24 Tさん(30代):現状診断 6/24 依頼着。25 Yさん(40代):現状診断 6/27 依頼着。26 Sさん(30代):現状診断 7/3 依頼着。27 Kさん(30代):現状診断 7/5 依頼着。28 I さん(30代):シミュレーション7/9依頼着。29 Mさん(40代):現状診断 7/18 依頼着。30 Kさん(20代):現状診断 7/18 依頼着。31 Eさん(30代):現状診断 7/26 依頼着。 32 Mさん(30代):現状診断 8/1 依頼着。33 Mさん(30代):現状診断 8/4 依頼着。34 Kさん(30代):現状診断 8/5 依頼着。《 質問希望? 》 ブログ右「キーワード検索」をどうぞ。「キーワード検索」に言葉 ⇒ 「このブログ内」 ⇒ 「検索」。《 顧問会員希望? 》 「顧問会員って何?」で支援内容や当事務所との関係を確認の上、右記へfpst@axel.ocn.ne.jp〇8/8(木)、メール顧問会員を若干名受付けます。 希望者はメールで申し込んでください。 以後2~3ヶ月は受付けを停止する予定です。〇一般の顧問会員は、常時受付けています。
2013/08/06

生命保険が仮に必要としても、その期間はせいぜい・・10~15年程度で済みます。保険屋にだまされないよーに。言いなりになっていると、一生・・加入させられます。(=一生・・お金をたれ流す)自分の頭で考える・・生活設計。 〇メール顧問会員のKさん(20代) (相談:ライフプランニング)7/10に、新規にメール顧問会員になりました。今・・行列に並んでいます。 K家の概要 まだ・・分かりません。メールをいただきました。(有)エフピー・ステーション 武田様お世話になっております。メール顧問会員のKです。現在、30番目に並んでいます。まだまだ先は長そうですが、楽しみに待っています。 ※お待たせすることになります。 スミマセン。佐々木様、よろしくお願いします。 ※佐々木FP、 毎日がんばっています。現状診断が終わるまでは具体的なアドバイスが出来ないということは、承知しておりますが... ※来た、来た、来た・・すみません。それでも相談させてください。 ※オキテ破りの「事前相談」! これ・・武田FPが答えて いいでしょうか?現在の生命保険の加入状況です。保険は、夫の生命保険のみ加入しており、以下の2つになります。 ・NKSJひまわり生命掛金:36,088円/年期間:2043年まで(30年)給付金:130,000円/月 (総額:4,836万円)・共済(労働組合)掛金:26,100円/年 (例年、約1万円の配当金あり)期間:25年給付金:99,000円/月 (総額:2,992万円) ※死亡保障総額は・・ 4,836+2,992=7,828! 8千万円近くも確保しています。 おバカさんです。(失礼!)NKSJひまわり生命については、10月で更新の時期が来ます。現状診断で、はっきりしてから解約しようと思っていましたが、30番目では、10月に現状診断が終わってなさそうな気がします。 ※申しわけありませんが、 ピンポォ~ン・・だと思います。とりあえず加入の生命保険ということで、3千万円・15年(最近は2千万円・15年でOK?)にはやむを得ず加入したままにしようと思っています。NKSJひまわり生命より、共済の方が掛金も安くとりあえず加入の保険に近い形が共済の方なので、NKSJひまわり生命を解約しようと思います。 ※いいと思います。解約したほうがいいとは思ってるのですが現状診断が出るまで今の加入状態のままにしといたほうがよろしいでしょうか。 ※現状はどう考えても 過剰加入のおバカさん状態です。 現状診断とは関係なく 改善しておきたい。ぜひ、アドバイスをしていただけると嬉しいです。 ※ただし・・ 期間:25年 給付金:99,000円/月 (総額:2,992万円) ・・では、 総額はとりあえずOKでも、 給付金月額と期間は、 必要な保障とは大きなズレが あると思われます。 給付金月額が少な過ぎます。 保証期間が長すぎます。 保障期間を15年程度に 変更できないでしょうか? それが可能なら・・ 給付金月額は16~17万円に なると思われます。 ・・であれば、「とりあえず加入」 としては理想的です。 オキテ破りの質問に 答えられるのは、 このへんまで・・です。 《 質問希望? 》 ブログ右「キーワード検索」をどうぞ。「キーワード検索」に言葉 ⇒ 「このブログ内」 ⇒ 「検索」。《 顧問会員希望? 》 「顧問会員って何?」で支援内容や当事務所との関係を確認の上、右記へfpst@axel.ocn.ne.jp〇8/8(木)、メール顧問会員を若干名受付けます。 希望者はメールで申し込んでください。 以後2~3ヶ月は受付けを停止する予定です。〇一般の顧問会員は、常時受付けています。
2013/08/06

デメリットって 具体的にどんなものか知りたくて・・自分の頭で考える・・生活設計。 YOMIURI ONLINE ・・よりQ & A ※は、私の声。マイホームに後悔している方 Qマイホームを手に入れるか、このまま気に入っている賃貸マンションに住み続けるか迷っています。マイホームを手に入れている方にお聞きしたいです。マイホームを手に入れて現在後悔していること、苦労していることはありますか?今だから言えるけどこうしたらよかったという貴重なご意見を教えていただけませんか?よろしくお願いします。メリットは思い浮かぶのですが、デメリットって具体的にどんなものか知りたくてトピを立てました。できましたら、建売分譲、注文住宅、マンション、戸建てなども教えてください。Aマイホーム購入して4年目です。まず、間取りに関してですが完璧な家を建てるには3回建て直さないとならないということを聞いたことがあると思いますが、1度で全て満足というわけにはいきませんでした。 ※当たり前。やはり住んでいるうちに「あそこはこうすればよかった」という点が出てきます。でもこれは、デメリットというほどではありません。一番の悩みの種は隣人です。お隣のママは人の家のことをよく見ていて、あれこれ人に噂をばらまく人です。右隣の奥さんは服は地味なのに下着が派手だとか・・ ※うわぁ・・。多分わたしも何か言われているんだろうな・・と思います。毎日のようにヒステリックな怒鳴り声が聞こえるし、 ※うわぁ・・。近所でも嫌われている人の隣に住むのは結構なストレスです・・・・賃貸ならいつかどちらかが引っ越す、と思えるけど、一生お付き合いしなくてはならないのは頭が痛いですよ A家自体は建売なのに注文のように希望通りの物件があって満足なのですが、近所に子供が多く、ソレによる被害が多発して迷惑しています。年齢や家族構成、ライフスタイルが不明なので何とも言えないのですが、子供が既に大きくなっている、子供を作らない等、小さい子供に縁が無いのであれば、子供が多いところは避けたほうが良いです。奇声、騒音は序の口。庭、敷地に勝手に入ってくる、ボール等の家屋、車の被害等々、ストレス溜まりまくりです。 ※うわぁ・・。Aこんにちは。デメリットが浮かばない。そうでしょうとも。皆さん、購入後の夢を描いて高い買い物をするのです。あまり都合の悪い話はしないから聞いたこともなく、思いつかないでしょう。では、戸建のデメリットあげてみましょう。1多額のローンを抱える生活の不安。 または、支腹不能に陥ること。2外構(庭など)の手入れが無精者には、 負担であること。3年数経過ごとに、メンテナンス費用が 掛かること。(外壁/水回り/クロス等)4いい加減な業者を選ぶと、 手抜き工事や施工不良がおきること。5強引な押し売り、勧誘が玄関を叩くこと。6ピンポンダッシュにあうこと56は冗談ですが、実際にあります。きちんとした、借入返済計画をたて、 ※その前に生活設計をして・・。お家を建てる勉強を1~2年して、 ※セミプロ並みになるほど 勉強したい。綿密に業者選定し、3などのことを予め承知していれば、後悔はないでしょう。 ※後悔がないことは あり得ない。A私自身のことではありませんがご参考までに。実家の隣に農家の洗い場だった場所があります。もともとそのあたりはあちこちに湧き水があり、地盤のゆるいところです。で、その洗い場の辺りを所有者が売却し、数軒の建売住宅が建ちました。後にそのうち一軒の購入者に聞いたのですが、不動産業者はその土地を 「以前は林だった」 と説明していたそうです。 ※宅建業法・・違反! 業者の話を鵜呑みに してはいけない。今でも実家の裏庭を1メートルも掘るとじくじくと水が沸いてきます。新たに家を建てるのにオススメの場所とはいいにくいかも。あと、やはり実家のそばに精神的に心配な感じのヒトが住んでいます。奇声を発したり言動が妙だったり ※うわぁ・・。するためかよくパトカーが見回っていますが、特に事件を起こしたことはないようです。とはいえ、できればお隣になるのは避けたほうがいいかも。そういったことは、不動産業者にきいてもわからない(教えてくれない)ことかもしれません。 ※そう考えてはいけない。 高額なお金を払います。 徹底的に確認したい。 重大な事実を伝えないことも 宅建業法違反!・・です。 徹底的に確認しよう。近所に尋ねてみるのがいいとおもいます。都会のヒトはあまり余計なことは言いたがらないけど、なかにはおしゃべり好きな人もいますから。A家は欲しいと思ったときが買い時、しかしながら資金の面で出来るだけ借金をしたくないですよね、十分に資金を貯めてから挑戦した方が良いと思いますよ、それと、家を建てる場合、新興住宅地よりも私は古い町の方を選びます。理由は、町内会や祭り・近所付き合いなど、建前の町内会役員でなく、昔からの世話役になっている人を見極められれば、そうそう悪いように扱われることはないと思います。新興住宅地の場合、そういうことがいい加減で、トラブルが無い方が珍しいと思います。(トラブルは誰も面倒を見てくれない) ※そんなにひどくはない。あと、実際に住宅を購入するときは、希望を箇条書きで分かり易く纏めて、メーカーや、建築士と相談するのが良いと思います。 ※メーカーや建築士に相談 するのでは、かなり、かなり、 割高な買い物になります。 余分過ぎるコストを負担します。 ネットで良さそうな地元業者を 複数ピックアップしよう。 それぞれと徹底的に相談しよう。 最後の最後までじっくり 比較検討しよう。 適正価格を理解できた上で、 自分たちに合う業者を 選ぶことができます。A結婚したとき、建て売り4LDKを買ってもらいました最初は、やがて子供が出来ても充分暮らせるかなと思っていた間取りでしたが実際にふたり生まれて大きくなってくるとまぁ狭いこと狭いこと...!実際、狭いところにムリヤリ建てた感じの物件だったらしく増改築の余地もないし融通のきかないことばかりです買い替え出来る余裕などないしこんなことなら最初は賃貸で暮らして、子供たちの意見も取り入れつつ、様子を見ながら注文で建てたかったと後悔しています ※そう・・思います。 人生経験が浅い内に 住宅を見学すると、 すべてがステキ♪・・に 見えます。 家計改善したい? きちんと生活設計したい?なら・・(できるだけ)1 生命保険に加入しない2 借金をしない!3 経費を払わない!これだけでいい。すごく かんたん。 見違える人生になる。 《 質問希望? 》 ブログ右「キーワード検索」をどうぞ。「キーワード検索」に言葉 ⇒ 「このブログ内」 ⇒ 「検索」。《 顧問会員希望? 》 「顧問会員って何?」で支援内容や当事務所との関係を確認の上、右記へfpst@axel.ocn.ne.jp〇8/8(木)、メール顧問会員を若干名受付けます。 希望者はメールで申し込んでください。 以後2~3ヶ月は受付けを停止する予定です。〇一般の顧問会員は、常時受付けています。
2013/08/05
![]()
盛岡も一応梅雨明けしましたが・・自分の頭で考える・・生活設計。 〇メール顧問会員の I さん(60代) (相談:ライフプランニング)現状診断のため、行列に並んで待っています。(12番目)メールをいただきました。 武田、佐々木 様 こんにちは当地は7月1日の梅雨明け以来ほとんど雨が降らず、猛暑が続いていて異常な気象状況に、農家の方々が悲鳴をあげています。 ※大変なようですね。 ニュースで見聞きしています。台風は困りますが、雨が欲しいところです。東北の方も天候不順のようですが、いかがお過ごしでしょうか? ※やっと長い梅雨が明けました。 今回は、ヒアリングシートの1と2に変更(マイナスな)が出ましたのでメールしました。朱書きで入れた分が全回と変わったところです。欄外にも朱書してあります。 いよいよ順番が近づいてきましたので、ドキドキしています。 よろしくお願いします。 ※了解しました。 ドキドキしながらお待ちください。〇メール顧問会員のNさん(40代) (相談:ライフプランニング)現状診断は2/12に終わっています。6/25(火)13:30、 遠路はるばる・・面談のためにご夫婦で来所。 N家の概要 家族 : 40代の夫、40代の妻、 子ども無し、・・の2人家族 職業 : 夫:会社員、 妻:専業主婦 住居 : 賃貸 貯蓄 : ?万円(ほとんど妻の分?) 生命保険料 : 0万円/年 (現状診断前にすべて解約)お土産をいただきました。ごちそうさまでした!幸せを呼ぶ 馬車道馬蹄パイ 横浜馬車道 鎌倉半月 鎌倉五郎本店メールをいただきました。 武田様 佐々木様お世話になっています、〇〇県のメール会員のNです。盛岡もやっと梅雨明けで夏本番かと思ったら、今日はまた雨みたいですね。 ※お気遣い、ありがとうございます。先月車を軽自動車に買い換える事に決めました。ほとんど夫の通勤にしか使わない、維持費が安い点から去年から夫を説得し決めてました。ガソリンの値上がりが続いているので今度の車は燃費がいいらしいので、少しでも負担が減ればよいのですが。 ※「年に7万円とか10万とかの 負担軽減になると思います。」 ・・佐々木FP。 生命保険の清算等に比べれば、 効果は小さめ・・ですが。販売店は損保ジャパンの代理店もしていて、こちらがアクサに入っているのを聞くと「安いから入ったのでしょうが、 外資系は事故対応がよくない、 対物賠償は今は無制限でないとだめ (2000万円で契約しています)」と保険の営業をされ、うっとうしいと思いながら聞き流しました。でも車の保険は夫に任せていたので、対物賠償が気になって調べてみたら売る側の意見でしょうが、大部分は2000万以下で収まるが件数は少ないけど高額賠償の場合もあるので、無制限にした方がよいというのが多かったたため夫が毎日通勤に使うのと、車はずっと使うので気になってしまいました。保険料が2000円弱安いから(今年は39230円でした)今までずっとそうしていたみたいです。万が一貯金で賄えない大金が必要になった時のためなので、多少コストが上がってもこれは無制限にした方がよいですよね?過去のブログを検索してみたら、2007/3/2のブログの「生保のおばちゃんの 攻撃にさらされました」というタイトルの読者のコメントの「被害者保護のために、 対人賠償と対物賠償だけ 無制限にして それ以外は可能な限り削っていけば~」には、それでOKですとコメントされてましたのでこれを参考にしようと思いつつ、一応メールで 確認してしまいました(^_^;) ※はい、OK・・です。 私も対人・対物は無制限です。2013/2/9のブログから、自損事故と搭乗者障害保険をカットしたかったのにアクサは選択できずカットできませんでした。更新期限も迫っていたため今回は仕方なくそのままにしたので、その点をカットできる保険会社に来年は比較検討していきたいと思います。それと住宅取得のシミュレーションをお願いしてみようと思っているのですが土地を買ってからの住宅建築の場合と分譲住宅の場合と両方シミュレーションをお願いすることはできるのでしょうか? ※OK・・です。訪問した時に住居費総額を計算してみたものを見て頂いて総額はOKでも金利2.1%で毎月のローンの支払額が可能かを計算して頂いたのでそこから住宅ローンの目安をつけてみたのですが、これでよいでしょうか?今後の金利上昇を考えたら、もっと高い金利を想定した方がよいのでしょうか? ※N家のキャッシュフローから・・ その必要はありません。長文メールで申し訳ありません。以上お忙しいところ申し訳ありませんが、どうぞよろしくお願いいたします。 ※ ・・? ん・・? 後半部分は結局、 どういうことでしょうか? 意味不明・・です。 マイホーム取得の シミュレーションを依頼したい? ということでしょうか? はっきりしない・・です。 【 行列のできるFP事務所 】 資料作成の順番を待っている顧問会員の行列です。 お待たせしています。大変申しわけありません! ヒアリングから完成まで一家族当たり平均5日です。 「回答待ち」の人は、個別の事情で長引いています。 回答が戻った順番に、作業着手しています。1 I さん(50代):現状診断 回答待ち。(9/11着)2 Kさん(40代):現状診断 回答待ち。(10/5着)3 Sさん(30代):現状診断 回答待ち。(12/17ヒア)4 Fさん(30代):シミュレ 回答待ち。(1/29着)5 Aさん(30代):現診 回答待ち。(4/1着)6 Sさん(40代):現診 回答待ち。(6/22着)7 Nさん(30代):現診 回答待ち。(4/12着)8 Eさん(30代):現診 回答待ち。(6/19着)9 Mさん(40代):現診 回答待ち。(5/2着)10 Hさん(40代):現診 今日の作業。(5/2着)11 Nさん(30代):現状診断 5/3 シート到着。12 I さん(60代):現状診断 5/3 シート到着。13 Hさん(30代):現状診断 5/9 シート到着。14 Oさん(40代):現状診断 5/10 シート到着。15 Sさん(40代):現状診断 5/16 シート到着。16 Kさん(30代):現状診断 5/18 シート到着。17 I さん(30代):シミュレーション 5/20 依頼着。18 Tさん(30代):現状診断 5/23 シート到着。19 Sさん(30代):現状診断 5/31 シート到着。20 Yさん(50代):シミュレーション 6/2 依頼着。21 Sさん(30代):シミュレーション 6/4 依頼着。22 Kさん(30代):現状診断 6/8 依頼着。23 Oさん(30代):現状診断 6/12 依頼着。24 Tさん(30代):現状診断 6/24 依頼着。25 Yさん(40代):現状診断 6/27 依頼着。26 Sさん(30代):現状診断 7/3 依頼着。27 Kさん(30代):現状診断 7/5 依頼着。28 I さん(30代):シミュレーション7/9依頼着。29 Mさん(40代):現状診断 7/18 依頼着。30 Kさん(20代):現状診断 7/18 依頼着。31 Eさん(30代):現状診断 7/26 依頼着。 32 Mさん(30代):現状診断 8/1 依頼着。33 Mさん(30代):現状診断 8/4 依頼着。34 Kさん(30代):現状診断 8/5 依頼着。《 質問希望? 》 ブログ右「キーワード検索」をどうぞ。「キーワード検索」に言葉 ⇒ 「このブログ内」 ⇒ 「検索」。《 顧問会員希望? 》 「顧問会員って何?」で支援内容や当事務所との関係を確認の上、右記へfpst@axel.ocn.ne.jp〇8/8(木)、メール顧問会員を若干名受付けます。 希望者はメールで申し込んでください。 以後2~3ヶ月は受付けを停止する予定です。〇一般の顧問会員は、常時受付けています。
2013/08/05
全58件 (58件中 1-50件目)