PR
カレンダー

〇顧問会員のYさん(30代)
(相談:生活設計・マイホーム建築)
2016.12.2・・に、現状診断 終了。
2017.1.23・・に、生活設計 終了。
マイホーム取得の実行支援中で・・
2017.4.27・・に、土地契約 終了。
道路から見た建物 立面を作ってみたら
シンプルな外観のための階段の形★
南北が全く逆のマイホームプラン★
不動産業者だから宅建は当然持って★
南北反対のマイホームプラン 煮詰めて
マイホームプランを敷地に配置して★
土地を購入する際の手続きとお金★
土地仲介手数料が高くて6万円の損?
土地購入の段取りが終了しました
メールをいただきました。
いつもお世話になっております。
顧問会員の〇〇市のYです。
新プランの作成ありがとうございます。
しっくりきていないというところが
引っかかりますが、
※私が「しっくりきていない」
・・と感じていたのは、
1つは、
Yさん夫妻は本当はもっと大きな
クローゼットや物干し室が
欲しいんだろうな・・ということ。
なのに、玄関廻りだけやたらに
だだっ広いな・・ということ。
もう1つは、
のんびり東西に長いプランを
考えていると、2台用の
カーポートはまともに配置
できないぞ・・ということ。
・・でした。
なので・・また、
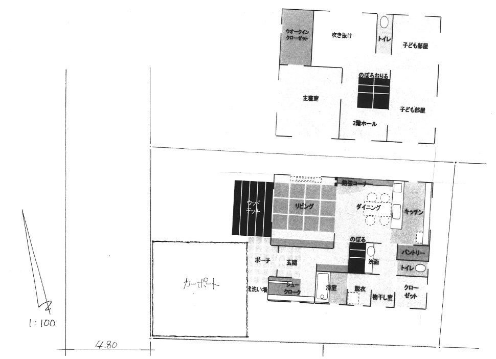
新プランを作ってみました。
希望はほぼ入っていますね。
気になるところは下記です。
・リビングはテレビの上が窓なのでしょうか。
明るさがあるのか気になります。
※小さな窓になることはありません。
高さは・・
作り付けテレビ台が45センチ、
テレビ本体が80センチ、
そこから上・・天井高さまでが窓
ということは、
決して高さの無い窓ではありません。
リビングの明るさ・・という意味では、
2つの窓のうち、西側の
ウッドデッキに連続する窓は
出入りするために当然・・
大きな掃き出し窓になるし、
開放的な吹き抜けもあるので、
このリビングについて、
暗さを心配する要素は全くありません。
それから、
北側の窓の位置が高いということは、
北側からの視線を気にしなくて
済むし、
隣地の安っぽいトタン屋根も
視界に入ってこずに済みます。
テレビをリビング南側に置く
という選択もありますが、
対面に窓があるような配置は、
反射でまぶしくなるので、
一般的には行ないません。
・2階は廊下が多いという印象です。
※吹き抜けを大きくしてみました。
なお、2階から1階が見られるのは
吹き抜けだけではなく、
2階ホールからでも
ダイニングを見ることができます。
登ってくる人を見下ろします。
2階ホールや廊下全体が
吹き抜けの上を歩く空間のように
なります。
・2台分のカーポートは置けますか。
※新しいプランで、配置計画を
作ってみました。
引き続きよろしくお願いします。
※2台用のカーポートが配置
できるよう、マイホームプランの
東西を詰めてみました。
延べ床面積は37坪弱になりますが、
実質約40坪の家です。

※キッチンにいながら、
ウッドデッキで遊んでいる
チビちゃんを眺められそうです。

※この土地の特徴は・・
南と東がふさがれていて、
北と西が比較的・・開放的です。
なので、あまり見られない・・
南北が逆転したような住宅プランを
計画しています。
なんでもかんでも・・
リビングを南側にすればいい
・・というものではありません。
玄関ヒサシからカーポートへ、
雨の日でも濡れることなく
車に乗り降りできそうです。
この土地での「庭」は、
建物の南側ではなく、
(南隣りは一段高く、さらには
総2階で高い建物が建っている)
ウッドデッキの西側の空間だと
考えたい。
仮に「虫なんか大っ嫌い!」
だとしても、ちょっとした花壇を
作れば、道路を歩く人からも
建物が映えて見えます。
明日は、Yさんの土地決済・引渡し。
また、長距離ドライブ・・です。
そのために、今日・・タイヤ交換しました。
冬タイヤを夏タイヤに履き替えしました。
《 Y家マイホーム取得への道 》
0 ヒアリング10/11
1 家計の現状診断12/2
2 ライフプランニング(生活設計)1/23
3 資金・ローンの目安を立てる
4 土地探し
売買契約4/27
決済5/9
5 展示場ほか見学
6 住宅プラン作成
図面作製
7 複数の住宅会社でプレゼンコンペ
8 業者決定・請負契約
9 事前手続き
10 着工・地鎮祭
11 完成引き渡し 入居
12 住宅ローン返済開始
シミュレーション
《 第2子誕生&マイホーム取得 》
ちょっと・・ 老後が不安な感じ・・。

第2子とマイホーム、さすがに
死亡保障必要額は大きくなります。
シミュレーション
《 第2子誕生&マイホーム取得 》
武田FPがチョチョイとやってみました。
『土地代を500万円減額した人生』

老後がちょっぴり安心な感じ・・。
《 Y家の概要 : 現状診断時点 》

家族 : 40代会社員の夫、
30代の妻、
子(赤ちゃん)、・・の3人家族。
相談 : 第2子。マイホーム。生命保険。
収入 : 収入 手取り
夫 575万円/年 457万円/年
住居 : 賃貸。(家賃:6.2万円)
貯蓄 : 3,065万円
借金 : 無し。
生命保険料 : 52.4万円/年
夫
・団体生命 朝日
・団体年金共済 明治安田
妻
・確定年金 第一生命
死亡保障必要額 検証結果 :
現時点 10年後
夫 1,712万円 301万円
妻 -5,494
万円 -3,003万円
「必要資金」から「手当可能資金」
を引いた結果なので、マイナスは
保障が不要ということです。
《 死亡保障必要額の推移 》




タイヤも履き替えたし、さあ!
明日はまた、長距離走るべ。
・・っと。
〇 商品販売をしない。
〇 しがらみを持たない。
誇りをもって、愚直に、
消費者側に立ち続けて16年目の
ファイナンシャル・プランナー事務所。
《 質問希望? 》 ブログ右「キーワード検索」をどうぞ。
「キーワード検索」に言葉 ⇒ 「このブログ内」 ⇒ 「検索」。
《 顧問会員希望? 》 「顧問会員って何?」で支援内容や
当事務所との関係を確認の上、右記へ
fpst@axel.ocn.ne.jp
メール顧問会員は、指定した月日のみに受付けます。
解体工事 終了予定の 12月3日です。 2025/12/03
こんなモノが マイホーム建築の見積書? 2025/12/02
基礎コンクリート そのままだと搬出できず 2025/12/02
キーワードサーチ
フリーページ