PR
カレンダー

〇顧問会員のYさん(30代)
(相談:生活設計・マイホーム建築)
2016.12.2・・に、現状診断 終了。
2017.1.23・・に、生活設計 終了。
2017.4.27・・に、土地契約。
2017.5.9、土地・・決済・引渡し終了。
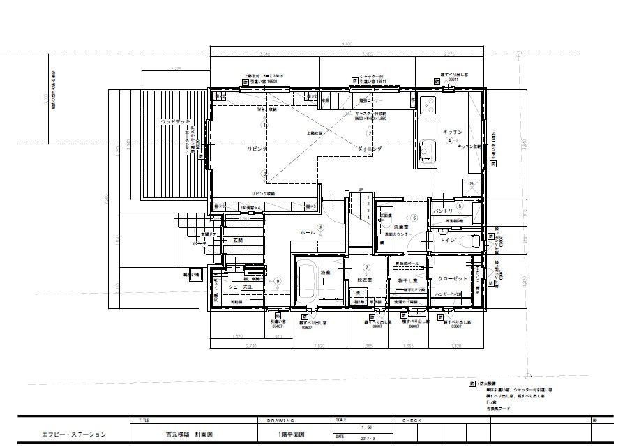
1級建築士からメール添付で
図面が送られてきました。
全部で9枚・・です。
いよいよ
各住宅会社によるプレゼンコンペの
ための図面ができてきています。
その内の一枚、1階平面図です。

ま・・
ところどころに、見落としや勘違いが
見えたりしています。
・・ので、週明けの9/19(火)、13:30に
当事務所に来てもらって、
各図面について、細部確認を行ないます。
なお、
Yさんの建築場所は準防火地域なので、
サッシや換気口等を防火仕様にする
必要があります。
そのサッシですが、
Yさんはトリプルガラスのサッシが希望でしたが、
防火サッシとしては存在しない・・らしい。
複層ガラスのサッシになるようです。
で・・防火サッシであれば、
網入りガラス・・ということになります。
視界や見栄えはいまいち、ということに・・。
そこで、小さな窓はしょうがありませんが、
大きな引き違いの窓については、
軽量シャッターを採用することで、
網入りガラスにしないで済ますことも
できるようです。
いずれ、防火に対応するためには、
高価格になる覚悟が必要なようです。
参考までに、 Q&A
をひろってみました。
(ちょっと古いQ&A・・です)
Q
建築予定の土地が建蔽率40%なのに
準防火地域になってます。
一階は隣地から3M以上離れますが、
二階は隣地から5M以内のため防火使用の
窓ガラスにするかシャッターをつける必要があります。
でもはっきり言って網ありガラスは見た目がきつい。
シャッターつけるのも外観を損ねるのでいやだ。
何かいい方法知りませんか?
A
私も網入りガラスは眺望が妨げられるので
納得いかず、HMの担当者には
準防火用の透明ガラスはありません、
と言われましたが、
ネットで探してHMに伝え、入れてもらいました。
旭硝子のピランという製品です。
3年前にはこれしか見つかりませんでした。
値段は標準より上がりましたが、満足しています。
ただ、
直ぐに隣家がある面は通常の網入りにしています
(もっとも大半は型板ですが)。
ほかにも出ているかもしれないので、
検索してみてはいかがでしょうか。
平面プラン・・です。
1Fと2Fの拡大・・です。

外構プランです。

立面プラン・・です。
仕上げ表です。
《 Y家マイホーム取得への道 》
0 ヒアリング10/11
1 家計の現状診断12/2
2 ライフプランニング(生活設計)1/23
3 資金・ローンの目安を立てる
4 土地探し
売買契約4/27 決済5/9
5 展示場ほか見学
6 住宅プラン作成8/24
図面作製
7 複数の住宅会社でプレゼンコンペ
8 業者決定・請負契約
9 事前手続き
10 着工・地鎮祭
11 完成引き渡し 入居
12 住宅ローン返済開始
シミュレーション
《 第2子誕生&マイホーム取得 》
ちょっと・・ 老後が不安な感じ・・。

第2子とマイホーム、さすがに
死亡保障必要額は大きくなります。
シミュレーション
《 第2子誕生&マイホーム取得 》
武田FPがチョチョイとやってみました。
『土地代を500万円減額した人生』

老後がちょっぴり安心な感じ・・。
《 Y家の概要 : 現状診断時点 》

家族 : 40代会社員の夫、
30代の妻、
子(赤ちゃん)、・・の3人家族。
相談 : 第2子。マイホーム。生命保険。
収入 : 収入 手取り
夫 575万円/年 457万円/年
住居 : 賃貸。(家賃:6.2万円)
貯蓄 : 3,065万円
借金 : 無し。
生命保険料 : 52.4万円/年
夫
・団体生命 朝日
・団体年金共済 明治安田
妻
・確定年金 第一生命
死亡保障必要額 検証結果 :
現時点 10年後
夫 1,712万円 301万円
妻 -5,494
万円 -3,003万円
「必要資金」から「手当可能資金」
を引いた結果なので、マイナスは
保障が不要ということです。
《 死亡保障必要額の推移 》




君、自分の頭で考えてるか?
【 業務日記:行列のできるFP事務所 】★
【 武田FP 】
《 ブログ記事 アップ 》
《 実行支援等 》
【 佐々木FP 】
《 事務所会計作業 》
《 現状診断☆ & 生活設計★ 》
1 Tさん(30代):☆4/24再ヒア待ち。(3/27着)
2 Uさん(40代):☆9/13回答戻る。(7/6着)

※今日の作業。
現状診断 終了予定は、
9/19(火)です。
お楽しみに・・。
3
Kさん(30代):9/13回答待ち。(9/11着)
4 Iさん(50代):9/12 現状診断 依頼着。

5 Oさん(30代):9/15 現状診断 依頼着。

※提出資料が今日9/15(金)、
速達で届きました。


防火仕様サッシ、高そう・・だべ。
・・っと。
〇 商品販売をしない。
〇 しがらみを持たない。
誇りをもって、愚直に、
消費者側に立ち続けて16年目の
ファイナンシャル・プランナー事務所。
《 質問希望? 》 ブログ右「キーワード検索」をどうぞ。
「キーワード検索」に言葉 ⇒ 「このブログ内」 ⇒ 「検索」。
《 顧問会員希望? 》 「顧問会員って何?」で支援内容や
当事務所との関係を確認の上、右記へ
fpst@axel.ocn.ne.jp
メール顧問会員は、指定した月日のみに受付けます。
解体工事 終了予定の 12月3日です。 2025/12/03
こんなモノが マイホーム建築の見積書? 2025/12/02
基礎コンクリート そのままだと搬出できず 2025/12/02
キーワードサーチ
フリーページ